Pre-fabricated
Modular Wooden Day-Care Centres by Kersten Kopp Architekten in Berlin
© Luna und Ute Zscharnt
Lorem Ipsum: Zwischenüberschrift
Berlin has discovered prefab wooden buildings: At this time, modular day-care centres are springing up all over town. Eleven of these were planned by Kersten Kopp; the first four have already been completed.


© Luna und Ute Zscharnt
Lorem Ipsum: Zwischenüberschrift
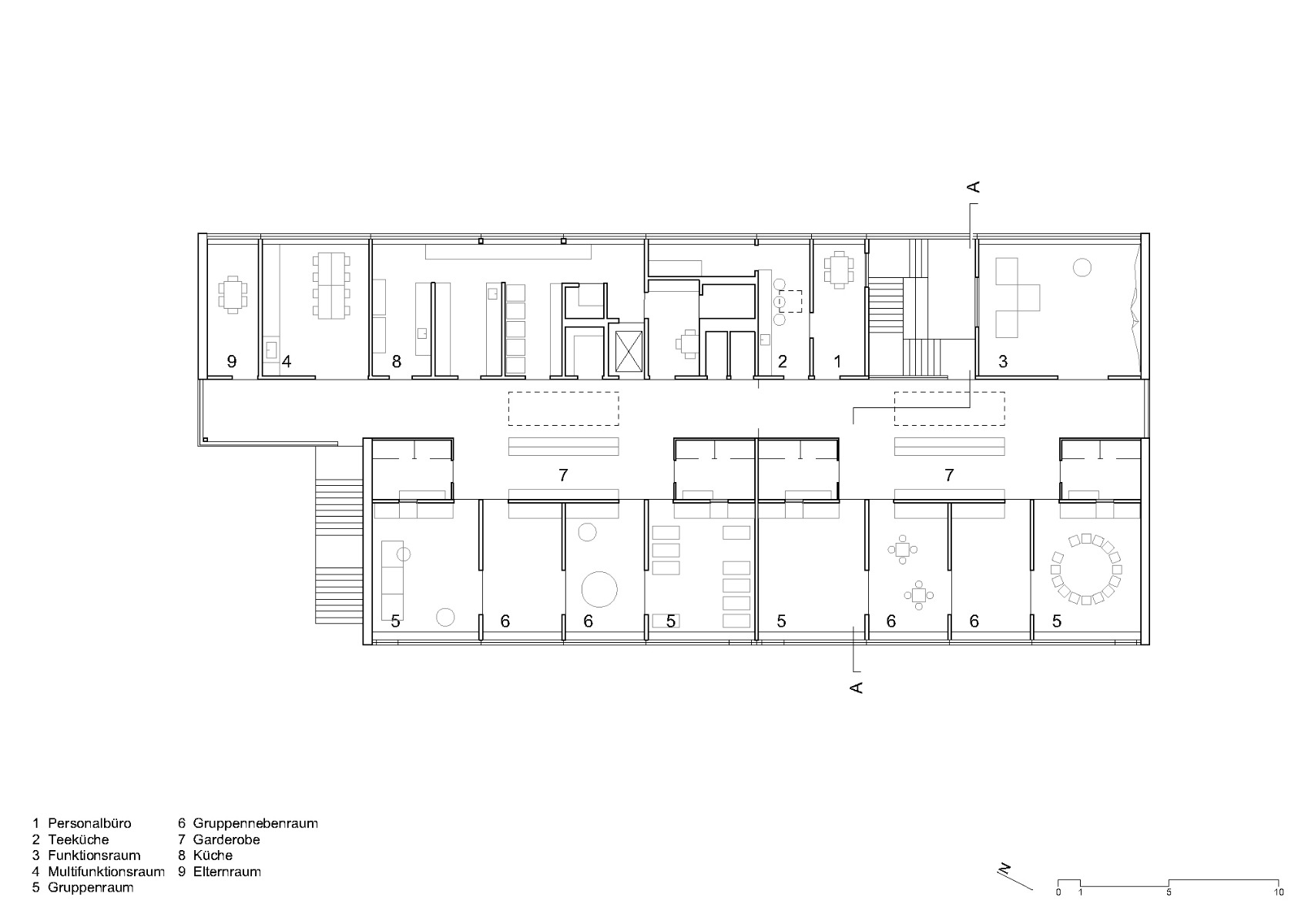
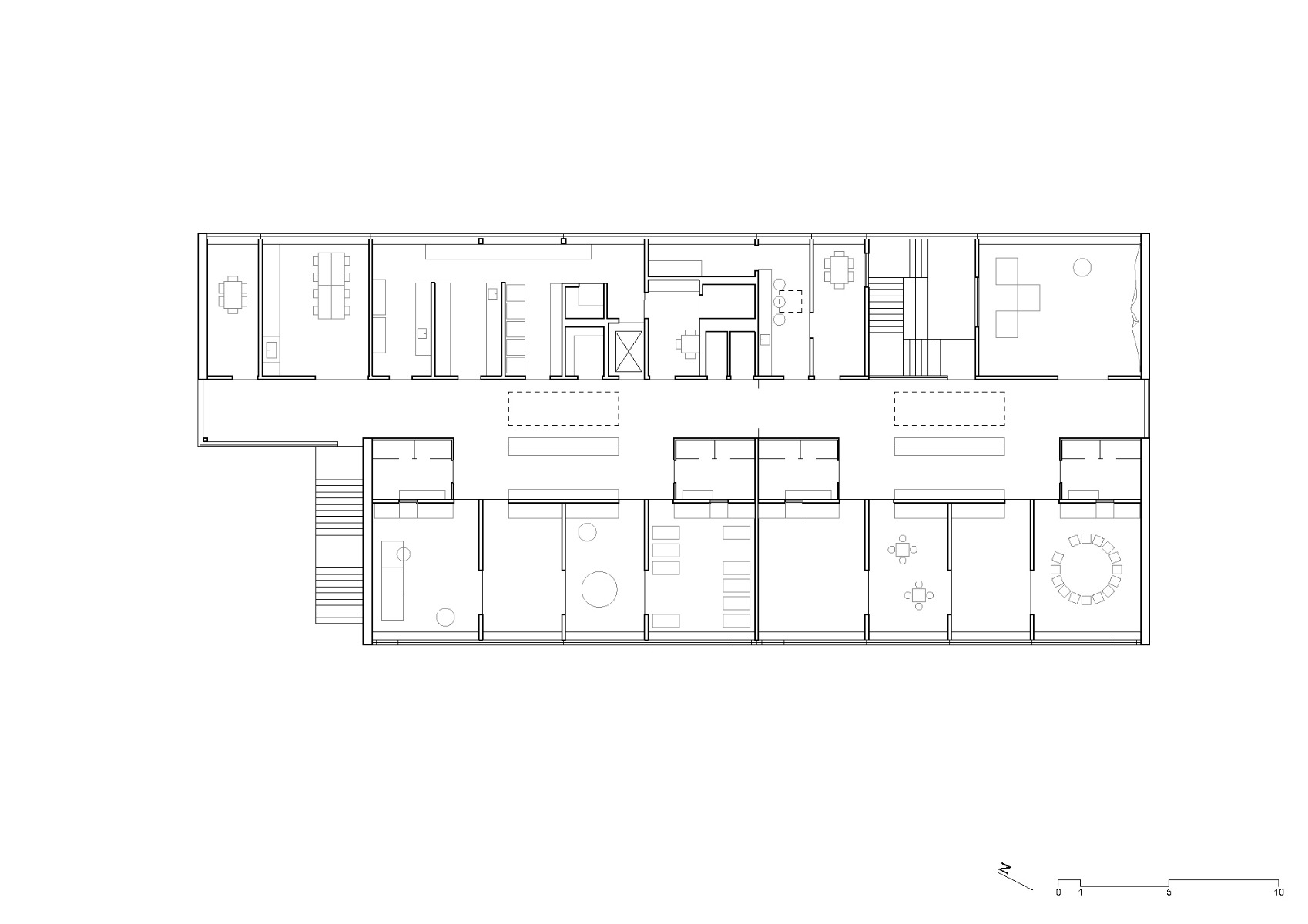
In 2017, the Senate Administration for Urban Development and Living announced two design competitions for standardized wooden day-care centres of various sizes. The competition for the smaller version, which was to feature 60-120 places (MOKIB 60 plus), was won by Kersten Kopp. Her design is based on several basic modules that can be combined as blocks as well as L-shaped or U-shaped structures.
Lorem Ipsum: Zwischenüberschrift
The day-cares are entered at one corner of the building, so the structure can be positioned either perpendicular or parallel to access roads or paths. The two parallel zones, which feature a central corridor that runs through them, mean that the day-cares can dock onto pre-existing buildings either axially or at an angle.


© Luna und Ute Zscharnt
Lorem Ipsum: Zwischenüberschrift
The group-room modules with sanitary spaces are situated on one side of the play corridor. The other side is home to functional spaces as well as the entrance and access module. In front of every pair of group rooms, the architects have arranged a shared “forecourt” with a cloakroom that is an extension of the corridor. Every pair of group rooms and ancillary rooms can be joined to form a single shared space.


© Luna und Ute Zscharnt


© Luna und Ute Zscharnt
Lorem Ipsum: Zwischenüberschrift
Load-bearing interior walls and ceilings of prefabricated solid-wood elements form the basic constructive framework of the building. On the longer sides of the day-care centre, the exterior walls consist of timber skeleton elements, while the shorter sides are of wood-framing components. Pre-greyed larchwood boards clad the facade surfaces.


© Werner Huthmacher
Lorem Ipsum: Zwischenüberschrift
Inside, the wooden wall and ceiling surfaces remain visible to the greatest possible extent. The acoustic lamella ceilings and built-in fittings are made of sprucewood.
Architecture: Kersten Kopp Architekten
Client: Senatsverwaltung für Stadtentwicklung und Wohnen, Abteilung V Hochbau, Berlin
Locations: Wittenauer Straße 151, Berlin (DE),
Kummerower Ring 30, 12619 Berlin (DE),
Helmholtzstraße 34, 12459 Berlin (DE),
Kaulbachstraße 57, 12247 Berlin (DE)
Structural engineering: Pichler Ingenieure
Landscape architecture: capattistaubach urbane landschaften
Building services engineering: Ingenieurgesellschaft W33
Project management: Schüßler-Plan Ingenieurgesellschaft























