Drei Nutzungen unter einem Dach
Neue Mitte Derendingen von Ern+ Heinzl Architekten
© Stefan Müller
In der 6500-Einwohner-Gemeinde Derendingen bei Solothurn haben Ern+ Heinzl Büros der Gemeindeverwaltung, eine Dreifachsporthalle sowie Schule und Kita zu einem skulpturalen Mehrzweckgebäude zusammengefasst.


© Stefan Müller
Acht Jahre Planungs- und Bauzeit vergingen insgesamt zwischen dem Architektenwettbewerb 2013 und der Fertigstellung des Neubaukomplexes mitten im Ortszentrum. Zeit, die vor allem notwendig war, um die Ansprüche der Gemeinde und der unterschiedlichen Nutzer – neben der örtlichen Primarschule, zählen dazu auch die Polizei, der örtliche Energie- und Wasserversorger sowie die Derendinger Vereine – unter einen Hut zu bekommen.
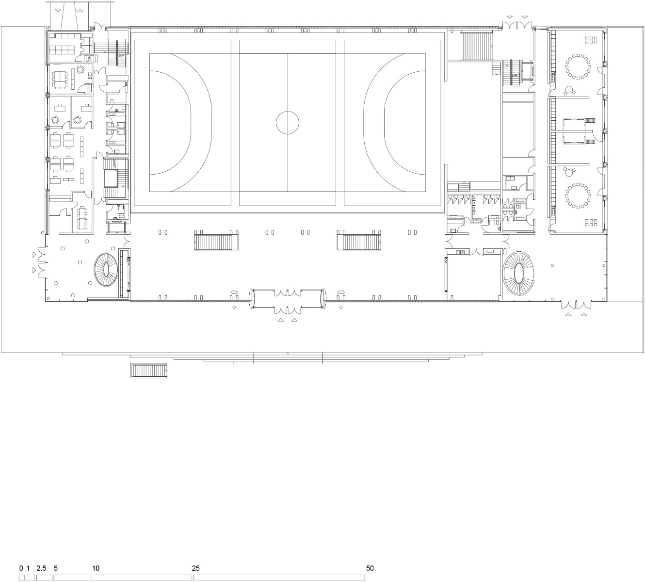
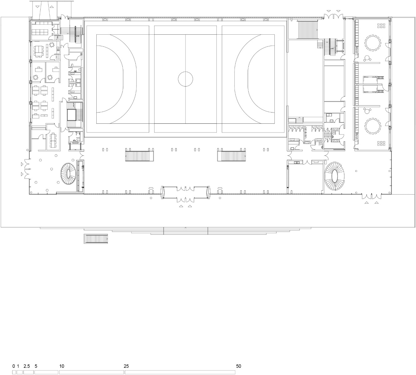
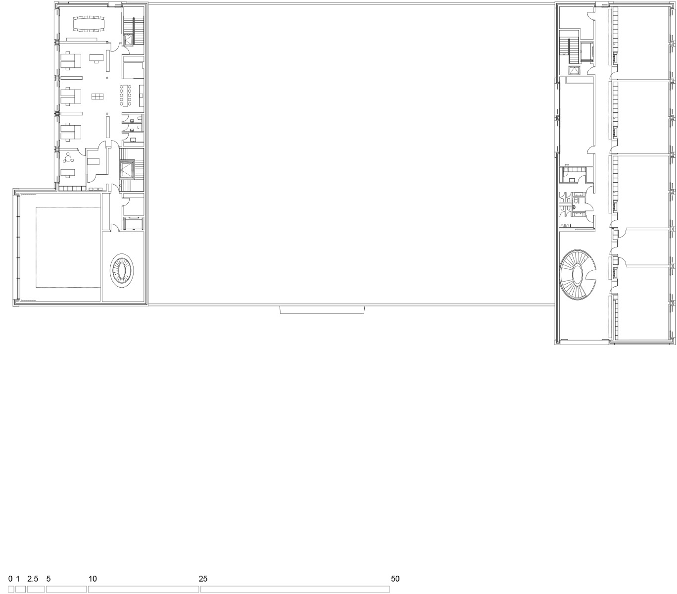
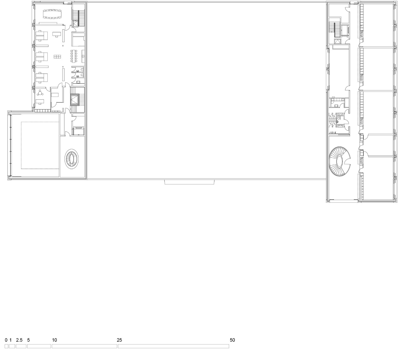
Der Entwurf der Wettbewerbssieger Ern+ Heinzl reagiert auf die disperse Solitärbebauung im Ortszentrum mit einer Großstruktur aus formal ausdifferenzierten, stadtraumprägenden Einzelelementen. Zwei markante, dreigeschossige Gebäuderiegel mit Lochfassaden aus großformatigen Betonfertigteilen schließen die Neue Mitte im Westen und Osten ab. Der westliche von ihnen, an einem neu angelegten öffentlichen Vorplatz gelegen, umfasst die Gemeindeverwaltung samt Sitzungssaal und die Räume der Polizeiwache, der östliche enthält zusätzliche Räume für die örtliche Primarschule und die Kita. Aus den Klassenzimmerfenstern fällt der Blick auf die Sportplätze, die das Areal im Nordosten abschließen.


© Stefan Müller
Große Auskragungen in beiden Riegeln leiten Besucher und Schülerinnen auf die jeweiligen Eingänge zu. Dazwischen öffnet sich, halb ins Gelände eingegraben, eine Dreifachturn- und Mehrzweckhalle mit Zuschauergalerie. Letztere ist vom Schulhof im Süden aus ebenerdig zu erreichen.


© Stefan Müller
Stahlbeton ist das – auch optisch – dominierende Material nicht nur in den mehrgeschossigen Kopfbauten, sondern auch in der Halle. Hier besteht die Primärtragstruktur in Hallenquerrichtungen aus vorfabrizierten Betonstützen und -trägern. Letztere sind paarweise angeordnet, um ihre Konstruktionshöhe gering zu halten. Darauf liegen vorfabrizierte Flachdecken auf.


© Stefan Müller
Nach Angaben der Tragwerksplaner WAM erlaubte die weitgehende Vorfertigung eine schnelle Montage auf der Baustelle. Die beiden Seitenflügel wurden mit Flachdecken, tragenden Fassaden sowie tragenden Innenstützen und -wänden erstellt. Um spätere Änderungen der Raumaufteilung zu erleichtern, beschränken sich die Stahlbetonwände im Inneren auf die Korridore und die Erschließungskerne.
Architektur: ern+ heinzl Architekten
Bauherr: Einwohnergemeinde Derendingen
Standort: Friedhofstrasse 35, 4552 Derendingen (CH)
Tragwerksplanung: WAM Planer und Ingenieure
Landschaftsarchitektur: Bischoff Landschaftsarchitektur
TGA-Planung: Enerconom
Baumanagement: Jaeger Baumanagement















