Ökologisches Leichtgewicht
Sands End Arts and Community Centre von Mæ in London
© Rory Gardiner
Rund 8 ha groß ist der South Park im Londoner Stadtteil Fulham. Vor seiner Eröffnung im Jahr 1904 züchtete hier einer der größten Gärtnereibetriebe des Landes Obstbäume und errichtete dazu auch einige Gewächshäuser unmittelbar an der Umfassungsmauer des Parks. Deren Architektur hat das Londoner Büro Mæ nun mit seinem Entwurf des rund 700 m² großen Sands End Arts and Community Centre aufgegriffen. Natürlich nicht eins zu eins, sondern in vergrößerter, an die veränderte Nutzung angepasster Form. Ein schlankes Brettschichtholzskelett trägt die Pultdächer des Multifunktionsbaus, der L-förmig das ehemalige Wohnhaus des Gärtners umgibt. Hohe Oberlichter überragen die Parkmauer und geben den Neubau bereits von der Straße aus zu erkennen.


© Rory Gardiner
Apropos Nutzung: Die stand zur Auftragserteilung gar noch nicht genau fest. So gestalteten die Architekten neben einer 140 m² großen Kita und einem WC-Trakt vor allem große, flexibel zu bespielende Räume, die für Veranstaltungen nutzbar sind und ein Café beherbergen könnten. Auch das Erdgeschoss des Altbaus haben sie entkernt; hier können zum Beispiel Kunstausstellungen stattfinden.
Man betritt das Gemeindezentrum und den dahinter liegenden Park durch eine diagonale, dreiteilige Raumsequenz: vom gepflasterten Vorhof direkt hinter der Parkmauer über eine Lobby in einen zweiten Hof auf der Südseite, zwischen Alt- und Neubau.


© Bertrand Verney


© Rory Gardiner
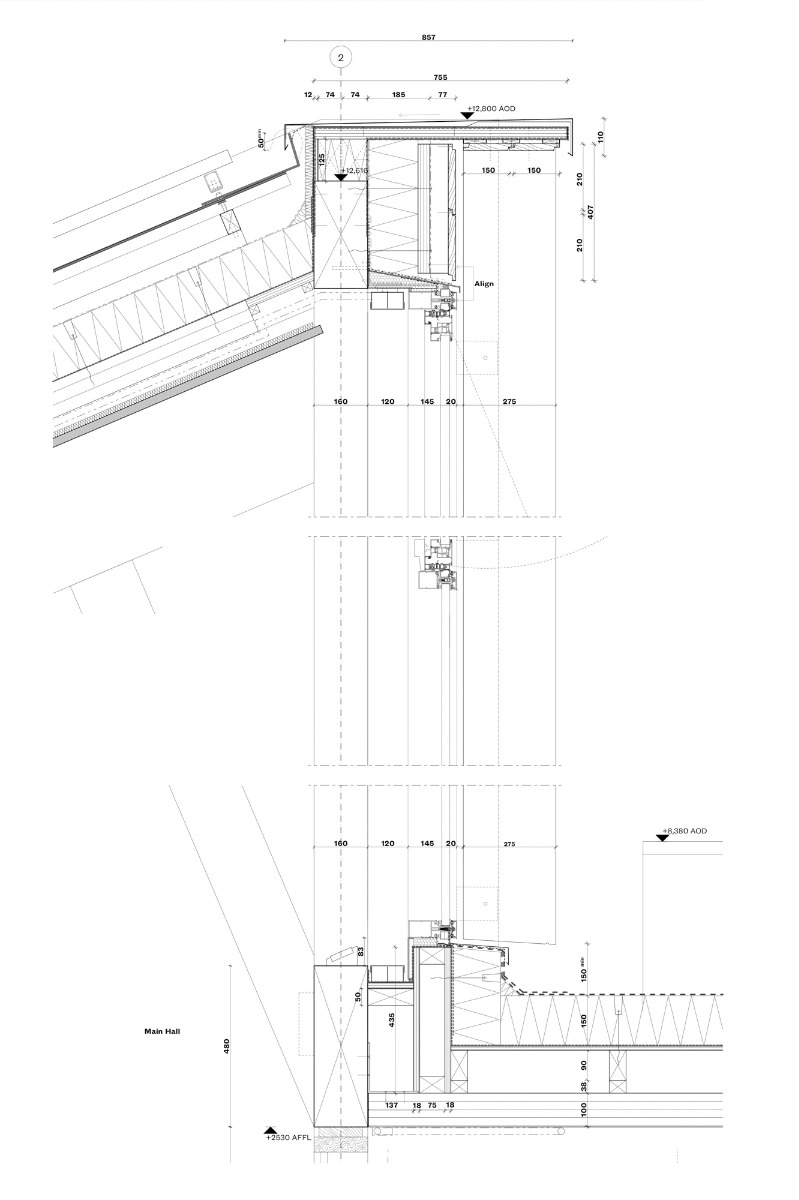
Materialeffizienz und Recycling standen bei der Konstruktion des Gemeindezentrums hoch im Kurs: Das Holztragwerk ist nach Angaben der Architekten auf ein Minimum reduziert und wo möglich wurde auf Verbindungselemente aus Stahl verzichtet und auf leichte Demontierbarkeit geachtet. Auf den Dachträgern liegen 100 mm dicke Brettsperrholzplatten auf, deren Unterseiten mit Holzwolle-Leichtbauplatten verkleidet sind.
35% der Baumaterialien sind recycelt – allen voran die cremefarbenen Fassadenziegel. Dabei handelt es sich nicht um wiederverwendete Steine, sondern um ein Produkt des niederländischen Herstellers StoneCycling. Dieser brennt neue Ziegel aus gemahlenen, mineralischen Bauabfällen und Lehm. Da diese teurer sind als übliche Steine und die Herstellung immer noch Energie verbraucht, sparten die Architekten Material, indem sie die Architekten hochkant vermauern ließen.
BLINDTEXT Mehr dazu in Detail 3.2022 und in unserer Datenbank Detail Inspiration.


© Rory Gardiner


© Rory Gardiner
Lorem Ipsum: Zwischenüberschrift
Architektur: Mæ
Bauherr: London Borough of Hammersmith and Fulham
Standort: South Park, Peterborough Rd, London SW6 3EZ (GB)
Tragwerksplanung: Elliot Wood
Landschaftsarchitektur: J & L Gibbons
Akustik: Mach Acoustics
TGA-Planung: Max Fordham
Bauunternehmen: Neilcott Construction

















