Lichtdurchflutete Lernlandschaft
Schule bei Basel von Thomas Fischer Architekten
Unter der auffälligen Sheddach-Landschaft befinden sich gleichmäßig belichtete Unterrichtsräume. © Julian Salinas Fotografie
Die Sekundarschule in Laufen bei Basel weist eine auffällige Dachlandschaft auf. Hinter den mit naturbelassenem Aluminium verkleideten Sheddächern verbirgt sich ein Raumkonzept mit großzügigen, lichtdurchfluteten Klassenräumen. Thomas Fischer Architekten schufen eine robuste Gebäudestruktur, die sich perfekt für eine flexible Unterrichts- und Raumgestaltung eignet.


Hinter den Sheddächern verbergen sich großzügige Unterrichtsräume mit Werkstattcharakter. © Julian Salinas Fotografie
Kompakter Baukörper, gestapelte Funktionen
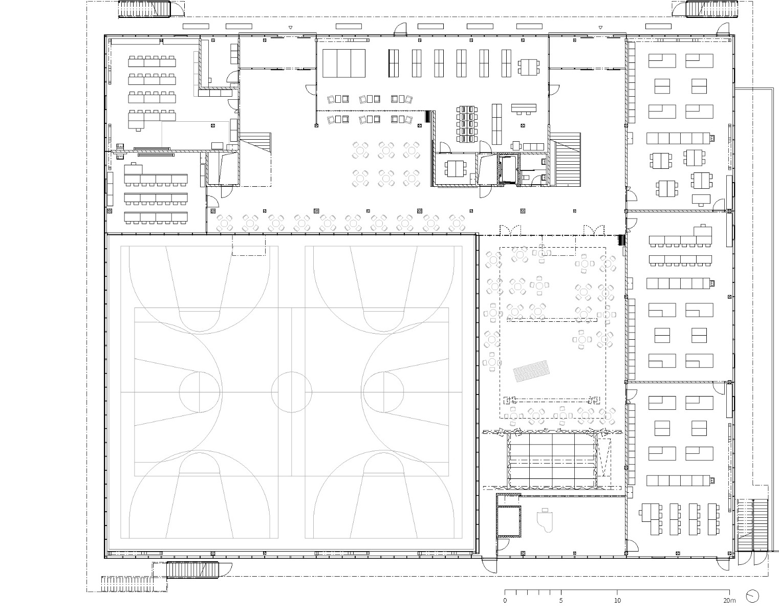
Das Schulgebäude für die Jahrgangsstufen 7 bis 9 liegt auf einem dreieckigen Grundstück zwischen Einfamilienhäusern und ersetzt zwei Bestandsbauten aus den Jahren 1963 und 1972. Um den Flächenverbrauch zu minimieren, entschieden sich die Architekten für einen kompakten Baukörper mit einem Stahltragwerk. Die Stapelung der Funktionen lässt sich bereits an der Fassade ablesen.
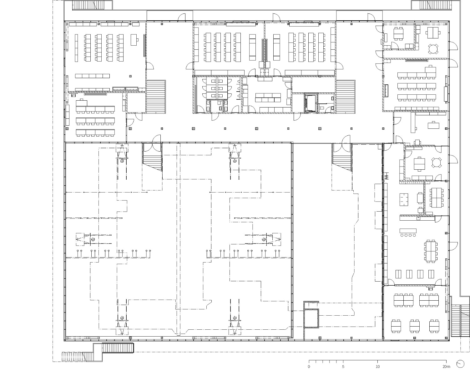
Auf den beiden untersten Ebenen liegen die Räume mit öffentlichem oder gemeinschaftlichem Charakter. Die dreigeschossige Doppelsporthalle im Untergeschoss kann außerhalb der Unterrichtszeiten auch für den Vereinssport genutzt werden. Eine zweigeschossige Aula bildet das räumliche Zentrum im Erdgeschoss. Sie wird genutzt für unterschiedlichste Aktivitäten wie Essen, Lernen oder Schulfeste feiern. Das erste Obergeschoss zeichnet sich durch unterschiedlich hohe Lufträume aus, die spannende Blickbezüge zwischen den Ebenen und in die tieferliegende Sporthalle ermöglichen. Umliegend befinden sich Fachräume sowie ein Bereich für das Lehrpersonal.


Die Klassenzimmer haben jeweils eigene Fluchtwege über umlaufende Balkone. © Julian Salinas Fotografie
Viel Licht im Klassenzimmer
Alle Unterrichtsräume sind im 45 × 57 m großen Dachgeschoss angeordnet. Insgesamt 18 flexibel zusammenschaltbare Klassenzimmer reihen sich hier an zwei frei bespielbaren Mehrzweckbereichen auf. Diese erstrecken sich nahezu über die gesamte Gebäudetiefe und ermöglichen projektbezogenes, interdisziplinäres Arbeiten. Vollverglaste Wände sorgen für ein Maximum an Transparenz. Textile Vorhangsysteme setzen farbliche Akzente und steuern den Grad an Intimität. Die Klassenzimmer haben jeweils eigene Fluchtwege über ringsum verlaufende Balkone. Dadurch kann die Erschließungsfläche im Innenraum minimiert und für den Unterricht aktiviert werden. Zwölf nach Norden ausgerichtete Sheddächer sorgen für eine optimale Versorgung mit natürlichem Tageslicht. Sie bedecken die gesamte Dachfläche und lassen die Lernlandschaft nach außen prägnant in Erscheinung treten.


Nach Norden ausgerichtete Sheddächer sorgen für gleichmäßige Lichtverhältnisse. © Julian Salinas Fotografie
Effizienz durch Vormontage
Das Stahltragwerk ist laut Thomas Fischer „als pragmatisches und kraftvolles Gerippe konzipiert“. Fünf zweigeschossige Fachwerkträger mit jeweils knapp 6 m Höhe tragen die Sheddächer sowie die Decke über der Sporthalle und der Aula. Sie wurden teilweise in der Werkstatt vorfabriziert sowie mit Schraubverbindungen auf der Baustelle zusammengesetzt. Vorgefertigte Holzelemente stabilisieren die druckbelasteten Fachwerkobergurte in Horizontalrichtung. Die Dachhaut der nach Süden geneigten Dächer besteht aus hinterlüftetem Edelstahlblech, ergänzt durch Photovoltaikelemente.
Mehr dazu in Detail 3.2024 und in unserer Datenbank Detail Inspiration.
Architektur, Innenarchitektur: Thomas Fischer Architekten
Team: Thomas Fischer, Patric Kaufmann, Lionel Kirrmann, Benedikt Heesen, Jochen Hien, Vera Hobrecker, Alessandro Mattle, Francisco Rocha, Stephan Schürmann, Katharina Starnecker
Bauherr: Hochbauamt der Bau- und Umweltschutzdirektion Kanton Basel-Landschaft
Standort: Brislachstraße 46, Laufen (CH)
Tragwerksplanung: Schnetzer Puskas Ingenieure
Landschaftsarchitektur: Koepflipartner Landschaftsarchitekten
Bauphysik: Gartenmann Engineering
TGA-Planung: HL-Technik
Brandschutzplanung: Febo Brandschutz
Lichtplanung: LLAL
Bauleitung: Confirm
Bauunternehmen: Steiner
Bruttogrundfläche: 8420 m²
Nutzungsfläche: 6148 m²
Anzahl Unterrichtsräume: 18
Anzahl Schülerinnen und Schüler: 450
Baukosten: 40 Mio CHF
































