Bewegtes Lernen
Schulneubau in Kopenhagen von C.F. Møller Architects
Schule auf Islands Brygge, © Adam Mørk
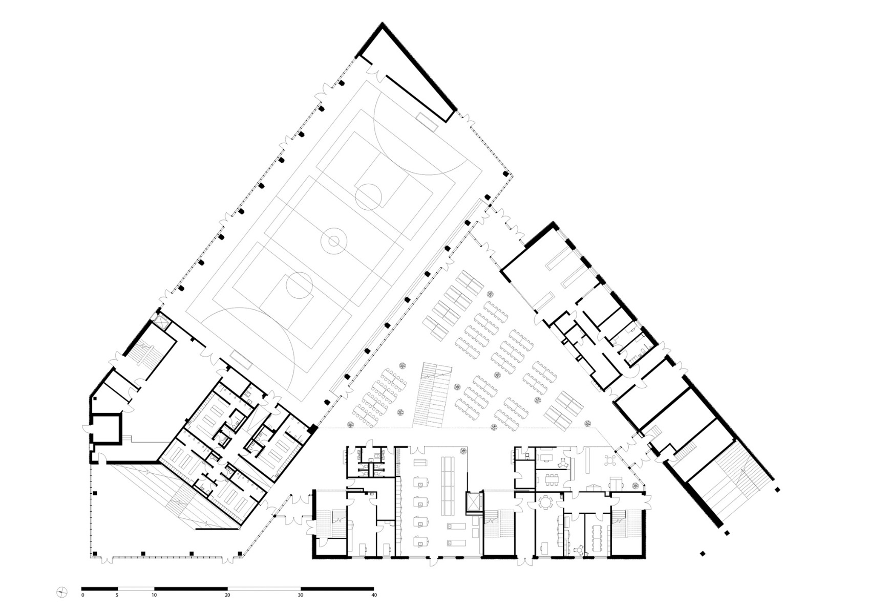
Ernährung und Bewegung stehen im Zentrum der Schule auf Islands Brygge in Kopenhagen. C.F. Møller Architects errichten in Zusammenarbeit mit Tredje Natur einen Schulneubau, der das ganzheitliche Konzept der Schule in Architektur übersetzt. Der Fokus auf die Verbindung von theoretischem Unterricht mit körperlichem und multisensorischem Lernen gibt dem Bau seine Gestalt.


Die Schule befindet sich in der Stadt zwischen Hafen und Naturschutzgebiet. © Adam Mørk
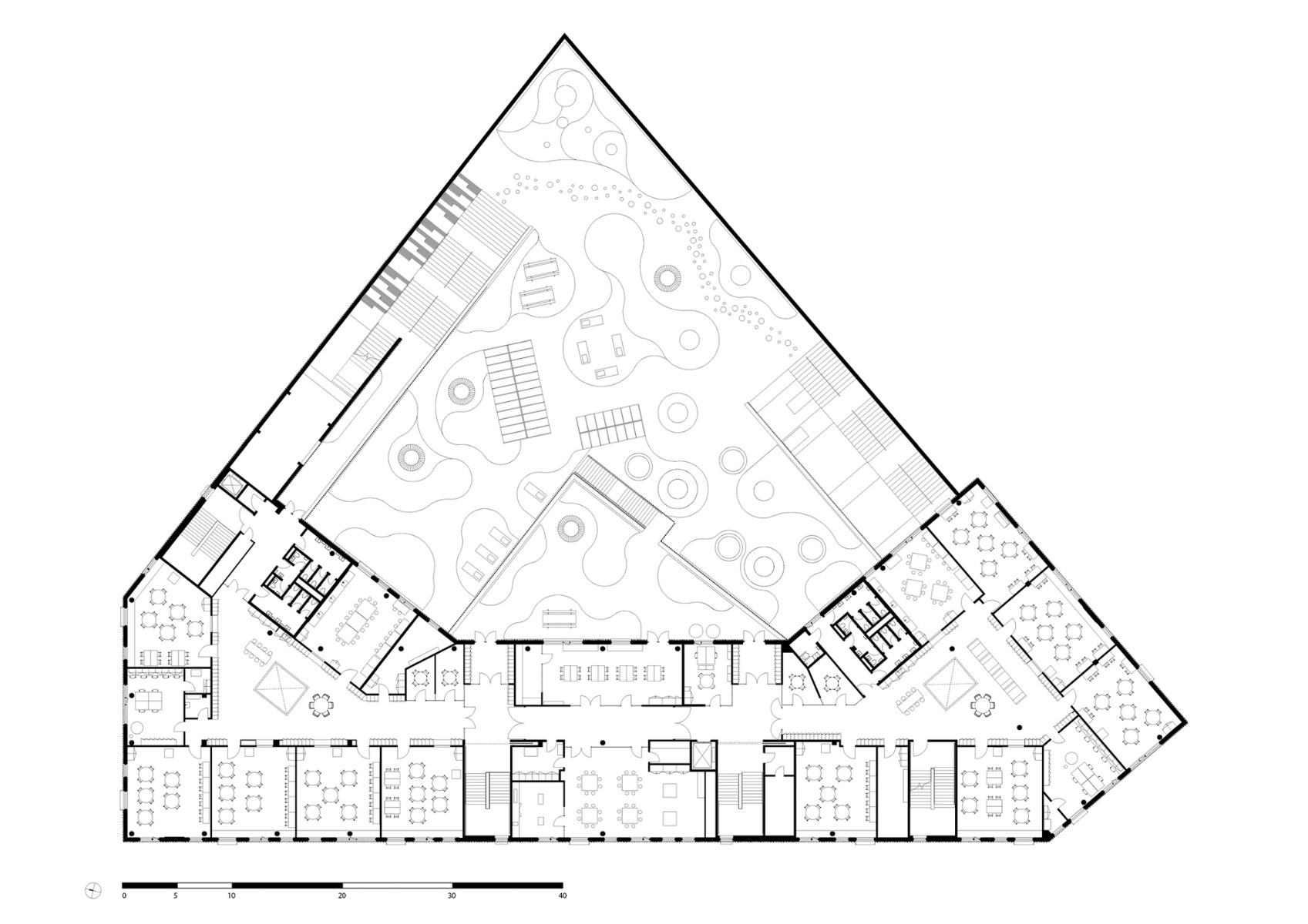
Die dreieckige Grundform des Gebäudes orientiert sich in Richtung der angrenzenden Bereiche Stadt, Hafen und Amagar-Feld, ein ehemaliges Militärareal und heutiges Naturschutzgebiet. Der Entwurf zitiert die Umgebung in der Wahl der Materialien und der Farben.
Zentraler Knotenpunkt
Das Innere der Schule teilt sich in die Klassenräume und die Gemeinschaftsbereiche. Da Ernährung ein zentrales Motiv der Schulphilosophie ist, fungiert die Mensa nicht nur als Kantine. Sie ist zugleich der Knotenpunkt, der alle Funktionsbereiche des Gebäudes miteinander verbindet. Die doppelte Raumhöhe des Speisesaals sowie die zusätzliche Belichtung durch Oberlichter unterstreichen dessen Bedeutung als sozialen Treffpunkt für die Schüler.


Die Mensa markiert den räumlichen und funktionalen Mittelpunkt des Gebäudes. © Adam Mørk
Bewegung in luftiger Höhe
Zu Bewegung lädt nicht nur die Sporthalle ein. Großzügige Freitreppen bilden den direkten Zugang zu der drei Ebenen umfassenden Dachlandschaft, deren oberster Teil als Sportbereich gestaltet ist. Den Schülern steht hier eine Laufbahn, ein Parkourbereich mit Klettergerüst und ein eingezäuntes Ballspielfeld zur Verfügung.


Die Dachlandschaft bietet Raum für sportliche Aktivitäten. © Adam Mørk
Dank der großflächigen Verglasungen der Gemeinschaftsbereiche stehen die Innen- und Außenräume in engem Kontakt zueinander. Die Räume, in denen der naturwissenschaftliche Unterricht stattfindet, liegen in direkter Nähe zu der unteren Dachzone mit den Schulgärten und den Gewächshäusern. Diese können im Biologie- oder Chemieunterricht genutzt werden und sie dienen als Anbaufläche für Kochkurse an der Schule.
Mehr dazu in Detail 3.2024 und in unserer Datenbank Detail Inspiration.
Architektur: C.F. Møller Architects in Zusammenarbeit mit Tredje Natur
Bauherr: Stadt Kopenhagen, Byggeri København
Standort: Artillerivej 126, 2300 Kopenhagen (DK)
Landschaftsarchitektur: C.F. Møller Architects in Zusammenarbeit mit Tredje Natur
Konstruktion, Ingenieurwesen: MT Højgaard




























