Advertorial
Stadthaus in Wien von feld72 Architekten
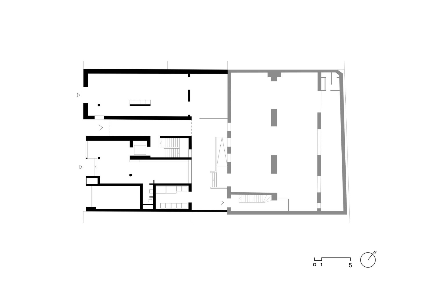
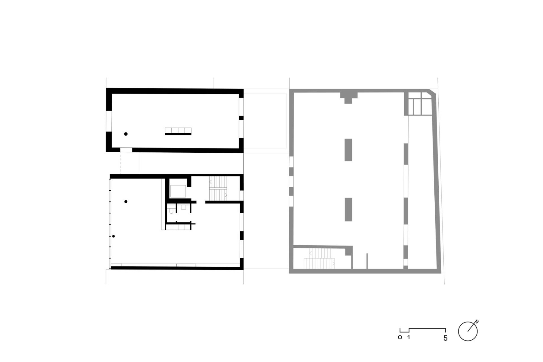
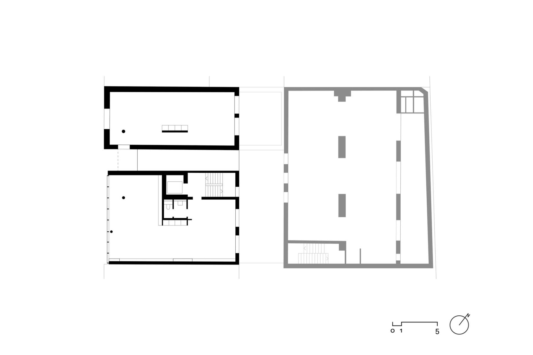
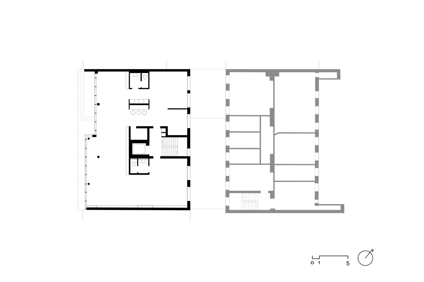
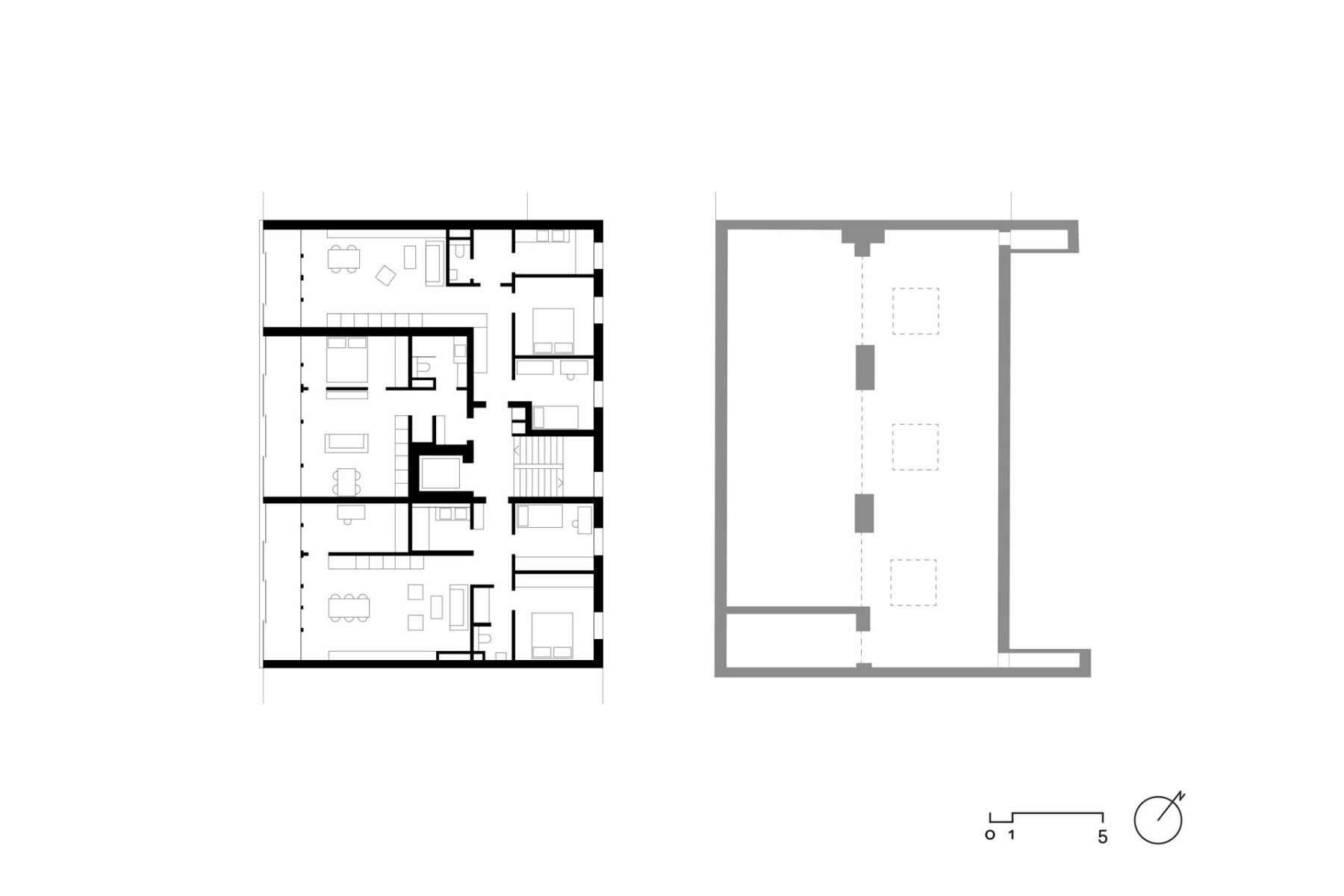
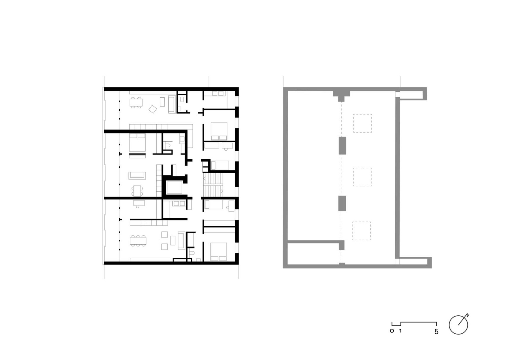
Feld72 reagierte auf die Herausforderung innerstädtischer Verdichtung mit einem Neubau entlang der Straußengasse, mit 13 Wohnungen, 2 Einzelhandelsflächen und 2 Büroetagen. © Hertha Hurnaus
Lorem Ipsum: Zwischenüberschrift
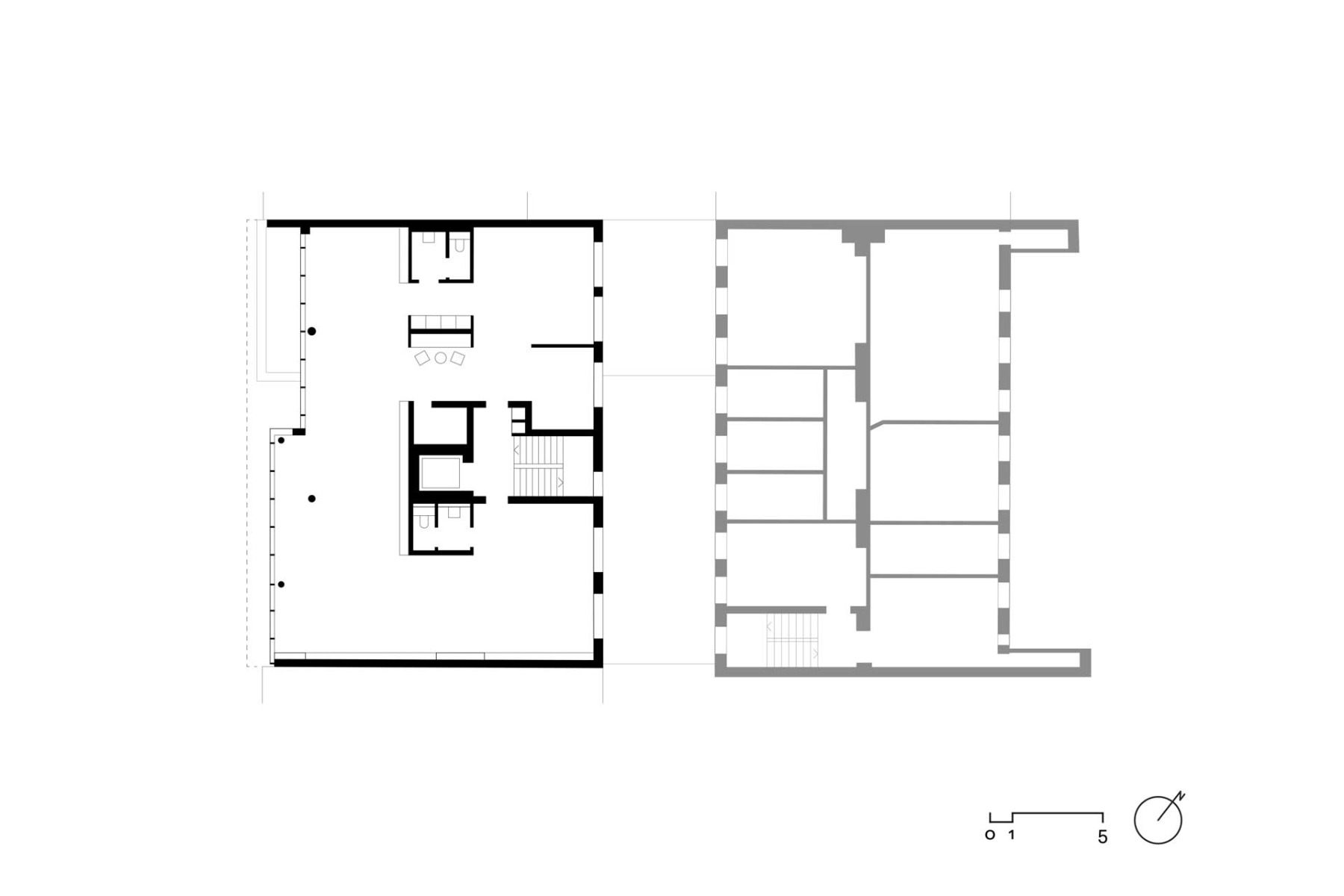
Im 5. Wiener Gemeindebezirk Margareten wurde von feld72 Architekten eine jahrzehntelang bestehende Baulücke geschlossen. Der Neubau schlägt eine Brücke zwischen notwendiger innerstädtischer Nachverdichtung und dem sensiblen Erhalt historischer Bausubstanz. Gestalterischer Blickfang ist die filigran detaillierte Glasfassade zur Straußengasse, die einen Altbau umschließt und zugleich hervorhebt: Mit industriellen Anklängen verweist die neue Gebäudehülle auf den Bestand, während eine vorgelagerte gläserne Pufferzone ihr Leichtigkeit und räumliche Tiefe verleiht.


Flexible Balkonverglasungen sind oft in hohen Geschossen eine bautechnische Herausforderung – hier spielt das Schiebesystem von Solarlux seine Stärken aus. © Hertha Hurnaus


© Hertha Hurnaus
Filigrane Fassade mit flexiblen Wintergärten
Visuelle Tiefe in der Fassade entsteht durch die gläserne Pufferzone in den oberen Wohngeschossen. Diese sind als wandelbare, vor Lärm und Witterung geschützte Wintergärten konzipiert, die sich mittels raumhoher Schiebeelemente des Systems Proline S Mega von Solarlux flexibel öffnen und zu luftigen Loggien verwandeln lassen. Die Glaselemente sind hinter ein filigranes Geländer aus feinmaschigem Streckmetall gesetzt, davor sorgt ein textiler Vorhang aus semitransparentem Metallgewebe für beweglichen Sicht- und Sonnenschutz. So können die Bewohner:innen Licht, Raumklima und Privatsphäre individuell regulieren. „Diese Gestaltung ermutigt die Bewohner:innen dazu, ihre Wohlfühlzone aktiv selbst zu bestimmen – mal heller, mal dunkler, kühler oder wärmer, luftiger oder behaglicher“, beschreibt Peter Zoderer von feld72 das Entwurfskonzept.


Werden die raumhohen Glaselemente zur Seite geschoben, verwandeln sich die Wintergärten von schützenden Klimapuffern in luftige Loggien. © Hertha Hurnaus
Schiebesystem für höchste Ansprüche
Besonders bei flächenbündigen Fassaden stellt das flexible Öffnen und Schließen von Balkonverglasungen in hohen Geschossen oft eine bautechnische Herausforderung dar. Hier entfaltet das Ganzglas-Schiebesystem Proline S Mega von Solarlux seine Stärken: Es erfüllt höchste Anforderungen an Transparenz, Statik und Design und bietet gleichzeitig zuverlässigen Schutz vor Schall, Wind und Wetter. Die seitlich rahmenlosen Glasscheiben sind oben und unten in schmalen Aluminiumprofilen fixiert, was eine gleichmäßige Lastabtragung und hohe Stabilität gewährleistet. Diese Konstruktion erfüllt alle sicherheitsrelevanten Anforderungen, einschließlich einer integrierten Aushebe- und Absturzsicherung.


Bei geschlossener Verglasung grenzen die Außenwände nicht an die kalte Außenluft, sondern das verglaste Volumen sorgt für passive Solargewinne. © Hertha Hurnaus
Im Projekt Stadthaus Wien bestehen die Schiebeanlagen – je nach Wohnungsbreite – aus vier oder sechs Elementen mit Höhen von 2576 mm und Breiten bis 1157 mm. Zwei beziehungsweise drei Elemente lassen sich nach links und rechts auf flachen Bodenschienen verschieben, um die Fassade großzügig zu öffnen. Kugelgelagerte Edelstahl-Laufwagen mit wartungsarmen Rollen sorgen für eine leise und mühelose Bedienung.


© Hertha Hurnaus


© Bildcredit
Optimierte Tragstruktur und energieeffizientes Raumkonzept
Die Tragstruktur des Neubaus besteht aus Stahlbetonwänden und -stützen in Scheibenbauweise sowie Stahlbetondecken. Das Dach wurde als Sargdeckelkonstruktion in Massivbauweise ausgeführt und geht in zwei eingeschnittene Terrassen und ein Flachdach über.
Das Energie- und Technikkonzept umfasst eine Luft-Wasser-Wärmepumpe mit Photovoltaikanlage sowie Bauteilaktivierung in den Bürogeschossen und im zweiten Dachgeschoss. Einen weiteren Beitrag zur Energieeffizienz leisten die straßenseitig vorgelagerten, unbeheizten Wintergärten mit Südwestausrichtung: Sie dienen als Klimapuffer für die dahinterliegenden Wohnräume. Bei geschlossener Verglasung grenzen die Außenwände nicht an die kalte Außenluft, sondern das verglaste Volumen sorgt für passive Solargewinne. Bei sommerlicher Überhitzung können die Glaselemente zur Seite geschoben werden, wodurch sich die Wintergärten in luftige Loggien verwandeln.
Hersteller: Solarlux
Produkt: Balkonverglasungen, Schiebesystem
Architektur: feld72 Architekten
Projekt: Stadthaus Wien




















