Innenhof bringt Privatsphäre
Wohnhaus in Erl von Torsten Herrmann
© Gustav Willeit
Der Tiroler Grenzort Erl im Inntal ist Architekturinteressierten vor allem durch das Festspielhaus von Delugan Meissl Architekten bekannt. Ansonsten gleicht er vielen anderen Gemeinden im Inntal: eine Streusiedlung aus historischem Ortskern und Wohngebieten, in denen sich die Einfamilienhäuser mitunter dicht an dicht drängen.


© Gustav Willeit
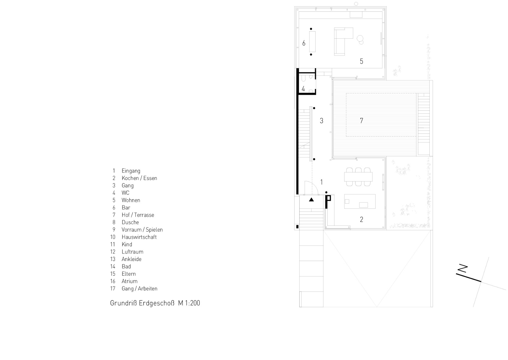
In solch einer Lage, etwas außerhalb des Zentrums an einem Richtung Osten ansteigenden Hang, steht auch das Hofhaus von Torsten Herrmann. Seine beiden Gebäudeflügel – ein straßenseitiger und ein hangseitiger – werden von einem schmalen Erschließungstrakt mit einläufiger Treppe verbunden. Im Zentrum des U-förmigen Grundrisses liegt der private, nach Süden geöffnete Innenhof.
Ein eingeschobener Sichtbetonrahmen überdacht die Terrasse zum Teil und zeichnet die Trennung der Geschosse sowie die Kontur des Innenhofes nach. Die Fassaden des Massivbaus sind weiß verputzt und werden von rahmenlosen, großformatigen Fenstern mit integrierten Lüftungsflügeln aus unbehandelter Eiche unterbrochen.


© Gustav Willeit
Das gleiche Holz wählten die Architekten auch für Garagentor und Haustür sowie – in geölter Ausführung – als Bodenbelag in den Innenräumen. Im Erdgeschoss liegt hinter dem Eingang ein großzügiger Koch- und Essbereich, im hinteren Trakt, leicht abgesenkt und in den Hang eingeschoben, das Wohnzimmer. Es erhält durch ein umlaufendes Oberlichtband dicht unter der Raumdecke zusätzliches Licht.


© Gustav Willeit


© Gustav Willeit
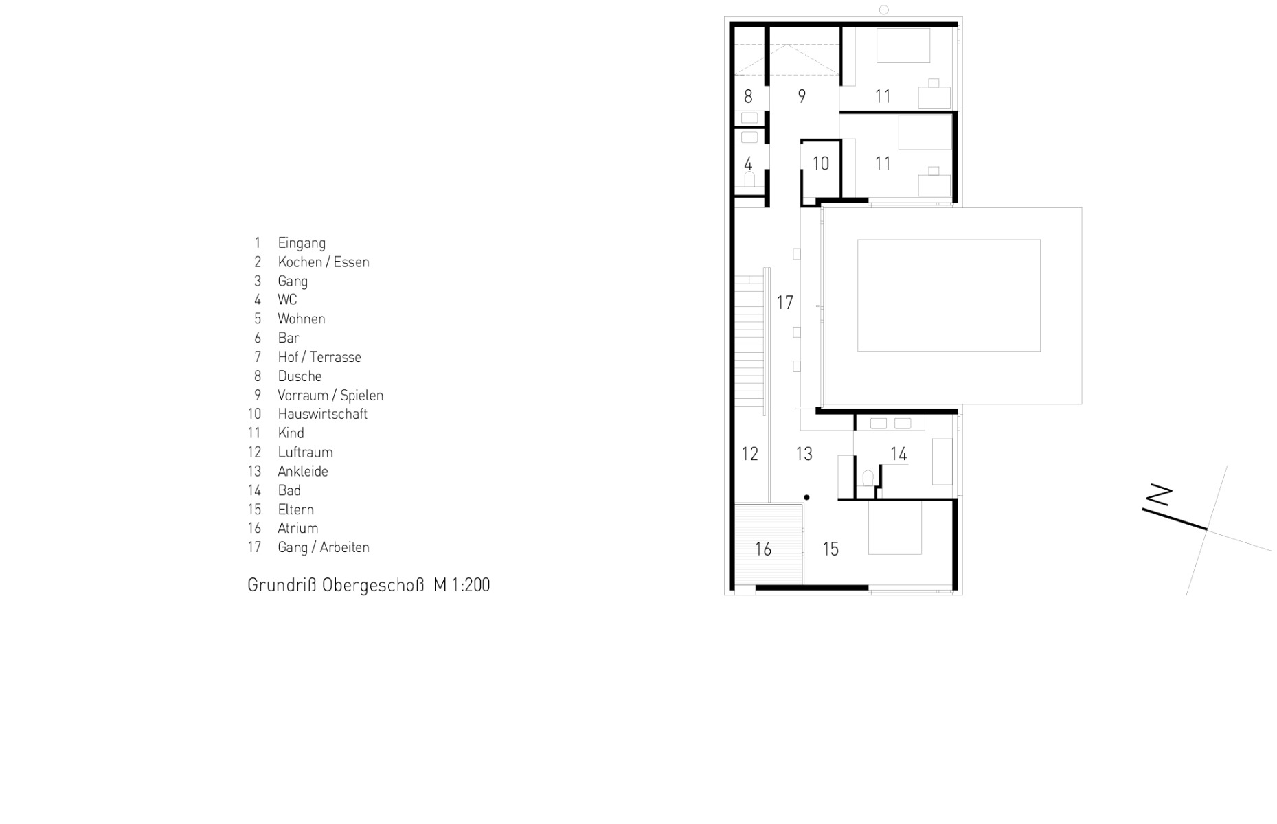
Eine ähnliche Zweiteilung finden wir auch im Obergeschoss: An der Straße schlafen die Eltern, im hangseitigen Gebäudeteil liegen die Kinderzimmer. An den Schlafbereich der Eltern schließt eine kleine Terrasse an, die als Atrium konzipiert, den Raum optisch vergrößert. Im Untergeschoss des Hauses sind neben der Garage weitere Neben- und Fitnessräume untergebracht.


Dies ist eine Bildunterschrift
Lorem Ipsum: Zwischenüberschrift
Beiträge immer mit einem Textblock abschließen
Architektur: Torsten Herrmann
Bauherr: privat
Standort: Erl (AT)


















