Raum zum Wachsen
Wohnhaus von c/o now bei Potsdam
Wohnhaus bei Potsdam, © Zara Pfeifer & c/o now
Lacaton & Vassal als Vorbild: Nach dem Haus-im-Haus-Prinzip entstand in Brandenburg ein kostengünstiges Einfamilienhaus, das sich bei Bedarf unkompliziert erweitern lässt.


Das kostengünstige Einfamilienhaus lässt sich bei Bedarf erweitern. © Zara Pfeifer & c/o now
Bauprinzip von Fertighallen
An ein typisches Einfamilienhaus erinnert der Bau, den das Team von c/o now für eine Berliner Familie schuf, eher nicht. In der ländlich geprägten Gegend zwischen Potsdam und Brandenburg an der Havel sticht die spröde Erscheinung aber auch nicht sonderlich heraus – ist das Bauprinzip doch dem für Fertighallen entlehnt, die in der Landwirtschaft inzwischen die typischen Holzscheunen weitgehend abgelöst haben.
Der Bauherrenfamilie stand der Sinn ursprünglich eher nach einem aparten Sichtbetonhaus. Als die Architektinnen und Architekten jedoch vorrechneten, dass mit dem zur Verfügung stehenden Budget allenfalls eine 70 m² große Wohneinheit in Beton gegossen werden könnte, öffnete man sich auch für andere Vorschläge – denn größer als die alte Wohnung in Berlin sollte das „janz weit draußen“ geplante Eigenheim dann doch werden.


Das Wohnhaus entstand nach dem Haus-im-Haus-Prinzip. © Zara Pfeifer & c/o now
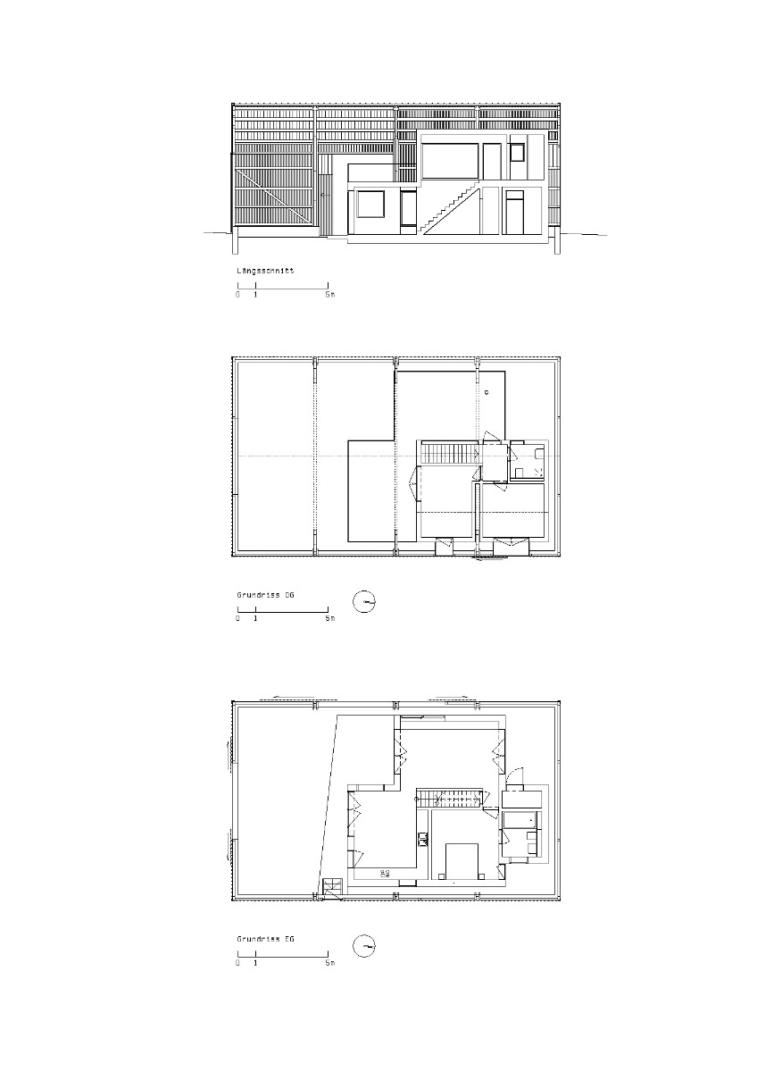
Haus-im-Haus-Prinzip
„Where the Wild Morels Grow“ nannte das Team von c/o now das Projekt, dessen Kern eine Haus-in-Haus-Lösung bildet. Mit ihrem Entwurf beziehen sich die Architektinnen und Architekten auf Arbeiten von Lacaton & Vassal: Eine witterungsfeste, aber nicht klimatisierte Halle aus vorgefertigten Elementen in Holzbauweise schafft mit ihren 200 m² Grundfläche einen Rahmen für eine gedämmte Wohneinheit. Diese kann – wenn nötig – wachsen, da sie sich unkompliziert sowie verhältnismäßig kostengünstig neuen Bedürfnissen anpassen lässt.


Die Wohnfläche erstreckt sich über zwei Etagen. © Zara Pfeifer & c/o now


Trapezblech und Sandwichpaneele bilden die Fassade. © Zara Pfeifer & c/o now
Fassade
Bekleidet ist die Konstruktion mit opaken, transparenten und teilweise öffenbaren Industriebaustoffen wie Trapezblechen und Sandwichpaneelen. Zwei große Schiebetore erlauben die Öffnung zum Garten hin. Die eigentliche Wohneinheit im Inneren wartet mit 90 m² Fläche auf zwei Ebenen auf, dazu kommen 65 m² Freifläche in Form von Loggien oder Terrassen. Der Indoor-Garten erstreckt sich über 60 m².


Wohnbereich mit Blick auf den Indoor-Garten, © Zara Pfeifer & c/o now
Wohnen mit mehr Freiraum
Während konventionelle Einfamilienhäuser aufgrund ihrer starren Konzeption so manche Grundrissänderung oder -erweiterung zu einem heute fast unbezahlbaren Vorhaben werden lassen, lädt das Haus von c/o now dazu ein, spontan zu wohnen und mit mehr Freiraum zu leben.
Mehr dazu in Detail 1-2.2024 und in unserer Datenbank Detail Inspiration.
Architektur: c/o now
Bauherr: privat
Standort: Groß Kreutz / Havel (DE)
Tragwerksplanung: Kränzliner Ingenieursbüro (Märkisch Linden, OT Kränzlin)






















