Im Dialog mit der Landschaft
Zwillings-Kitas von Löser Lott
Durch einen leichten Versatz der einzelnen Dachflächen entstehen Vor- und Rücksprünge, die das Gebäude räumlich differenzieren. © Löser Lott Architekten
Die lineare Struktur der umliegenden Felder und die kleinteilige Maßstäblichkeit der Wohnbebauung inspirierten Löser Lott Architekten zu zwei Kindertagesstätten am Ortsrand der nordhessischen Gemeinde Edermünde. Entstanden sind zwei nahezu identische Baukörper, die sich lediglich in ihrer Farbgebung unterscheiden: Lehmrot in Besse, Altgrün in Grifte.


Die kleinteilige Maßstäblichkeit der angrenzenden Wohnbebauung und die lineare Struktur der umliegenden Felder dienten als gestalterische Grundlage. © Lichtschwaermer
Flach geneigte Satteldächer
Leichte Versätze der Dachflächen erzeugen Vor- und Rücksprünge, die das Volumen räumlich differenzieren. Drei flach geneigte Satteldächer definieren den oberen Abschluss des Gebäudes. Die Fassadengestaltung greift regionale Bautraditionen auf: Monochrome Farbgebung und die Wahl des Materials erinnern an landwirtschaftliche Nutzbauten der Umgebung. Tragende Wände bestehen aus Holzständerbauweise, ergänzt durch eine äußere Hülle aus farbig lackiertem Stahltrapezblech. Vorgelagerte Laubengänge aus Stahl bilden eine Einheit mit dem stehfalzgedeckten Hauptdach. Vergitterte Brüstungen und horizontale Stürze fassen die Außenräume und betonen die gestalterische Einheit des Gebäudes.


Die Vor- und Rücksprünge der Laubengänge verbinden die Kita mit ihrer Umgebung. © Löser Lott Architekten


Über die Treppen ist ein direkter Zugang in den Garten möglich. © Simone Bossi
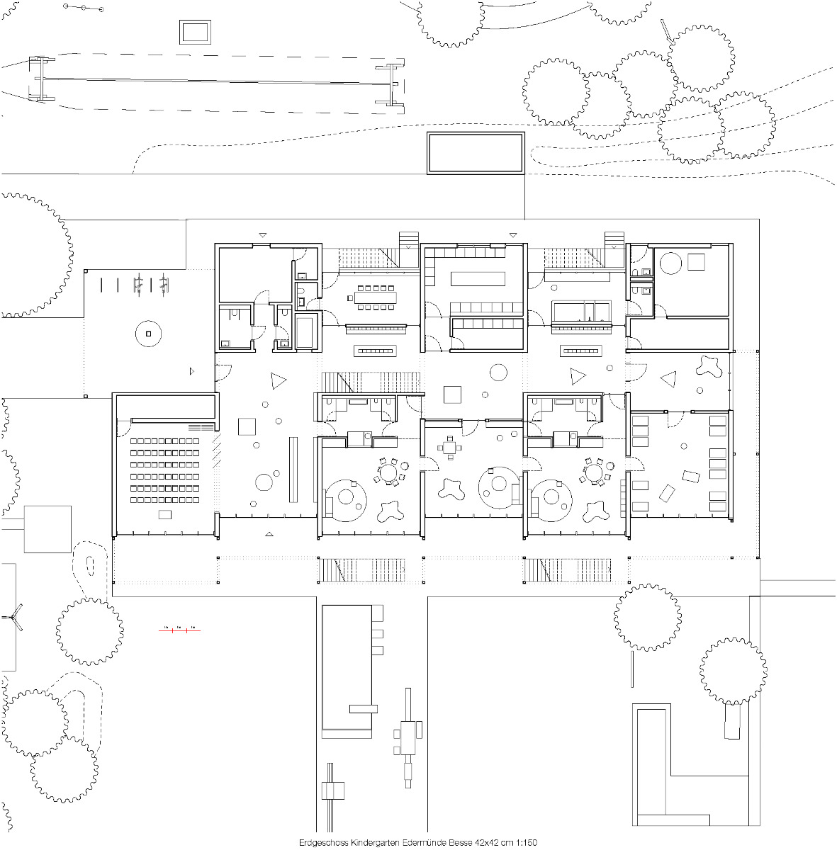
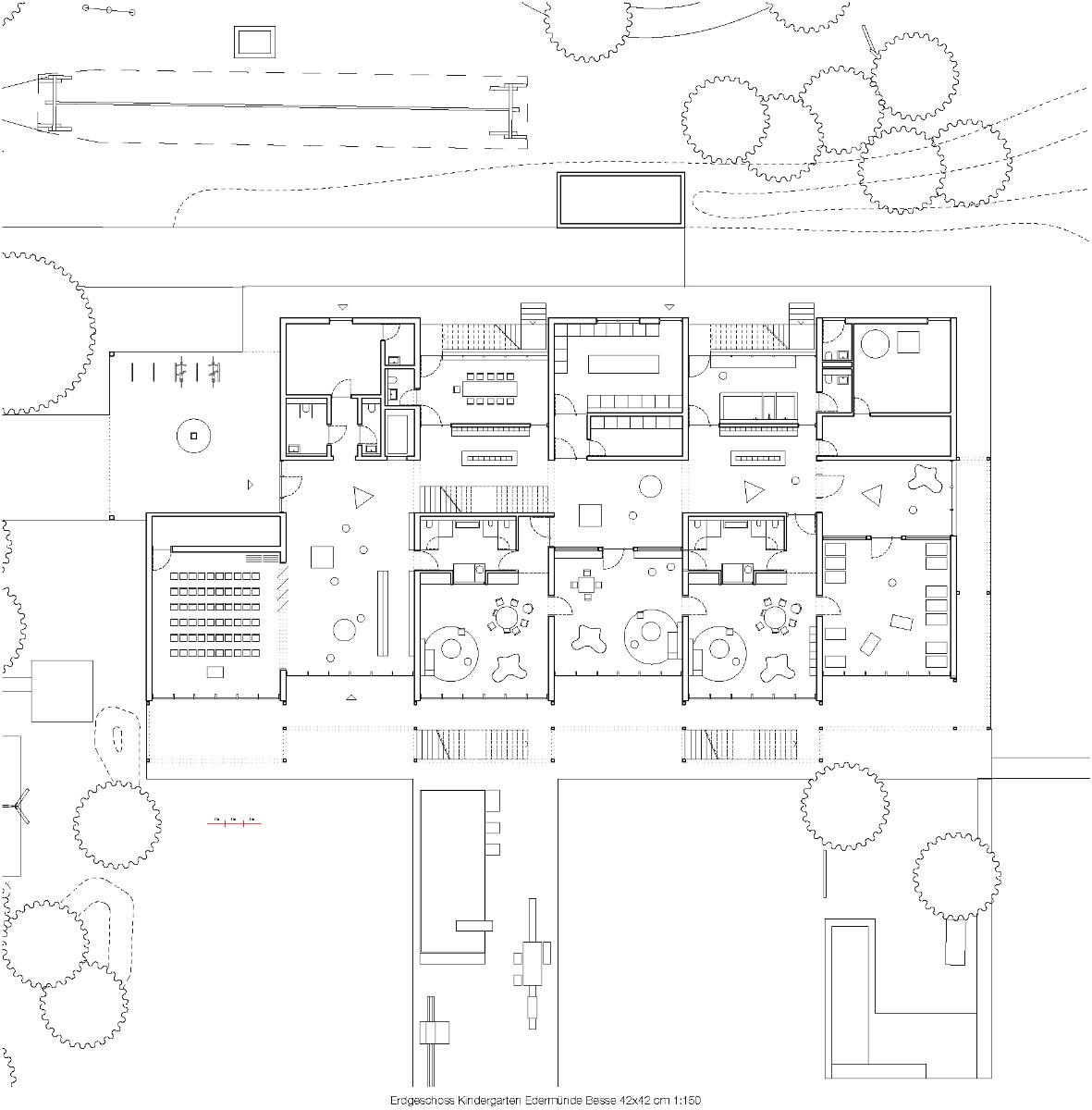
Lebendige Raumfolge
Die Innenräume überraschen mit einer lebendigen, fast spielerischen Raumfolge. Die sieben Gruppenräume sind nicht streng linear angeordnet, sondern leicht gegeneinander verschoben. So entstehen kleine Nischen, Rückzugsbereiche und offene Zonen, die flexibles Spielen und Lernen ermöglichen. Bodentiefe Fenster öffnen jeden Raum zur Sonne und zum grünen Außenbereich. Rückwärtig sind funktionale Räume wie Küche und Anlieferung untergebracht.


Oberlichter und runde Innenfenster bringen zusätzlich Tageslicht in alle Bereiche. © Simone Bossi


Materialien wie Birkenholz, weißer Putz und hellgrauer Gussbelag erzeugen eine warme, ausgewogene Atmosphäre. © Simone Bossi
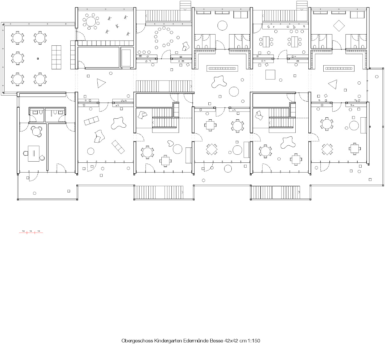
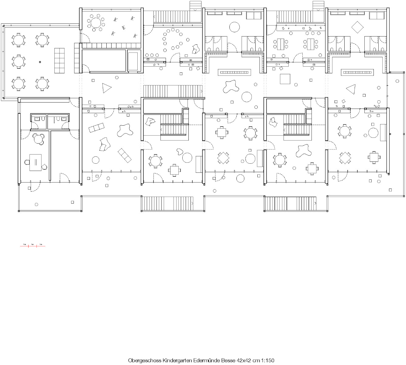
Fließende Übergänge
Im Obergeschoss setzt sich das Prinzip abwechslungsreicher Raumfolgen fort: Offene Aufenthaltsbereiche wechseln sich mit geschlossenen Zonen ab und schaffen fließende Übergänge zwischen Spiel, Lernen und kreativen Projekten. Sonderräume für Musik, Kunst und andere Aktivitäten erweitern das pädagogische Angebot. Ein Kindercafé mit Blick auf den Vorplatz lädt Kinder und Betreuer zu geselligen Momenten ein. Oberlichter und runde Innenfenster bringen zusätzlich Tageslicht in alle Bereiche, während Materialien wie Birkenholz, weißer Putz und hellgrauer Gussbelag eine warme, ausgewogene Atmosphäre erzeugen.


Die Gebäude verfügen über öffentlich zugängliche Spielplätze die sich zur umliegenden Landschaft öffnen. © Löser Lott Architekten
Die Gebäude sind barrierefrei konzipiert und verfügen über öffentlich zugängliche Spielplätze sowie großzügige Freiflächen, die sich zur umliegenden Landschaft öffnen und den Kindern ein naturnahes Erlebnis ermöglichen.
Mehr dazu in Detail 9.2025 sowie in unserer Datenbank Detail Inspiration.
Architektur: Löser Lott Architekten
Bauherr: Gemeinde Edermünde
Standorte: Auf der Sandkaute 30, 34295 Besse (DE); Baunatalweg 2, 34295 Grifte (DE)
Tragwerksplanung: EHS beratende Ingenieure für Bauwesen
Bauphysik, Brandschutz- und Akustikplanung: RBS Ingenieure
HLS- und Lichtplanung: PlanerAllianz
Landschaftsarchitektur: Studio ploymorph (LPH 1–5), Riehl Bauermann + Partner Landschaftsarchitekten (LPH 6–9)





















