Surrounded by forests and lakes
Glass House in the Uckermark by Sigurd Larsen
© Tobias König, Michael Romstöck
Lorem Ipsum: Zwischenüberschrift
The Uckermark, which is located in northeast Brandenburg, is a sparsely populated, quiet area characterized by forests and lakes. Two-thirds of the region enjoy particular protection as a National Natural Landscape, a status that makes the area a unique setting. In some places it would seem that time had stood still.


© Tobias König, Michael Romstöck
Lorem Ipsum: Zwischenüberschrift
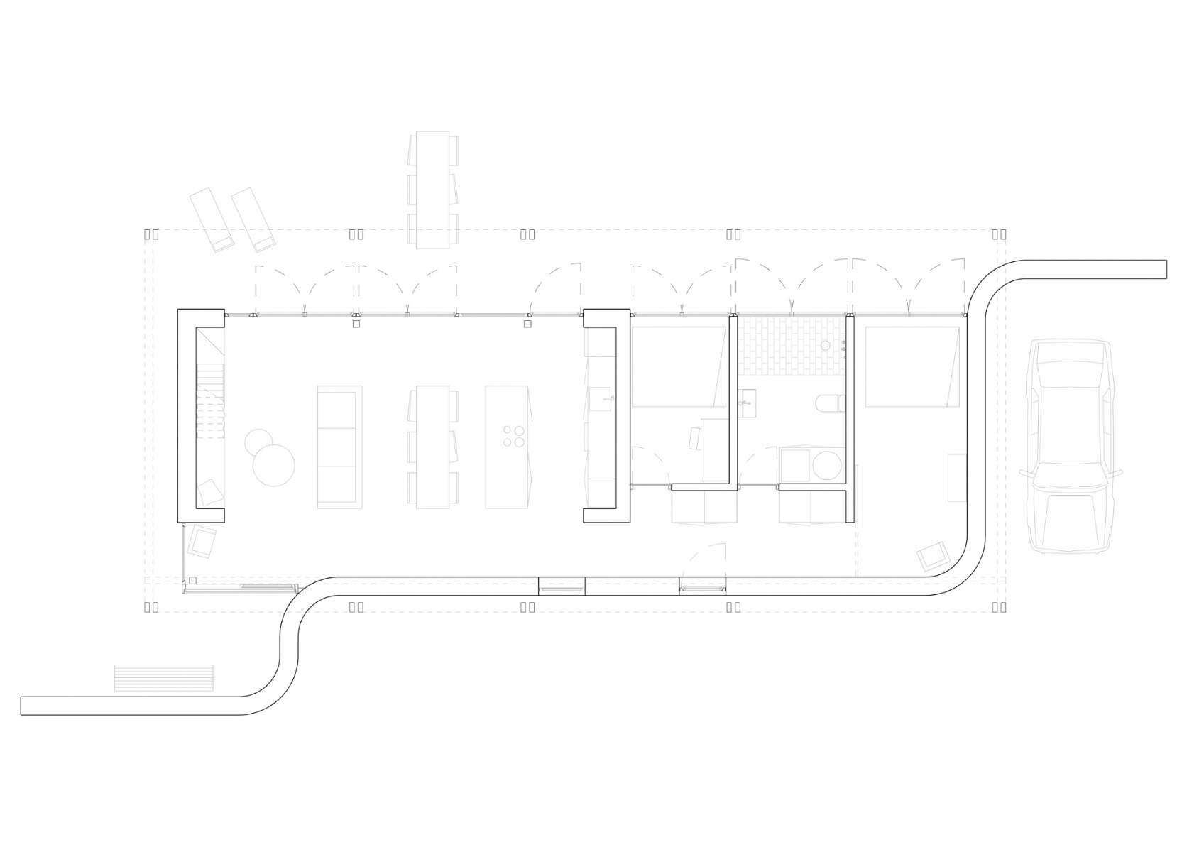
The Glass House by Sigurd Larsen stands amid this peaceful haven. It is a building of classic appearance featuring a simple floor plan whose ground level has two west-facing bedrooms, a bathroom and a generous open kitchen-living area. Conceived as a weekend house, it is an ideal retreat offering space for a small family and their many guests.
Lorem Ipsum: Zwischenüberschrift
All the rooms have been fitted with floor-to-ceiling windows and can access a large, lightly covered terrace. A curved wall of unplastered limestone bricks is set back to the east and creates a wind-sheltered yard that captures the first morning sunbeams.


© Tobias König, Michael Romstöck
Lorem Ipsum: Zwischenüberschrift
The kitchen counter and the stairway are solid volumes of limestone blocks that frame the main living space. In the summer months, particularly when the windows are open, the west side of the building seems to meld with the surrounding countryside. The east-facing street side closes itself off to create private spatial situations.


© Tobias König, Michael Romstöck


© Tobias König, Michael Romstöck
Lorem Ipsum: Zwischenüberschrift
The highlight of the house is the attic. This level, whose exterior skin gives the building its name, is clad with polycarbonate on the east side and completely glazed to the west. It is home to a large, light-flooded room that serves as a studio for creative work and lets residents enjoy the view and daylight regardless of changes in the weather.
Lorem Ipsum: Zwischenüberschrift
Simple materials such as wood, a polished screed, limestone blocks and glass ensure that the house is concordant with its environment. Through the different roof coverings, the course of the sun creates a spectacular interplay of light, shade and many, many colors.
Architecture: Sigurd Larsen
Client: Private
Location: Uckermark, Brandenburg (DE)

































