Umgeben von Wäldern und Seen
Glashaus in der Uckermark von Sigurd Larsen
© Tobias König, Michael Romstöck
Lorem Ipsum: Zwischenüberschrift
Die im Nordosten Brandenburgs gelegene Uckermark zeichnet sich als dünn besiedelte Ruhezone, umgeben von Wäldern und Seen aus. Zwei Drittel der Fläche stehen als Nationale Naturlandschaften unter besonderem Schutz, was der Gegend eine einmalige Kulisse beschert. Mancherorts wirkt es so, als ob die Zeit hier stehen geblieben sei.


© Tobias König, Michael Romstöck
Lorem Ipsum: Zwischenüberschrift
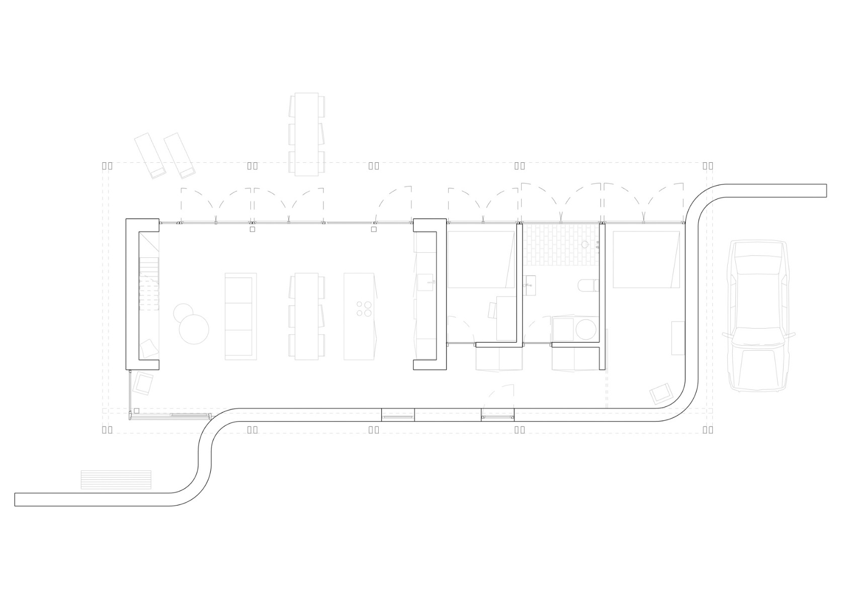
Inmitten dieses Ruhepols befindet sich das Glashaus von Sigurd Larsen. Ein klassisch anmutendes Bauwerk mit einfachem Grundriss, das auf Erdgeschossebene mit Blick nach Westen zwei Schlafzimmer, ein Bad sowie eine großräumige, offene Wohnküche beinhaltet. Als Wochenendhaus konzipiert, eignet es sich ideal als Rückzugsort und bietet Platz für eine kleine Familie mit vielen Gästen.
Lorem Ipsum: Zwischenüberschrift
Alle Zimmer sind mit bodentiefen Fenstern versehen und haben Zugang zu einer großen, leicht überdachten Terrasse. Eine geschwungene Mauer aus unverputzten Kalksandsteinen ist nach Osten hin zurückgesetzt und schafft einen windgeschützten Hof, der die ersten Sonnenstrahlen am Morgen einfängt.


© Tobias König, Michael Romstöck
Lorem Ipsum: Zwischenüberschrift
Die Küchenzeile und der Treppenaufgang sind in massive Volumen aus Kalksandsteinen eingebaut und rahmen den Hauptwohnraum ein. In den Sommermonaten, gerade bei geöffneten Fenstern, scheint das Gebäude zur Westseite hin mit der umliegenden Natur zu verschmelzen. Zur östlich gelegenen Straßenseite verschließt es sich und schafft private Raumsituationen.


© Tobias König, Michael Romstöck


© Tobias König, Michael Romstöck
Lorem Ipsum: Zwischenüberschrift
Das Highlight des Gebäudes befindet sich im Dachstuhl. Das Dachgeschoss, dessen Außenhaut das Gebäude seinen Namen verdankt, ist zur Ostseite hin mit Polycarbonat verkleidet und zur Westseite hin komplett verglast. Es beherbergt einen großen, lichtdurchfluteten Raum, der als Atelier für kreatives Arbeiten dient, oder um die Aussicht und das Tageslicht unabhängig vom wechselnden Wetter zu genießen.
Lorem Ipsum: Zwischenüberschrift
Einfache Materialien wie Holz, polierter Estrich, Kalksandstein und Glas sorgen dafür, dass das Bauwerk mit seiner Umgebung harmoniert. Über den Sonnenlauf hinweg ergibt sich durch die unterschiedlichen Beschichtungen des Daches ein spektakuläres Zusammenspiel aus Licht, Schatten und vielerlei Farben.
Architektur: Sigurd Larsen
Bauherr: Privat
Standort: Uckermark, Brandenburg (DE)

































