A house of worship in a high-rise district
Church near Shanghai by Wutopia Lab
The Fengxian Qixian Jesus Church delimits itself from the road with screens of expanded metal. © CreatAR Images
Qixian Town, which is around 60 km south of Shanghai, is one of those satellite communities of residential towers that have arisen in many densely populated areas of China over the past 20 years. It is unusual that the developer commissioned a Christian house of worship of some size as well.


The new building stands in Qixian Town, which is south of Shanghai. It gleams amid the residential towers. © CreatAR Images
A sacred district in no man’s land
The Fengxian Qixian Jesus Church is the result of eight years of planning and construction. Yu Ting, the founder of Wutopia Lab, describes his approach: “Treating the entire site as a building called a place is my most significant strategy.” This is why he has delimited the complex from its urban milieu with a diaphanous screen of expanded metal.
An unequal duo in grey
Inside the surrounding screen, two unequal, square structures with rounded corners stand opposite each other. The main building, which is 16,7 m tall, comprises the church hall, offices, rooms devoted to administration and reading, sanitary installations and – on the top floor – a chapel. The smaller building is home to a kitchen and dining room. Both buildings are symmetrical, yet diagonally offset to each other.


Diffuse light falls between the ceiling slabs into the large church. The brightest area is around the altar. © CreatAR Images
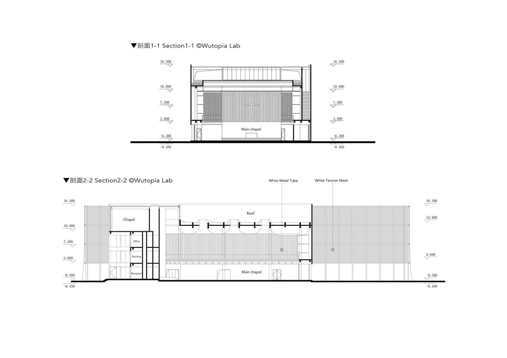
Slab shells and aluminum veils
In the church hall, two mighty concrete joists bear the main load of the roof. Transversely, convex slab shells span the space. Softened, indirect light falls through narrow interstitial slits. A delicate aluminum grid separates the hall from its surrounding raised areas, giving the hall a soft, yet clearly defined contour. On the south-facing long side, glass doors with pivoting panels open the church to the outdoors in fine weather.


The masonry facades on the longer sides of the church feature many openings in the shape of the Greek cross. © CreatAR Images


The main hall of the church, © CreatAR Images
The obscure light of Jiangnan
“The translucent veil is one of the means by which I try to express the obscure light of Jiangnan through architecture”, says Yu Ting. On the longer sides of the church, the diffuse light thus created falls on light-grey masonry walls with cruciform openings. The architects have also taken up the theme of this obscure light in the colour palette for the facades and interior spaces. It is limited to various shades of grey – precisely five, by Yu Ting’s count.
Architecture: Wutopia Lab
Client: Shanghai Fengxian New City Construction and Development Co.
Location: Qixian Town, Fengxian, Shanghai (CN)
Execution planning: Shanghai Zhijing Municipal Construction Planning and Design Co.



























