A wooden framework provides flexibility
Koning Willem I College in 's-Hertogenbosch
© Stijn Poelstra
Lorem Ipsum: Zwischenüberschrift
Modular, recyclable and flexible – the wooden skeleton framework by Nieuwe Architecten in the Dutch city of ’s-Hertogenbosch demonstrates many qualities that are vital to operating a modern postsecondary institution. This structure functions as the entrance building to Koning Willem I College and will give the college complex, previously surrounded by large parking lots, more visibility on the main road.


© Stijn Poelstra
Lorem Ipsum: Zwischenüberschrift
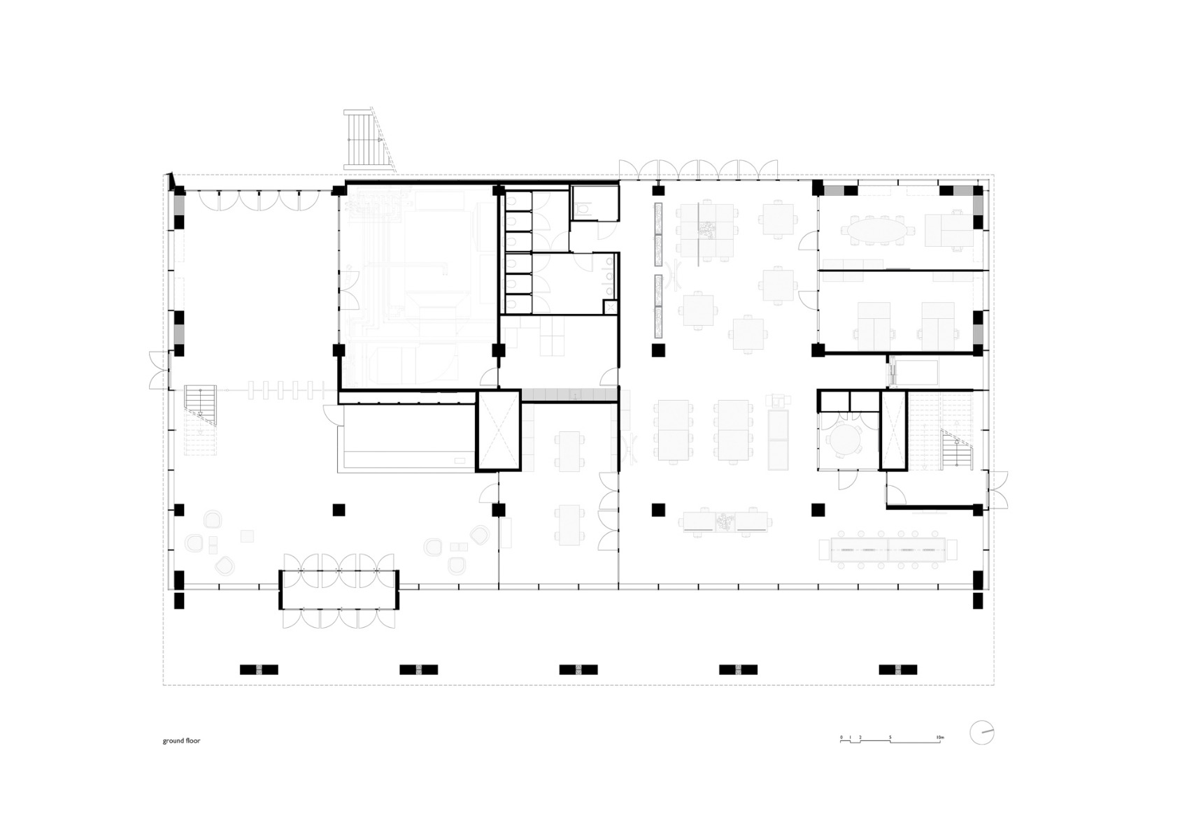
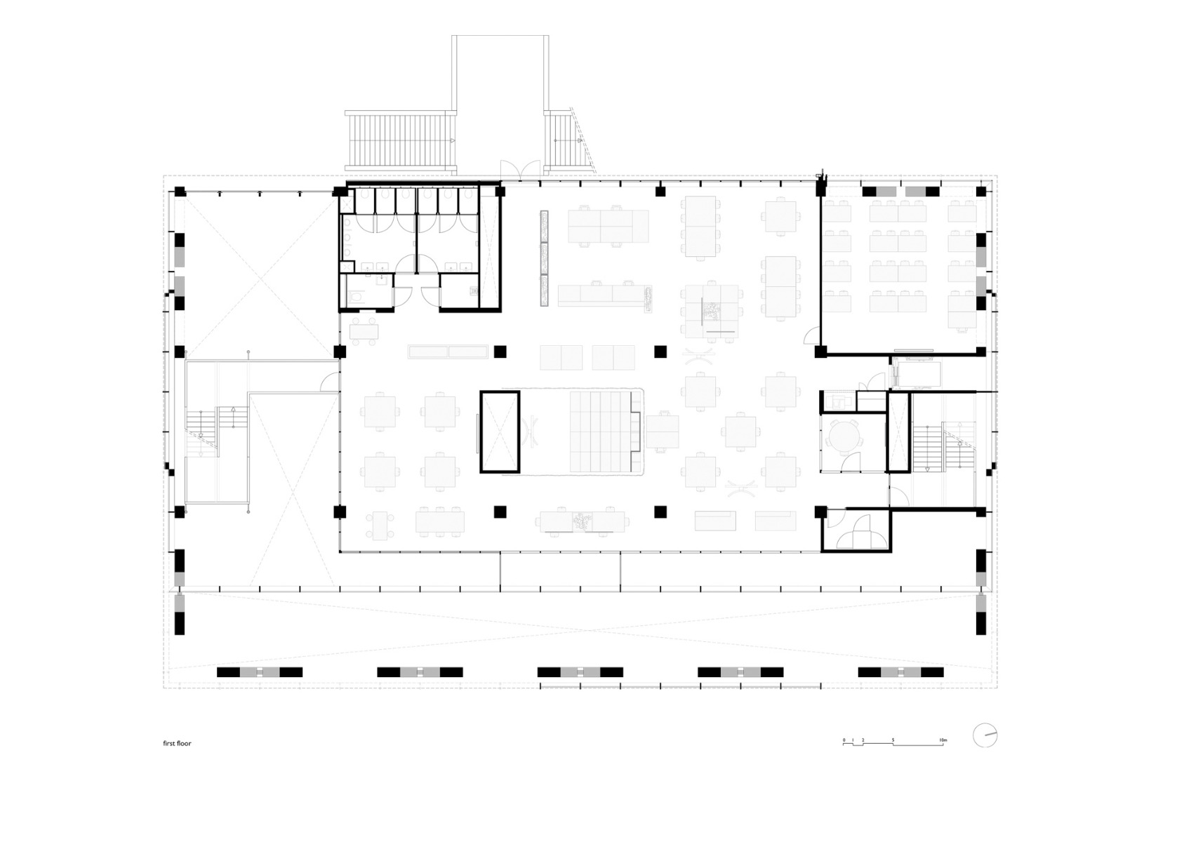
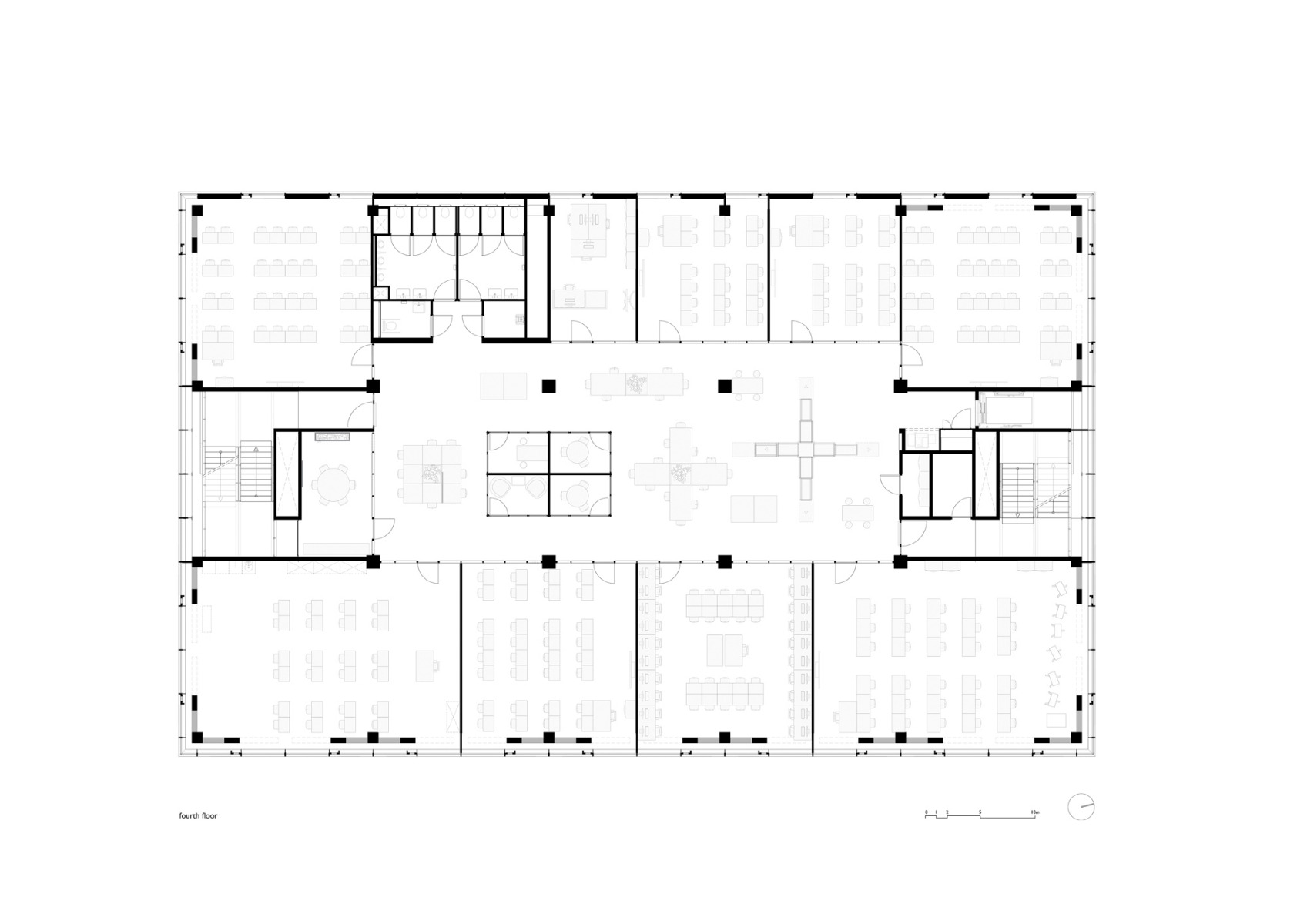
Because Architecture, Construction and Furniture Design are taught in the five-storey building, the architects have staged their new project as a didactic tool. Behind the glass facades, the imposing wooden supporting structure and its reinforcing diagonals are all visible, as are the stairways, which have been painted a gleaming shade of blue. The framework is based on a grid measuring 8 x 8 m with ceiling heights of 4 m.
Lorem Ipsum: Zwischenüberschrift
Inside, the wiring has been left exposed beneath the ceilings, which is why the ceiling joists feature corresponding drill holes. Hollow-core ceiling slabs of reinforced concrete act as thermal-mass storage and provide the necessary soundproofing. The construction and technical installations are conceived to allow the interior spaces to be divided into a 2-metre grid by means of standardized wall elements.


© Stijn Poelstra
Lorem Ipsum: Zwischenüberschrift
The architects’ didactic impetus goes even further: the climate-control and ventilation systems, which would normally be concealed in rooftop sheds, have been placed behind glass in the middle of the ground floor, where they are visible to everyone. Screens display the performance of the solar-power system on the roof in real time. The closed walls have been hung with drawings that visualize their design. QR codes on the building components and technical installations enable students to find information about the materials and technical elements.


© Stijn Poelstra
Lorem Ipsum: Zwischenüberschrift
According to the architects, their new building is a zero-energy structure. The subfloor heating and chilled ceiling sails in the rooms are supplied by an air/water heat pump that draws electricity from the photovoltaic system on the roof. In the future, it will be easy to connect the building to district heating.
Architecture: Nieuwe Architecten
Client: Koning Willem I College
Location: Onderwijsboulevard 3, 's-Hertogenbosch (NL)
Structural engineering: Pieters Bouwtechniek
Building physics, fire prevention: Zri
Building services engineering: Klictet Oisterwijk
Contractor: Heerkens van Bavel


































