Industrial tradition continued
Fine Arts Academy in Helsinki by JKMM
© Mika Huisman
For the Helsinki University of the Arts, JKMM Architects has created a multi-faceted conglomerate of historical and new elements in the same sober-industrial style. A spectacular atrium connects its various levels together.


© Mika Huisman
The University of the Arts (Uniarts) in Helsinki came about in 2013 through the merger of three previously independent academies for music, fine arts and theatre. With the exception of the music academy, the faculties reside in two neighbouring complexes in Sörnäinen, a former industrial district to the northeast of central Helsinki; the theatre academy for its part has its new home in a former soap factory.
JKMM has now largely remodelled the adjacent area for the disciplines of dance, fine arts and light and sound design.


© Tuomas Uusheimo
The building complex is named Mylly in reference to the industrial mill that used to stand the site. Its heritage-listed Modernist silo has been integrated by the architects into the building complex and now acts as a link to the neighbouring dance academy. And a former electricity works still standing in part at the opposite side of the construction site has been repurposed into studios, offices and project rooms.


© Tuomas Uusheimo


© Tuomas Uusheimo
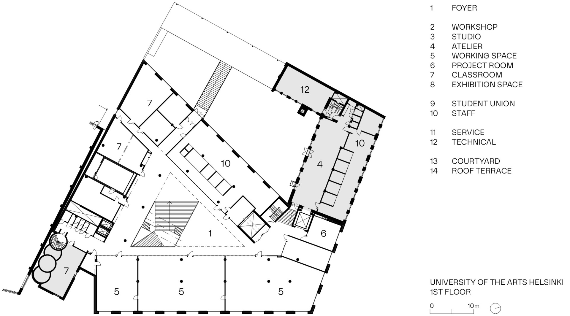
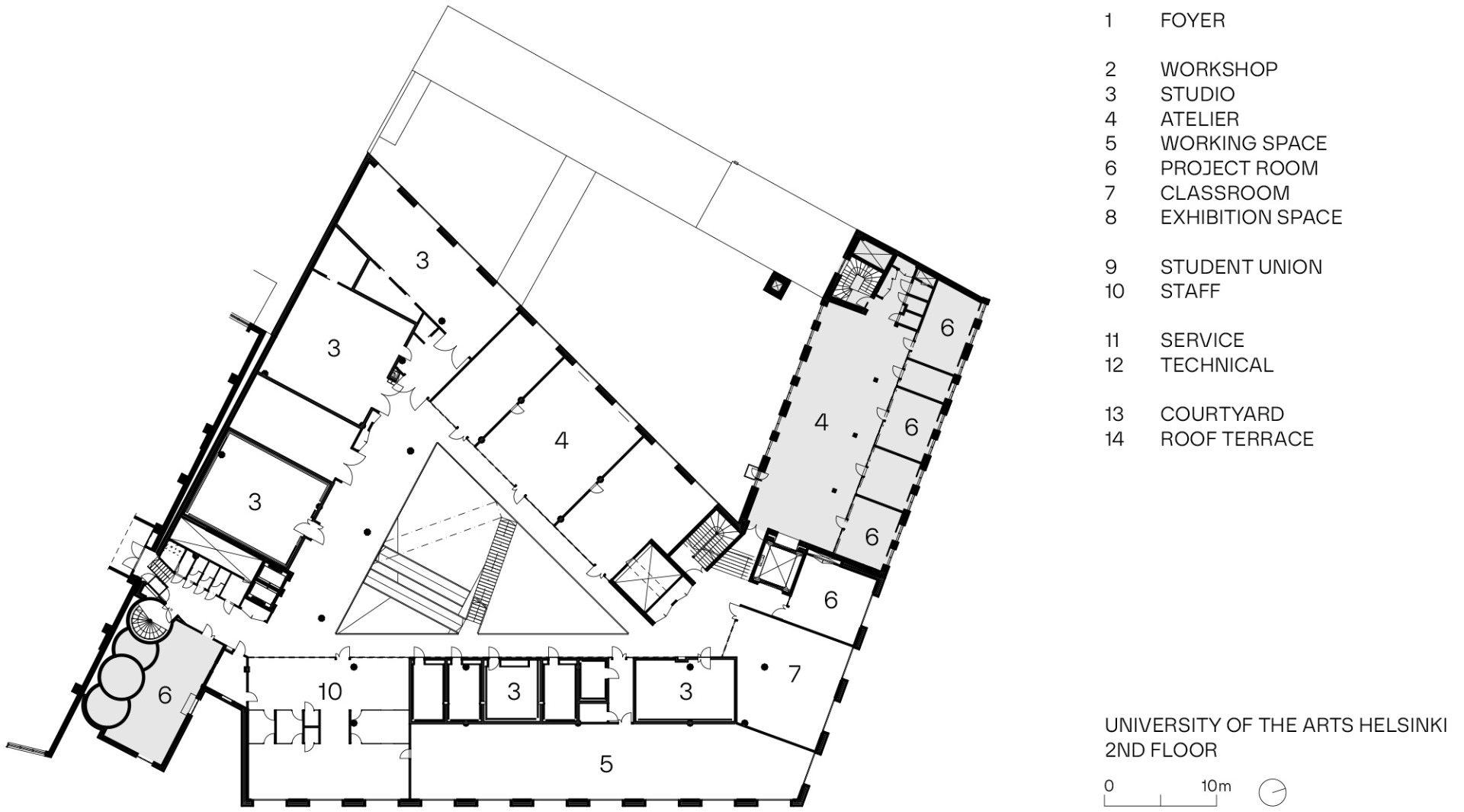
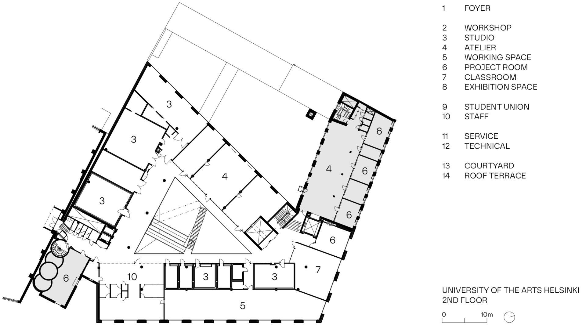
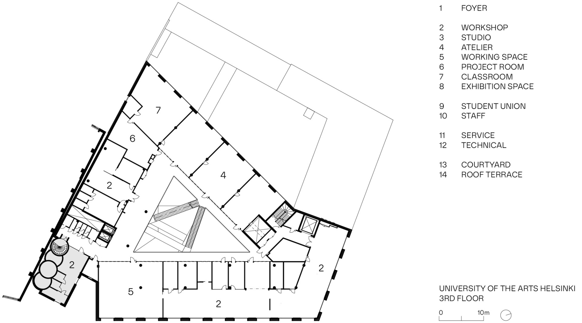
The new build part of the academy complex contains a publicly accessible gallery space at ground level and an expansive viewing terrace on the roof. A triangular atrium with spectacularly zig-zagging steel staircases connects the five storeys and the three wings of the complex.
In choosing the supporting structure and surfaces, the architects attached importance to robustness and integration into the post-industrial context of the surroundings. Load-bearing punctuated facades and a concrete skeleton structure in the interior are to facilitate new uses later on. A great deal of exposed concrete, wood and black steel is encountered in the rooms. The architects selected flat facing brick for the facades, and the large punched windows are flush-mounted in their deep reveals.
Architecture: JKMM Architects
Client: Veritas
User: Kunsthochschule Helsinki
Location: Kaikukatu 5, 00530 Helsinki (FI)
Structural engineering: Vahanen
Building services engineering: Sitowise
Contractor: Lujatalo
Acoustics: Akukon



































