German duo at the top
Winners of the Mies van der Rohe Awards 2024
Winner of the Mies van der Rohe Awards 2024: Study Pavilion on the campus of the Technical University of Braunschweig by Gustav Düsing and Max Hacke, © Leonhard Clemens
The two winners of the Mies van der Rohe Awards 2024 were announced today at an event at the CIVA architecture center in Brussels. An international jury selected one winner each in the two categories of architecture and emerging architecture from an initial group of 362 nominated works.


Gustav Düsing and Max Hacke are the youngest winners of the EUmies Awards Architecture Prize. © Leonhard Clemens
Winner of the Architecture Prize
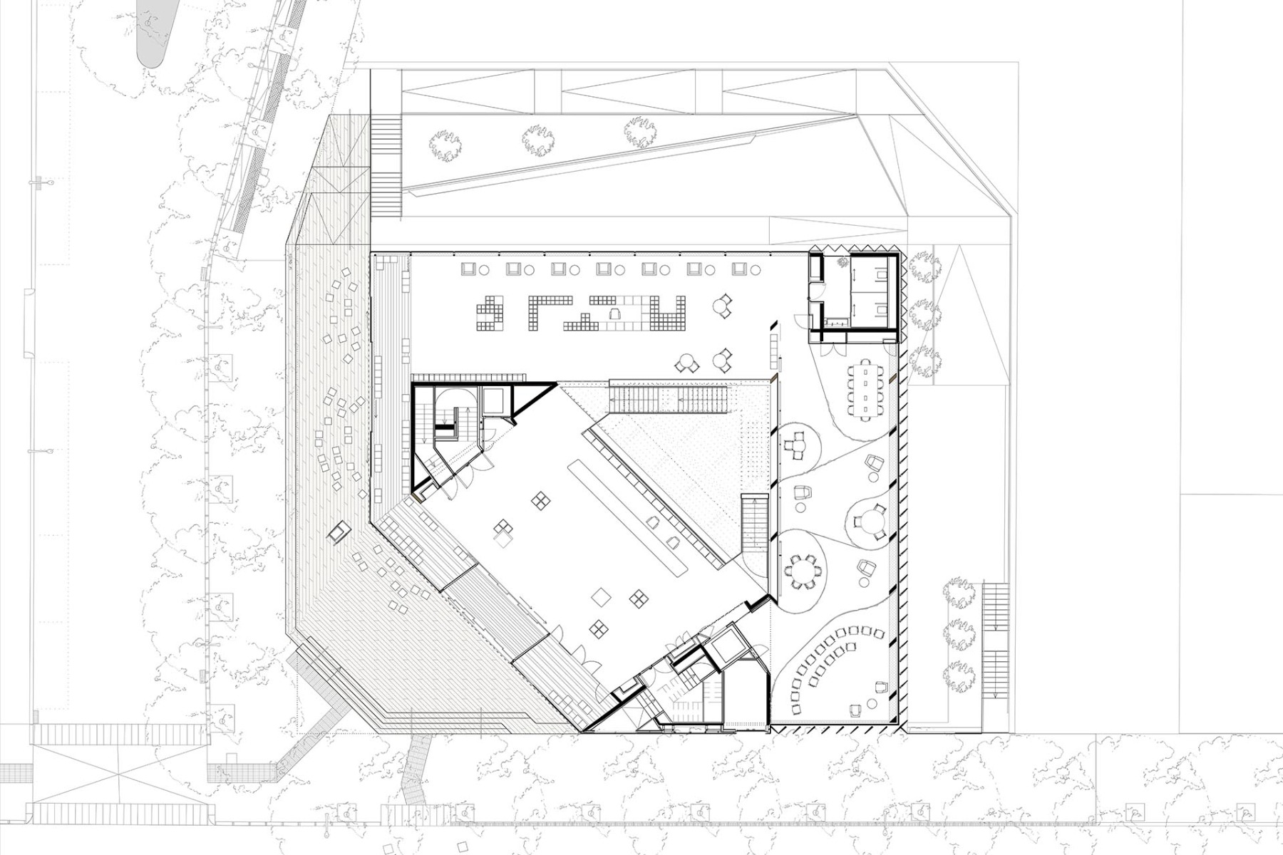
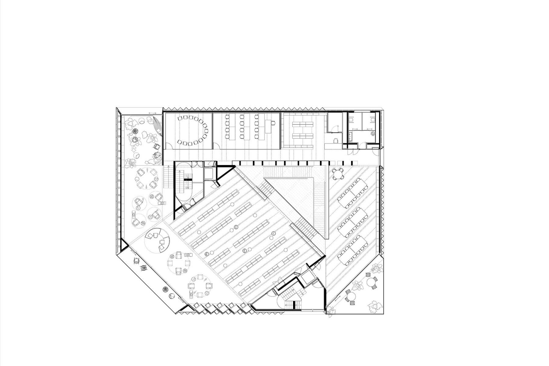
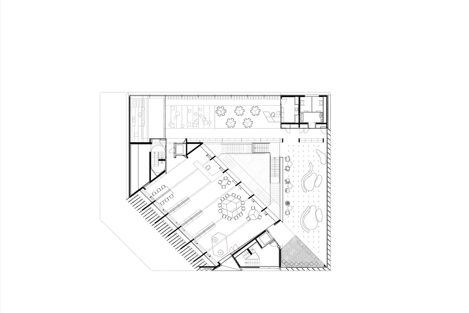
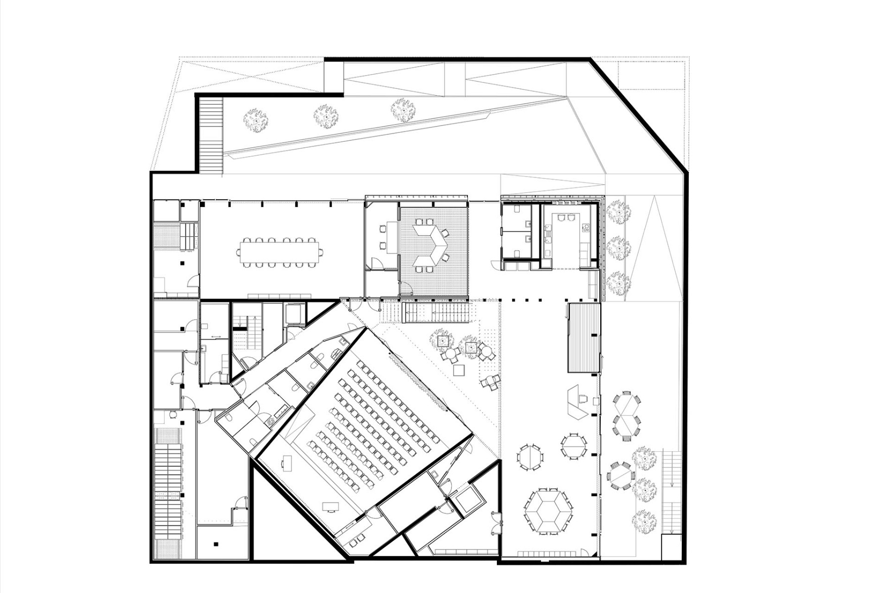
The 2024 Winner of the Architecture Prize is the Study Pavilion on the campus of the Technical University of Braunschweig in Germany, by architects Gustav Düsing and Max Hacke. What had been originally intended as a drawing studio building and social meeting point for the architecture faculty is now available to all students as place for study and communication. The delicate new building is characterized by a maximum of openness in both vertical and horizontal directions as well as simplicity, modularity and demountability.
The jury's statement
The jury awarded the building for its ability to challenge the constraints and imagery of sustainability, creating awelcoming and playful environment for study, collaboration and community gathering through anuncompromising and carefully detailed structure. It has taken a clear architectural idea, scrutinized it and pushed it to the limit. The Study Pavilion is more than a building, it could be understood as a versatile system that combines merging technological advances with a flexible and reusable principle.Gustav Düsing and Max Hacke are the youngest winners of the EUmies Awards Architecture Prize.


Axonometric of the structure. The building has an unusual number of staircases which not only provide decentralized access but also brace the steel frame. Graphic © Gustav Düsing und Max Hacke
Winner of the Emerging Architecture Prize
The 2024 Winner of the Emerging Architecture Prize is the Gabriel García Márquez Library in Barcelona by SUMA Arquitectura founded by Elena Orte and Guillermo Sevillano in Madrid. The library is considered a new landmark in Barcelona and was named the best public library in the world by the International Federation of Library Associations and Institutions (IFLA) shortly after its opening in May 2022. The building's wooden structure forms a rich sequence of monumental and domestic spaces that provide the neighborhood's community with a comfortable atmosphere for learning, teamwork and community engagement. “With meticulous attention to detail, the architects have thoroughly examined and pushed the library programme to its fullest potential”, said the jury statement.


The 2024 Winner of the Emerging Architecture Prize is the Gabriel García Márquez Library in Barcelona by SUMA Arquitectura, © Jesús Granada


The building's wooden structure forms a rich sequence of monumental and domestic spaces. © Jesús Granada


Interior of the Gabriel García Márquez Library, © Jesús Granada
Award ceremony
The award ceremony will take place on May 14 at the Mies van der Rohe Pavilion in Barcelona as part of the EUmies Awards Days. The authors of the winning and finalist works will present their projects in lectures. This will be followed by discussions with architects, clients, political decision-makers and jury members. The 362 works of the participants of the EUmies Awards 2024 will be shown in an accompanying exhibition. After its presentation in Barcelona, the exhibition will go on a European tour. The first two stops include the Casa de la Arquitectura in Madrid and the Architekturzentrum Wien. The EUmies Awards Day also marks the start of the Barcelona Architecture Weeks.
Event: EUmies Awards Day with prize-giving ceremony
Award ceremony and exhibition: 14 May 2024
Exhibition venue: Mies van der Rohe-Pavillon, Av. de Francesc Ferrer i Guàrdia, 7, Sants-Montjuïc, 08038 Barcelona (ES)
Jury of the EUmies Awards 2024: Martin Braathen (Oslo), Pippo Ciorra (Rome), Frédéric Druot (Paris/Bordeaux), Tinatin Gurgenidze (Tiflis/Berlin), Adriana Krnáčová, (Prague), Sala Makumbundu (Luxembourg) und Hrvoje Njiric (Zagreb)
Further information: eumiesawards.com















































