Deutsches Duo an der Spitze
Sieger des Mies van der Rohe Awards 2024
Sieger des Mies van der Rohe Awards 2024: Studierendenhaus auf dem Campus der Technischen Universität Braunschweig von Gustav Düsing und Max Hacke, © Leonhard Clemens
Heute sind die beiden Sieger des Mies van der Rohe Awards 2024 bei einer Veranstaltung im Architekturzentrum CIVA in Brüssel bekannt gegeben worden. Eine international besetzte Jury wählte aus 362 Werken je einen Sieger in den beiden Kategorien Architektur und Nachwuchs aus.


Gustav Düsing und Max Hacke sind die jüngsten Gewinner der EUmies Awards. © Leonhard Clemens
Gewinner der Kategorie Architektur
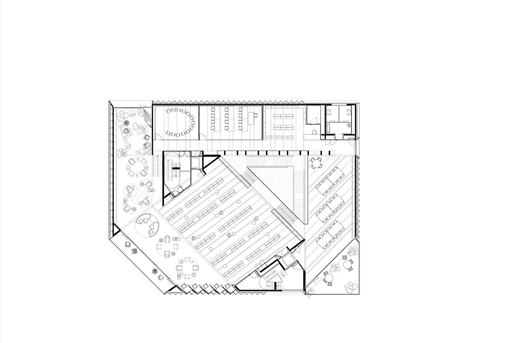
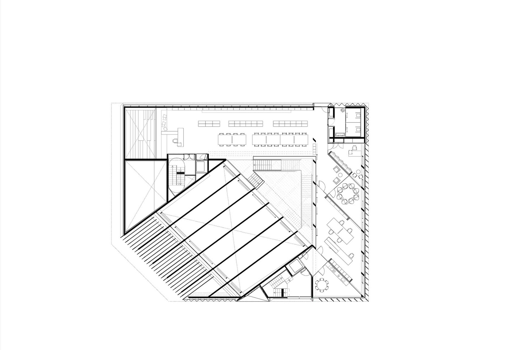
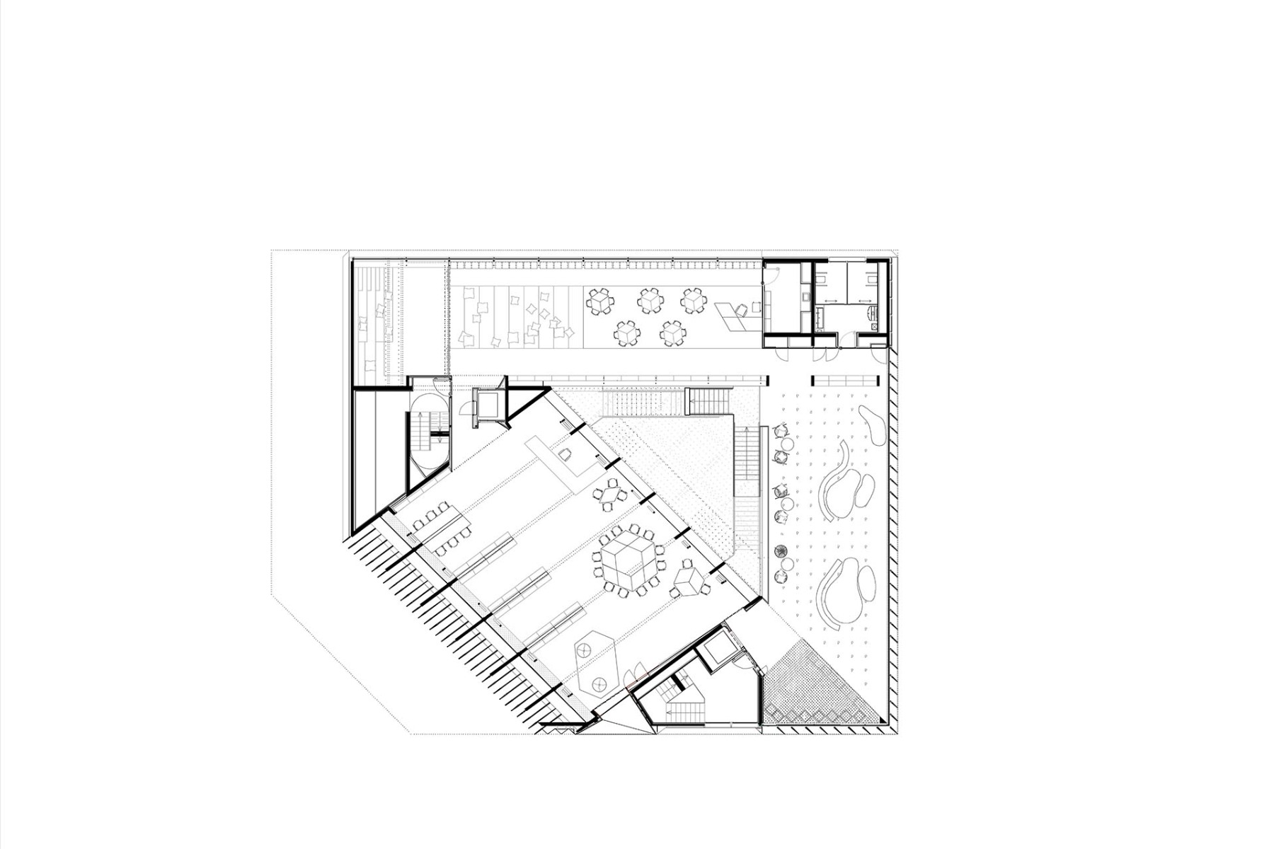
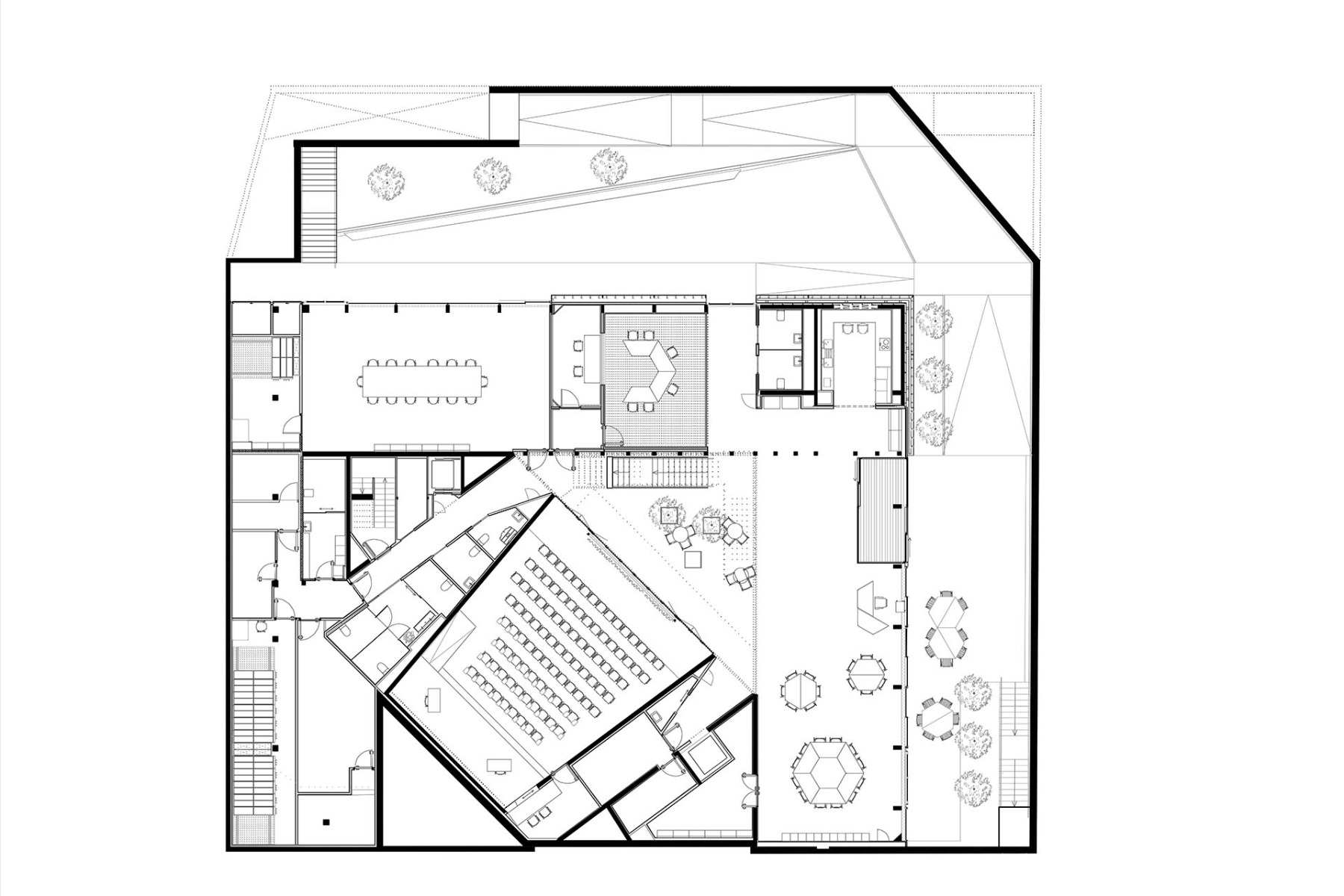
Der Gewinner des Preises für Architektur ist das Studierendenhaus auf dem Campus der Technischen Universität Braunschweig der beiden deutschen Architekten Gustav Düsing und Max Hacke. Was ursprünglich als Zeichensaalgebäude und sozialer Treffpunkt für die Architekturfakultät gedacht war, steht nun allen Studierenden als Lern- und Kommunikationsort zur Verfügung. Der filigrane Neubau zeichnet sich durch ein Maximum an Offenheit in horizontaler und vertikaler Richtung sowie durch Einfachheit, Modularität und Rückbaubarkeit aus.
Fazit der Jury
Die Jury prämierte das Gebäude für seine Fähigkeit, Grenzen und Vorurteile in Bezug auf Nachhaltigkeit zu überwinden und durch eine sorgfältig ausgearbeitete und unnachgiebige Struktur eine einladende und spielerische Umgebung für Studium, Zusammenarbeit und Zusammenkunft zu schaffen. Es wurde eine klare architektonische Idee verfolgt, überarbeitet und an ihre Grenzen gebracht. Das Studierendenhaus sei mehr als ein Gebäude, eher ein vielseitiges System, das technologische Fortschritte mit einem flexiblen und wiederverwendbaren Prinzip verbindet. Gustav Düsing und Max Hacke sind die jüngsten Gewinner der EUmies Awards und haben im Januar bereits den DAM Preis für das Studierendenhaus erhalten.


Axonometrie des Tragwerks. Die vielen Treppen im Studierendenhaus dienen nicht nur der dezentralen Erschließung, sondern steifen die Stahlskelettkonstruktion aus. Grafik © Gustav Düsing und Max Hacke
Gewinner der Kategorie Nachwuchs
In der Kategorie Nachwuchs prämierte die Jury die Gabriel García Márquez Bibliothek in Barcelona von SUMA Arquitectura, gegründet von Elena Orte und Guillermo Sevillano in Madrid. Die Bibliothek gilt als neues Wahrzeichen in Barcelona und wurde kurz nach ihrer Eröffnung im Mai 2022 vom Internationalen Verband der Bibliotheksverbände und -institutionen (IFLA) zur besten öffentlichen Bibliothek der Welt gekürt. Die Holzstruktur des Gebäudes bildet eine reichhaltige Abfolge von monumentalen und häuslichen Räumen, die der Gemeinschaft des Viertels ein komfortables Umfeld für Lernen, Teamarbeit und gemeinschaftliches Engagement bieten. „Mit viel Liebe zum Detail haben die Architekten das Programm der Bibliothek genauestens unter die Lupe genommen und zur vollen Entfaltung gebracht“, so das Statement der Jury.


Sieger des Mies van der Rohe Awards 2024 in der Kategorie Nachwuchs: Gabriel García Márquez Bibliothek in Barcelona von SUMA Arquitectura, © Jesús Granada


Die Holzstruktur der Gabriel García Márquez Bibliothek bildet eine reichhaltige Abfolge von monumentalen und häuslichen Räumen. © Jesús Granada


Innenraum der Gabriel García Márquez Bibliothek, © Jesús Granada
Preisverleihung
Die Preisverleihung wird am 14. Mai im Mies van der Rohe-Pavillon in Barcelona im Rahmen der EUmies Awards Days stattfinden. Die Autoren der Sieger- und Finalistenwerke präsentieren ihre Werke in Vorträgen. Anschließend wird es Diskussionen mit Architektinnen, Bauherren, politischen Entscheidungsträgerinnen und Jurymitgliedern geben. In einer begleitenden Ausstellung werden die 362 Werke der Teilnehmer:innen des EUmies Awards 2024 gezeigt. Nach ihrer Präsentation in Barcelona wird die Ausstellung auf Europatournee gehen. Zu den ersten beiden Stationen zählen das Casa de la Arquitectura in Madrid sowie das Architekturzentrum Wien. Der EUmies Awards Day markiert gleichzeitig den Auftakt zu den Barcelona Architecture Weeks.
Veranstaltung: EUmies Awards Day mit Zeremonie zur Preisverleihung
Preisverleihung und Ausstellung: 14. Mai 2024
Ausstellungsort: Mies van der Rohe-Pavillon, Av. de Francesc Ferrer i Guàrdia, 7, Sants-Montjuïc, 08038 Barcelona (ES)
Jury der EUmies Awards 2024: Martin Braathen (Oslo), Pippo Ciorra (Rom), Frédéric Druot (Paris/Bordeaux), Tinatin Gurgenidze (Tiflis/Berlin), Adriana Krnáčová, (Prag), Sala Makumbundu (Luxemburg) und Hrvoje Njiric (Zagreb)
Weitere Informationen: eumiesawards.com

















































