Restoration and extension
Wool Hall in Somerset by Tuckey Design Studio
The existing extension was re-clad with red-glazed wood. © James Brittain
Jonathan Tuckey's London-based architecture firm has carefully restored and repurposed Wool Hall, a listed 16th-century building in Somerset. The hall was once a centre for craftsmanship and music production. In the 1980s and 1990s, artists such as The Smiths, Annie Lennox and Van Morrison recorded albums here. Today, the building serves as a modern family home with an integrated recording studio, thus preserving its creative character.


The small windows in the open kitchen were left untouched to preserve the old charm. © James Brittain
Natural indoor climate
The ensemble consists of historic quarry stone masonry, an extension from the 1980s and new, contemporary additions. In order to preserve the historic fabric while optimising energy efficiency, the architectural team opted for natural, breathable insulation materials such as lime, cork and Diathonite spray. Underfloor heating, a modern boiler and new double glazing ensure a pleasant indoor climate. Through targeted demolition and the creation of new courtyards, Tuckey Design Studio has enabled effective cross ventilation that prevents overheating in summer.


The arched door in the listed facade offers a glimpse into the living area. © James Brittain


The three-storey atrium connects the upper bedrooms with each other. © James Brittain
Material with concept
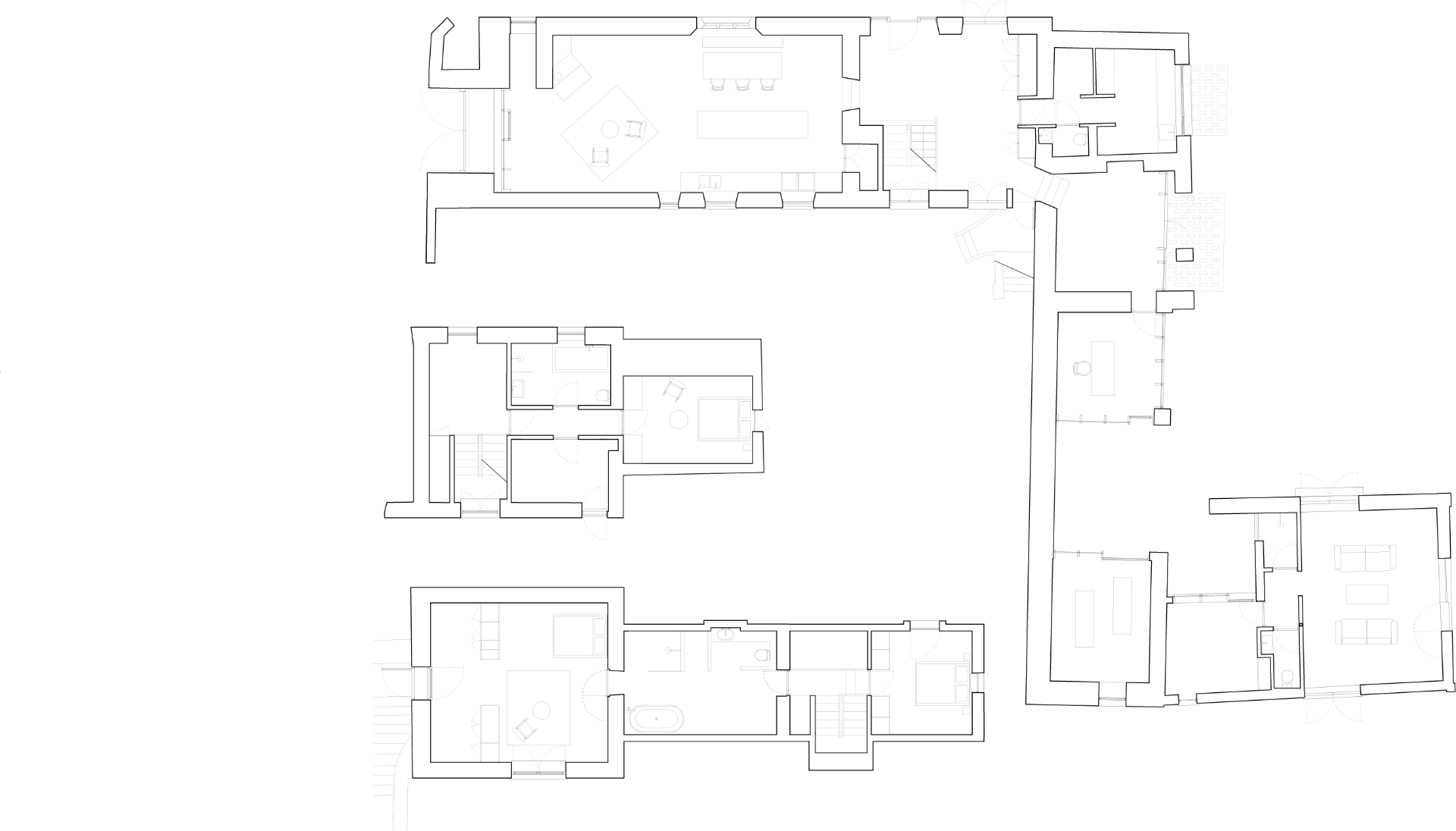
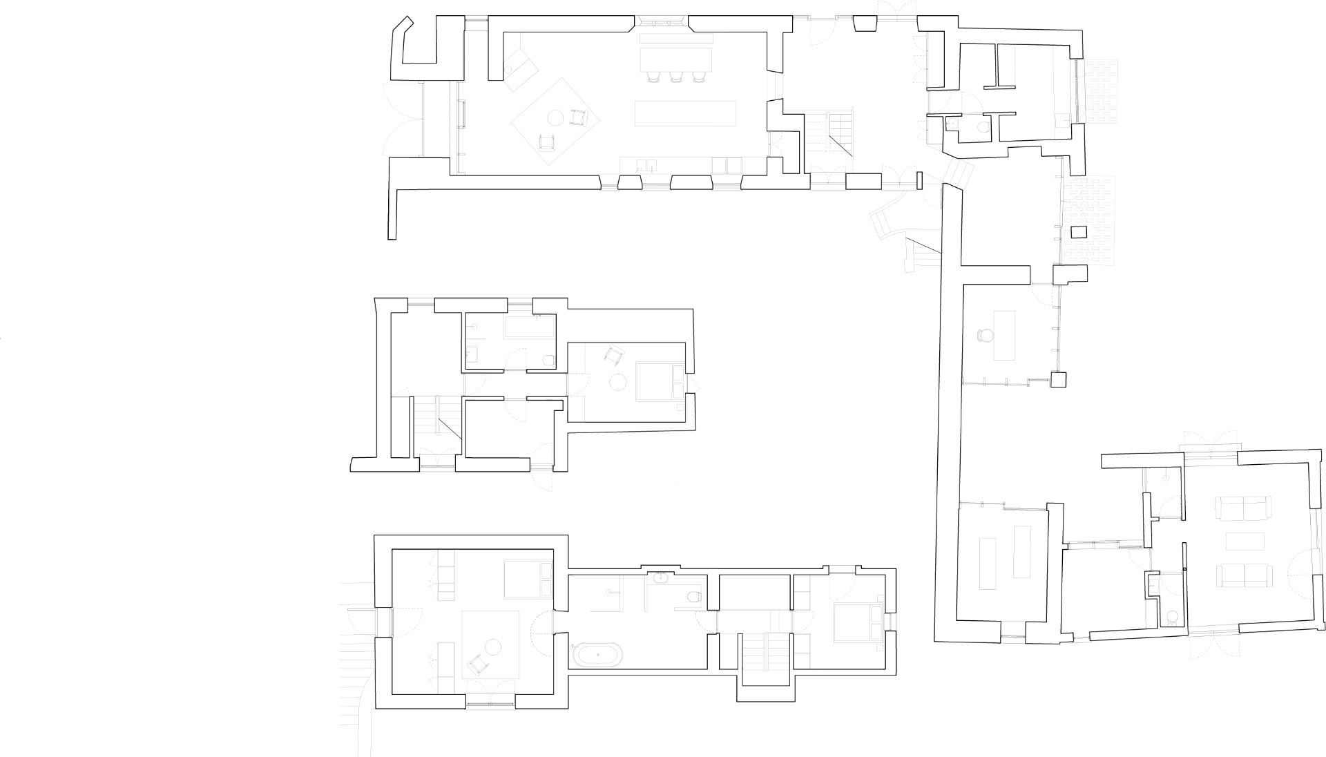
A three-storey atrium forms the central connecting element between the living and working areas. Green-painted steel beams, wooden fixtures and terrazzo floors refer to the hall's industrial past while also adding modern accents. The recessed extensions are clad in red-stained wood and stand out clearly from the historic natural stone masonry. The choice of materials makes the different construction phases visible and emphasises the transition between historical substance and contemporary additions. The floor plan follows a Z-shaped structure that connects the individual parts of the building and creates specific sightlines between the interior and exterior areas.
Building on the Built
Jonathan Tuckey will speak at the DETAIL Climate Forum in Düsseldorf on 2. October 2025. Other speakers on the podium include Alexander Franz (Herzog & de Meuron), Annelen Schmidt-Vollenbroich & Ana Vollenbroich (Nidus) and Almut Grüntuch-Ernst (Grüntuch Ernst Architekten).
Register now: Climate Forum Düsseldorf 2025
Architecture: Tuckey Design Studio
Location: Somerset (GB)
Structural engineering: Momentum Engineering
Contractor: Momentum Engineering
Quantity surveyor: MEA


















