Five support-free storeys
Wooden Office Building by Kirk in Brisbane
© Scott Burrows Photography
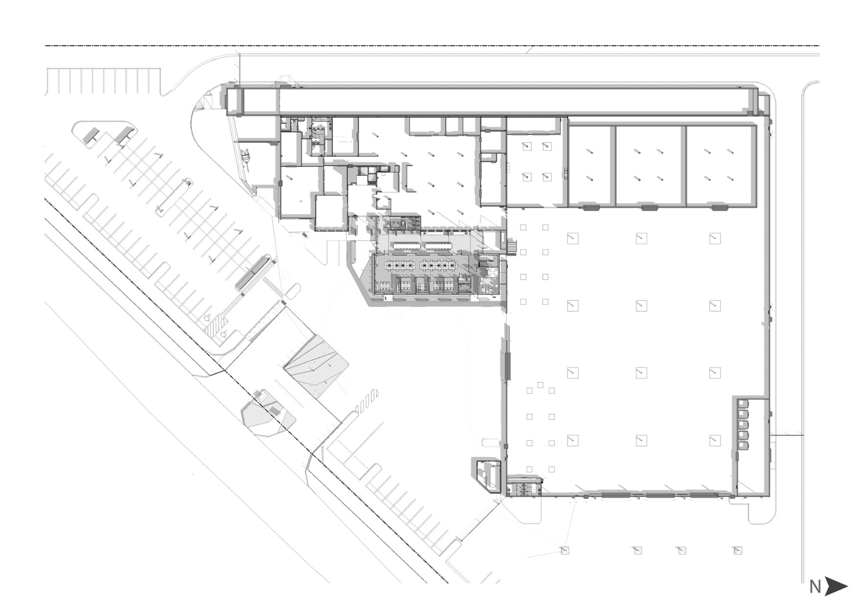
On the remnants of a hard-to-develop lot at Brisbane Airport, one of Australia’s first office buildings of cross-laminated timber has been erected. It is used by the 90 employees of a firearms manufacturer.


© Scott Burrows Photography
It took just 26 days – six fewer than foreseen – to erect the wooden construction. Including the interior work, the project was completed in only seven months. Dense building on the company’s lot, with a correspondingly small shunting area, suggested a prefabricated wooden building.
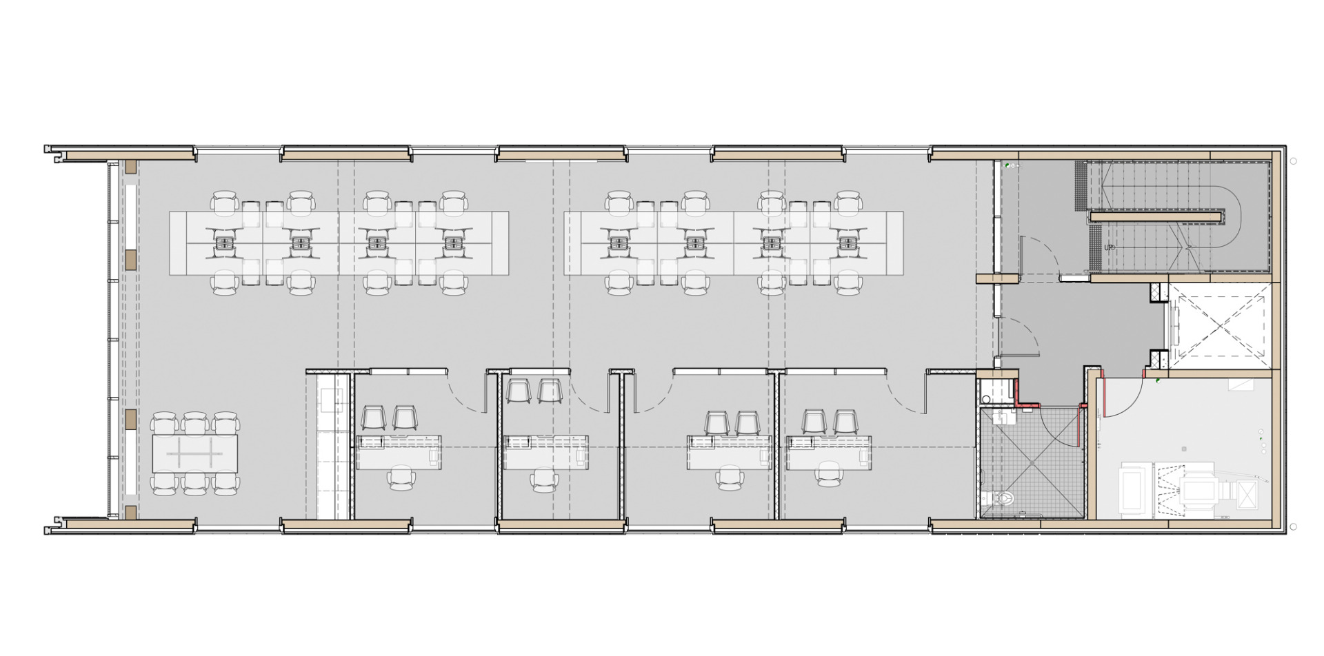
The narrow building site eventually led the architects to an unconventional solution: both longitudinal walls consist of load-bearing panels of cross-laminated timber. Joists of glulam timber have been set atop these, to be topped in turn with ceiling slabs of CLT. Striking K-shaped diagonal struts behind the glazed building front reinforce the building.


© Scott Burrows Photography
Inside, the wooden supporting structure has been left exposed, which makes a clear contribution to the office ambience. Dark-varnished plywood built-ins and a dark-coloured, solid-wood partition wall in the stairwell round out the material palette of visible wood.


© Scott Burrows Photography


© Scott Burrows Photography
The exterior of the building – not least because of the exhaust from the nearby airfield – is covered with a robust shell of zinc sheeting. As the complete workshop planning of the wooden structure had been completed before building began, it was largely possible to avoid downtime on the building site. According to the architects’ estimates, these idle periods can easily amount to 12 weeks in comparable projects.
Architecture: KIRK
Client: NIOA
Location: Flughafen Brisbane (AU)
Structural engineering: Aurecon
Fire prevention: Sotera














