Bauen mit Lehm
Sozialer Wohnungsbau auf Ibiza
Luftgetrocknete Lehmziegel aus der Region prägen die Innenräume. © José Hevia
Die Baleareninsel im Mittelmeer ist eher für Urlaub als sozialen Wohnungsbau bekannt. Milde Winter, heiße Sommer und eine hohe Luftfeuchtigkeit ziehen jedoch nicht nur Touristen an, sondern verlangen auch neue Lösungen, wenn klimagerecht und energiesparend gebaut werden soll, also ohne Heiz- und Kühltechnik.


Vor- und Rücksprünge brechen das Gebäudevolumen, © José Hevia
Ziegel aus Lehm
Peris + Toral gelingt dies mit 20 cm dicken Wänden aus Lehmziegeln, die gleich mehrere Funktionen übernehmen: sie speichern Feuchtigkeit, haben mit einer Dichte von 2000 kg/m³ eine hohe Speichermasse und dazu noch gute Schallschutzwerte. Und das Beste daran: Bei ihrer Herstellung wird kaum CO2 ausgestoßen, denn der Lehm stammt aus der Region und die Ziegel trocknen an der Luft.
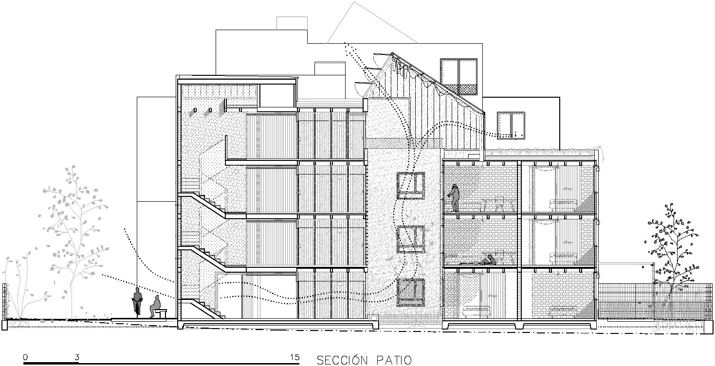
Kühlende Meeresbrise
Von außen wirkt der Bau nicht wie eine Anlage mit 43 Wohnungen. Abstufungen, Terrassierungen, Vor- und Rücksprünge lassen sein Volumen kleiner wirken und nehmen Bezug zur umliegenden Bebauung. Außerdem regulieren Marta Peris und José Toral damit auch den Wärmeeintrag durch die Sonne und sogar die Geschwindigkeit der Außenluft soll durch die vielen Ecken und Kanten zulegen. Kühlung schafft zudem die Ausrichtung zum Meer von dem tags wie nachts der Wind kommt und um das Gebäude streicht. Weil alle Wohnungen um Innenhöfe gruppiert sind können sie quergelüftet werden.


Im Sommer stehen die Oberlichter offen, im Winter bleiben sie zu. © José Hevia
Um den Energiebedarf sowohl im Winter als auch im Sommer zu senken, sind die Innenhöfe überdacht. Im Sommer stehen ihre Dächer offen und sie fungieren als Solarkamin. Im Winter schließen sie sich und verwandeln die Lichthöfe in Atrien, in denen sich die Wärme fängt.


Um die Küche gruppieren sich die Räume, Flure gibt es nicht. © José Hevia


Luftgetrocknete Lehmziegel, Holz und Beton charakterisieren die Innenräume. © José Hevia
Modulare Grundrisse
Die Grundrisse sind in Module von 4 m x 3 m aufgeteilt, denen keine festen Nutzungen zugeschrieben sind. Jede Wohnung besteht aus vier bis sechs Modulen und entspricht damit des Sozialwohnungsstandards von Ein-, Zwei- und Drei-Zimmer. Zentraler Raum und Verteilerzone ist die Küche. Um sie gruppieren sich alle anderen Räume, Flure gibt es nicht.


Öffnungen in der Fassade bringen die kühle Meeresluft ins Innere. © José Hevia
Verzicht auf teure Gebäudetechnik
Die fließenden Räume, alle mit Bezug ins Freie, sowie die Materialen Lärchenholz, Lehmziegel und Beton lassen das Gebäude edel wirken. Dass die Baukosten dank des Verzichts auf teure Gebäudetechnik bei nur 1111 €/m² liegen ist kaum zu glauben. Wegen gestiegener Baupreise würden sie heute wohl auch um Einiges höher liegen.
Mehr dazu in Detail 1-2.2024 und in unserer Datenbank Detail Inspiration.
Architektur: Peris + Toral
Bauherr: Institut Balear de l’Habitatge (IBAVI)
Standort: C/ Maria Teresa de Leon 8-14, 07800 Ibiza (ES)
Umweltberatung: Societat Orgànica
Akustik: Àurea Acústica














