19.09.2018 Duy Mac

Wassertanks als Kunstgalerien: Goldsmiths Centre for Contemporary Art von Assemble

Foto: Goldsmiths CCA. Image courtesy of Assemble.

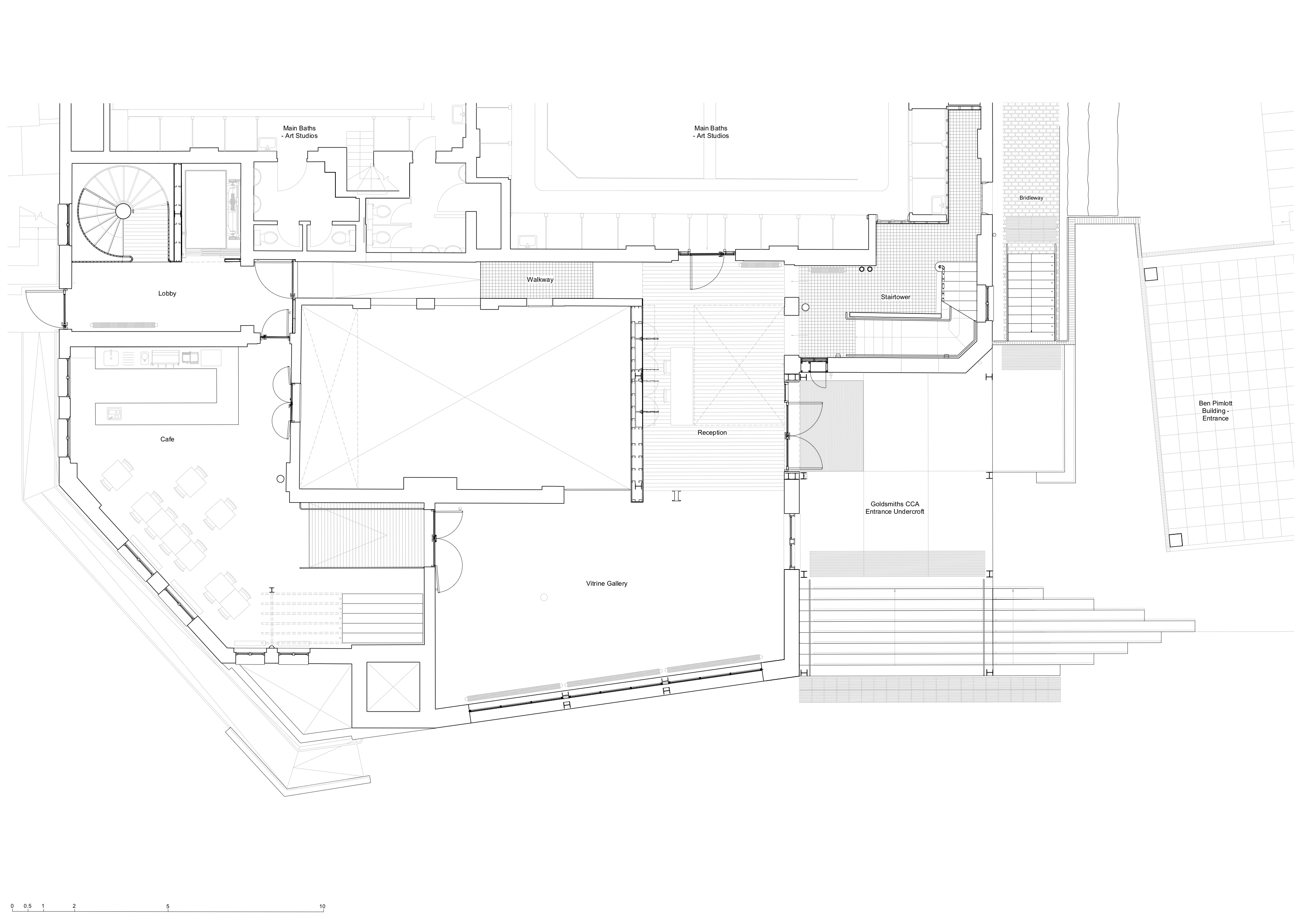
Das Architekturkollektiv Assemble hat mit dem Goldsmiths Centre for Contemporary Art im Südenosten von London sein erstes Gebäude eröffnet. Dabei wurde das ehemalige jakobinische Laurie Grove Baths von Thomas Dinwiddy in Lewisham in ein Hub für zeitgenössische Kunst umgewandelt. Die Universität erwarb das Bad bereits im Jahre 1999, welches bisher vor allem für Lehrveranstaltungen und Atelierarbeiten der Studierenden genutzt wurde. Ziel dieses Projekts war es, mit den Eigenheiten der bereits existierenden Räume zu arbeiten. Beim Begehen des CCA fällt daher das Wechselspiel zwischen moderner Architektursprache und historischem Baubestand auf: Die aus Gusseisen hergestellten Wassertanks, in ihrer ursprünglichen Form beibehalten, werden nun als Kunstgalerien genutzt. Zwei neue, von oben beleuchtete »White Cube« Galerien wurden hingegen neu hinzugefügt, sodass das CCA insgesamt sieben Galerien umfasst. Ein über zwei Stockwerke gehender »Project Space« ist das Herzstück des neuen Gebäudes und soll als Haupthalle für großräumige Installationen und Performances fungieren. Die türkisfarbene Betonfassade rekurriert auf die Keramikfliesen der viktorianischen Schwimmhallen. Assemble, Gewinner des Turner Prize 2015, wollen mit dem Goldsmiths CCA eine kulturell signifikante Ressource und einen aktiven Treffpunkt für Studierende, Künstler und Kunstinteressierte schaffen. Indem die historische Bausubstanz mit handgefertigten Elementen aus Beton und Keramik ergänzt wurde, soll so gleichzeitig auch ein Teil der Stadt- und Sozialgeschichte Südlondons neu zugänglich gemacht werden.

Foto: Goldsmiths CCA. Image courtesy of Assemble.

Foto: Goldsmiths CCA. Image courtesy of Assemble.

Foto: Goldsmiths CCA. Image courtesy of Assemble.

Foto: Goldsmiths CCA. Image courtesy of Assemble.

Foto: Goldsmiths CCA. Image courtesy of Assemble.

Foto: Goldsmiths CCA. Image courtesy of Assemble.

Foto: Goldsmiths CCA. Image courtesy of Assemble.

Foto: Goldsmiths CCA. Image courtesy of Assemble.

Foto: Goldsmiths CCA. Image courtesy of Assemble.

Foto: Goldsmiths CCA. Image courtesy of Assemble.

Grafik: Copyright Assemble.

Foto: Goldsmiths CCA. Image courtesy of Assemble.

Grafik: Copyright Assemble.

Foto: Goldsmiths CCA. Image courtesy of Assemble.

Foto: Goldsmiths CCA. Image courtesy of Assemble.

Grundriss: Copyright Assemble.

Grafik: Copyright Assemble.

Foto: Goldsmiths CCA. Image courtesy of Assemble.

Grundriss: Copyright Assemble.

Grundriss: Copyright Assemble.

Foto: Goldsmiths CCA. Image courtesy of Assemble.

Weitere Informationen:  Design Team  Architecture: Assemble
Structural Engineers: Alan Baxter
Mechanical and Electrical Engineers: Max Fordham Graphic Designers: Kellenberger White
Project Management: Goldsmiths Estates
Quantity Surveyor: Artelia
Contract Administration: Artelia
Building Control: MLM
Main Contractor: Bryen Langley
M+E Contractor: Elmec
Fire Strategy: LWF 
https://detail-cdn.s3.eu-central-1.amazonaws.com/media/catalog/product/1/3/1303250400_749_973_640.jpg?width=437&height=582&store=de_de&image-type=image https://detail-cdn.s3.eu-central-1.amazonaws.com/media/catalog/product/G/o/Goldsmiths_CCA_6_teaser_klein.jpg?width=437&height=582&store=de_de&image-type=image https://detail-cdn.s3.eu-central-1.amazonaws.com/media/catalog/product/G/o/Goldsmiths_CCA_7_teaser_gross.jpg?width=437&height=582&store=de_de&image-type=image https://detail-cdn.s3.eu-central-1.amazonaws.com/media/catalog/product/G/o/Goldsmiths_CCA_5.jpg?width=437&height=582&store=de_de&image-type=image https://detail-cdn.s3.eu-central-1.amazonaws.com/media/catalog/product/G/o/Goldsmiths_CCA_8.jpg?width=437&height=582&store=de_de&image-type=image https://detail-cdn.s3.eu-central-1.amazonaws.com/media/catalog/product/G/o/Goldsmiths_CCA_2.jpg?width=437&height=582&store=de_de&image-type=image https://detail-cdn.s3.eu-central-1.amazonaws.com/media/catalog/product/G/o/Goldsmiths_CCA_10.jpg?width=437&height=582&store=de_de&image-type=image https://detail-cdn.s3.eu-central-1.amazonaws.com/media/catalog/product/G/o/Goldsmiths_CCA_9.jpg?width=437&height=582&store=de_de&image-type=image https://detail-cdn.s3.eu-central-1.amazonaws.com/media/catalog/product/G/o/Goldsmiths_CCA_11.jpg?width=437&height=582&store=de_de&image-type=image https://detail-cdn.s3.eu-central-1.amazonaws.com/media/catalog/product/G/o/Goldsmiths_CCA_14.jpg?width=437&height=582&store=de_de&image-type=image https://detail-cdn.s3.eu-central-1.amazonaws.com/media/catalog/product/G/o/Goldsmiths_CCA_15.jpg?width=437&height=582&store=de_de&image-type=image https://detail-cdn.s3.eu-central-1.amazonaws.com/media/catalog/product/G/o/Goldsmiths_CCA_Grafik_26.jpg?width=437&height=582&store=de_de&image-type=image https://detail-cdn.s3.eu-central-1.amazonaws.com/media/catalog/product/G/o/Goldsmiths_CCA_19.jpg?width=437&height=582&store=de_de&image-type=image https://detail-cdn.s3.eu-central-1.amazonaws.com/media/catalog/product/G/o/Goldsmiths_CCA_Grafik_28.jpg?width=437&height=582&store=de_de&image-type=image https://detail-cdn.s3.eu-central-1.amazonaws.com/media/catalog/product/G/o/Goldsmiths_CCA_12.jpg?width=437&height=582&store=de_de&image-type=image https://detail-cdn.s3.eu-central-1.amazonaws.com/media/catalog/product/G/o/Goldsmiths_CCA_16.jpg?width=437&height=582&store=de_de&image-type=image https://detail-cdn.s3.eu-central-1.amazonaws.com/media/catalog/product/G/o/Goldsmiths_CCA_Grundriss_22.jpg?width=437&height=582&store=de_de&image-type=image https://detail-cdn.s3.eu-central-1.amazonaws.com/media/catalog/product/G/o/Goldsmiths_CCA_Grafik_27.jpg?width=437&height=582&store=de_de&image-type=image https://detail-cdn.s3.eu-central-1.amazonaws.com/media/catalog/product/G/o/Goldsmiths_CCA_20.jpg?width=437&height=582&store=de_de&image-type=image https://detail-cdn.s3.eu-central-1.amazonaws.com/media/catalog/product/G/o/Goldsmiths_CCA_Grundriss_25.jpg?width=437&height=582&store=de_de&image-type=image https://detail-cdn.s3.eu-central-1.amazonaws.com/media/catalog/product/G/o/Goldsmiths_CCA_Grundriss_24.jpg?width=437&height=582&store=de_de&image-type=image https://detail-cdn.s3.eu-central-1.amazonaws.com/media/catalog/product/G/o/Goldsmiths_CCA_18.jpg?width=437&height=582&store=de_de&image-type=image
Copyright © 2024 DETAIL. Alle Rechte vorbehalten.