Offener Grundriss: LabCity in Paris-Saclay von OMA
Photograph by Philippe Ruault, Courtesy of OMA
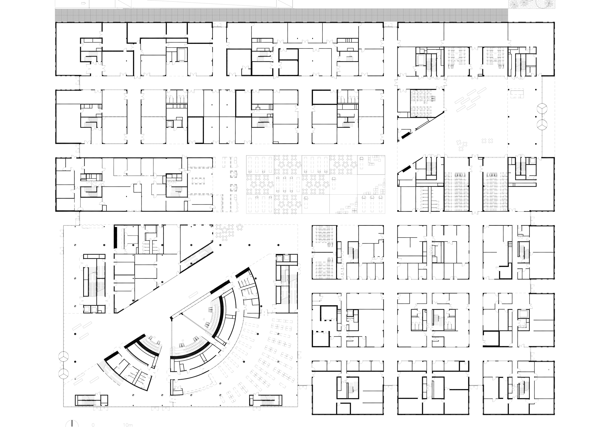
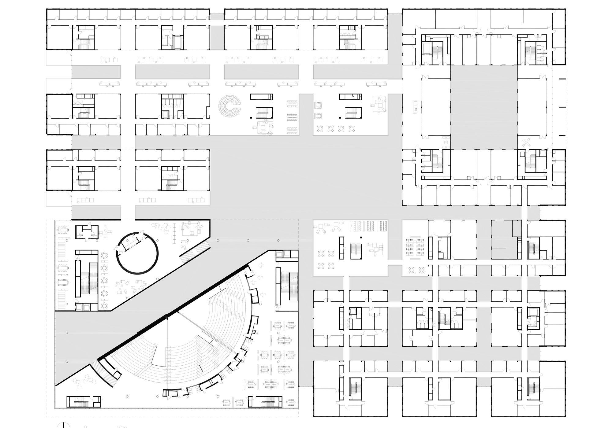
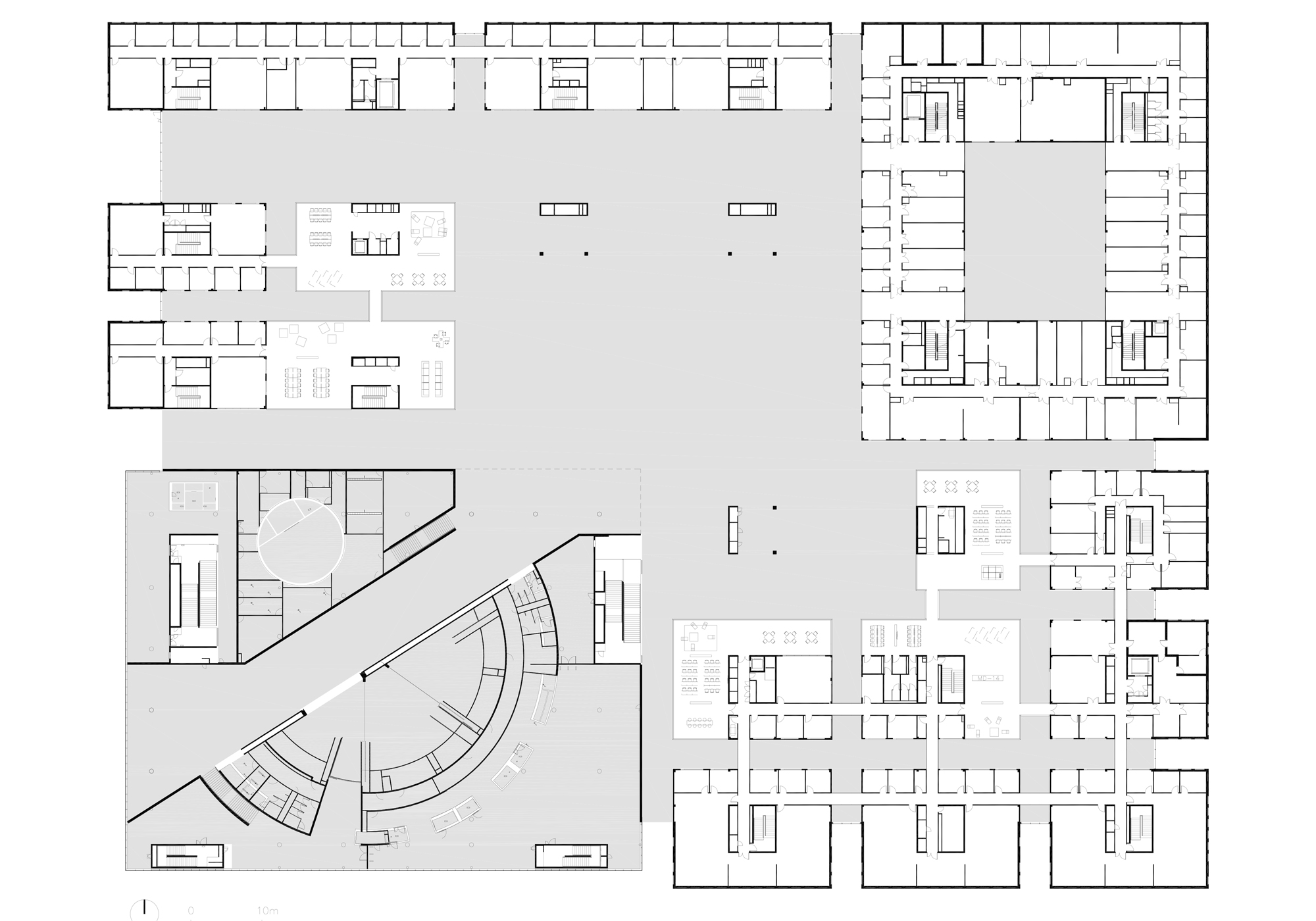
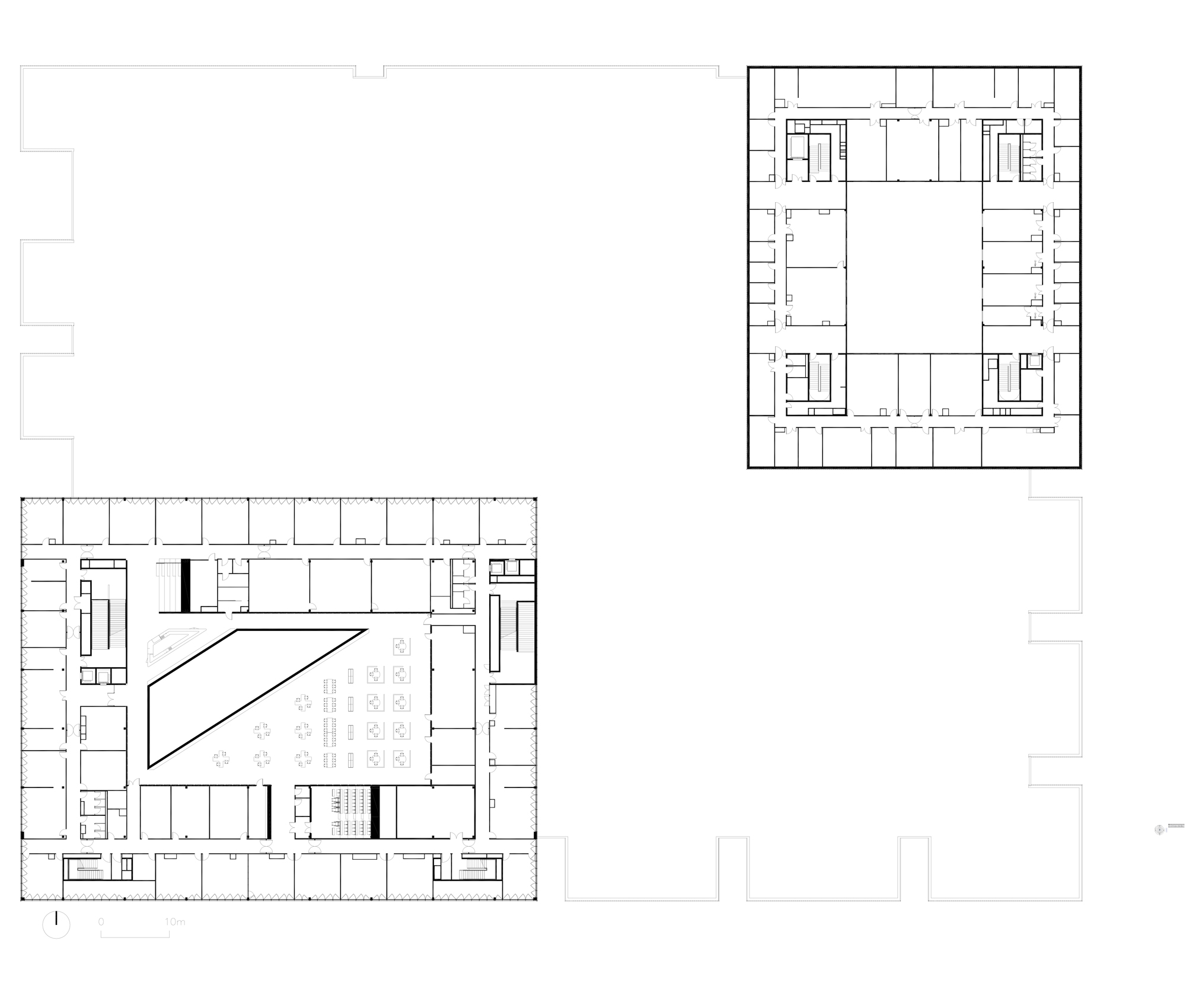
Die LabCity widmet sich Technik und Ingenieurswissenschaften. OMA positionieren den gewaltigen Bau eingebettet in Grünflächen und umgebende Gebäude auf dem Universitäts-Campus Paris-Saclay. Er bildet die Verbindung zwischen dem zukünftigen Herz des Geländes und der U-Bahn-Station. Diese Nahtstelle betonen die Architekten mittels einer Achse, die die rechteckige LabCity diagonal durchschneidet. Von dieser Ausnahme abgesehen beruht der Baukörper auf einem strikten Raster. In sich geschlossene Zellen organisieren sich innerhalb eines offenen Grundrisses. Jede der funktionalen Einheiten besitzt ihren eigenen Versorgungskern mit Erschließung: Während sie in den oberen Niveaus zum Teil über Brücken zusammengeschlossen sind, trennen sie im Erdgeschoss Gänge in Längs- und Querrichtung. An den Enden der Hauptdiagonale, an der nordöstlichen und südwestlichen Ecke, gibt es größere, geschlossene Volumina. Eines der beiden ist über dem großen Auditorium positioniert und zum zentralen Gemeinschaftsbereich hin mit imposanten Säulen aufgeständert.
Eine leichte Dachstruktur aus transluzenten Paneelen überspannt den gesamten Bau und sorgt für ein helles, freundliches Ambiente im Inneren der LabCity. Der Zwischenbereich des Rasters stellt den eigentlichen Hauptraum der Technik- und Ingenieursschule dar. Er ist offen gestaltet und bietet eine Vielzahl an Lern-, Aufenthalts- und Austauschmöglichkeiten. Mittels Sitzgruppen im Eingangsniveau, sowie auf den Boxen, zonieren, strukturieren und fassen OMA die unterschiedlichen Disziplinen zusammen. Ein dezentes Industriedesign mit Sichtbeton und sichtbaren Installationen komplettiert den offenen Grundriss.
OMA machen aus der LabCity École CentraleSupélec einen dynamischen Bildungsbau, in dem verschiedene Bildungsansätze nicht nur koexistieren, sondern voneinander profitieren. Gleichzeitig hinterfragen sie mit dem flexiblen, progressiven Grundrisskonzept den – oftmals auf Optik und Prestige bedachten – Stellenwert der Architektur im öffentlichen Bereich.






















