DDR-Tradition fortgeschrieben
AFF Architekten erweitern Lew-Tolstoi-Schule in Berlin
Lew-Tolstoi-Schule in Berlin, © Tjark Spille
Bei der Erweiterung der deutsch-russischen Grundschule setzen AFF Architekten doppelt auf Kontinuität: beim Erschließungskonzept und bei der Materialpalette, die mit Fliesen, Sichtbeton und Putz das Erbe des DDR-Plattenbaus in verfeinerter Form aufgreift. Seit Mitte der 90er-Jahre wird an der Lew-Tolstoi-Grundschule in Berlin-Karlshorst zweisprachig deutsch und russisch unterrichtet. Rund die Hälfte der 570 Schüler lernen in bilingualen Lerngruppen, der Rest erhält rein deutschsprachigen Unterricht.


© Hans-Christian Schink
Das Schulgebäude selbst entstand bereits Ende der 60er-Jahre als Schultypenbau SK der DDR: ein viergeschossiger Gebäuderiegel mit zwei Treppenhäusern und separater Turnhalle, der die Nachbargebäude in dem ruhigen Einfamilienhausgebiet deutlich überragt. Bis zum Ende der sozialistischen Ära diente es als Polytechnische Oberschule.
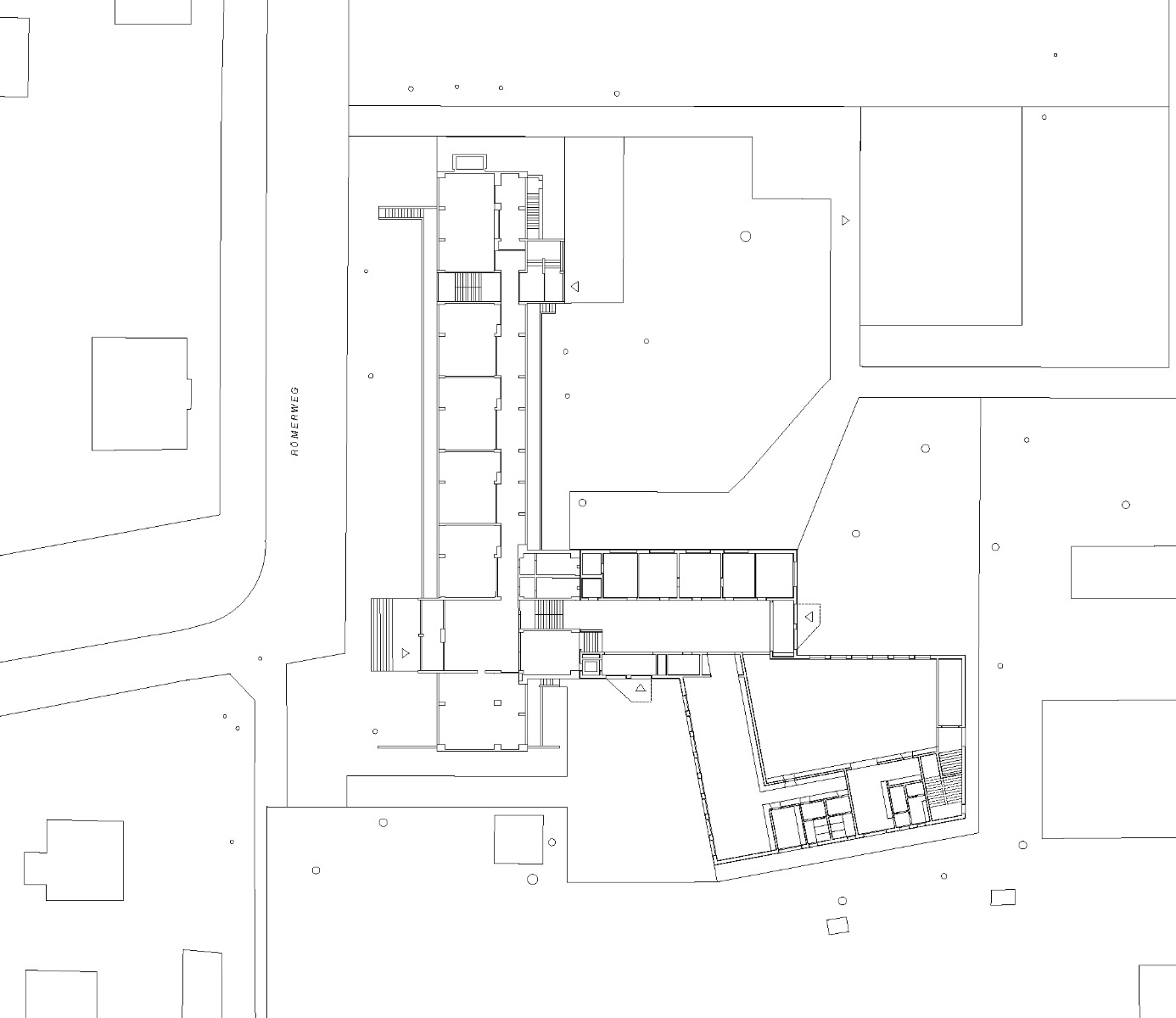
Mit ihrem Anbau erweitern AFF Architekten den (mittlerweile energetisch sanierten) Plattenbauriegel auf der Rückseite, nach Osten hin. Im Nordosten ist zwischen Bestand und Ergänzung ein neuer Eingangs- und Pausenhof entstanden. Eine Aluminiumgussplastik des Künstlers Sven Kalden nimmt die Kinder und Eltern hier in Empfang. Sie stellt die erste Kosmonautin im Weltall, Valentina Tereshkova, dar und bildet ein Pendant zur Skulptur „Mutter und Kind“ von Eberhard Bachmann vor dem bisherigen Haupteingang auf der Westseite.


© Hans-Christian Schink
Abwechslungsreich gegliederte Fassaden
Mit unterschiedlichen Oberflächen verliehen die Architekten den monochromen Fassaden ihres Erweiterungsbaus eine abwechslungsreiche Textur. An den geschlossenen Flächen wechseln sich glasierte, profilierte Fliesen und matter Verputz ab. Großformatige, plastische Betonelemente und Bandfensterabschnitte gliedern die Baukörper. Bodentiefe Verglasungen und Eingangsbereiche sind von umlaufenden Betongewänden gerahmt.


© Tjark Spille
Breite Flure mit viel Tageslicht
Nach der Erweiterung hat die Grundschule nun zwei Haupteingänge im Westen und Osten mit dazwischen liegender „Schulstraße“. Sie verbindet die Treppenhäuser, Eingänge und Außenbereiche miteinander. Daran angegliedert liegen im Erdgeschoss der Erweiterung Verwaltungsbüros und die Mensa. In den oberen Etagen des Neubauteils sind die Räume des allgemeinen Unterrichtes untergebracht. Dabei sind Betreuungs- und Gruppenräume immer im Wechsel angeordnet, um eine Nutzung für Unterricht und Nachmittagsbetreuung mit kurzen Wegen zu gewährleisten. Die dazwischen liegenden Erschließungsbereiche dienen auch als Pausenzonen mit Sitzbereichen und Ausblicken auf die Schulhöfe.
Architektur: AFF Architekten
Standort: Römerweg 120, 10318 Berlin (DE)
Tragwerksplanung: CRP Bauingenieure
Landschaftsarchitektur: Pola Landschaftsarchitekten
HLS-Planung: Passau Ingenieure
Elektroplanung: Ingenieurbüro Thomas

















