06.04.2022 Heide Wessely

Haus der Jugend in Pforzheim

© Zooey Braun

Mit einer Aufstockung und der Sanierung des Bestandsbaus haben vonM Architekten das Haus der Jugend zu neuem Leben erweckt – und den öffentlichen Park, in dem es steht, unberührt gelassen. Trotz des geringen Budgets gelang ein Jugendzentrum mit unterschiedlichsten Räumen, die alle eine hohe Wertigkeit ausstrahlen.

© Zooey Braun

Der Bau von Eisenbrücken hat die Pforzheimer Unternehmerfamilie Benckiser reich gemacht. Ihr soziales Engagement kam nicht nur den Angestellten zugute, sondern auch der Stadt. Nach dem Wegzug aus Pforzheim im Jahr 1919 überließ ihr die Familie die Villa Benckiser und den dazugehörigen Park mit der Auflage, die Liegenschaft dauerhaft für alle Bürger zu erhalten. Im Krieg jedoch wurde das Wohnhaus stark zerstört. Nur ein paar Natursteingewölbe und die Grundmauern blieben intakt und wurden 1949 in das neue „Haus der Jugend“ integriert. Dessen Inhalt war, sich Integration und Bildung zu widmen und Demokratie, Toleranz und Partizipation zu vermitteln. Um diese Aufgabe zeitgemäß fortführen zu können, musste der rund 70 Jahre alte eingeschossige Bestand dringend saniert werden, außerdem war für die vielfältigen Nutzungen eine Erweiterung nötig.

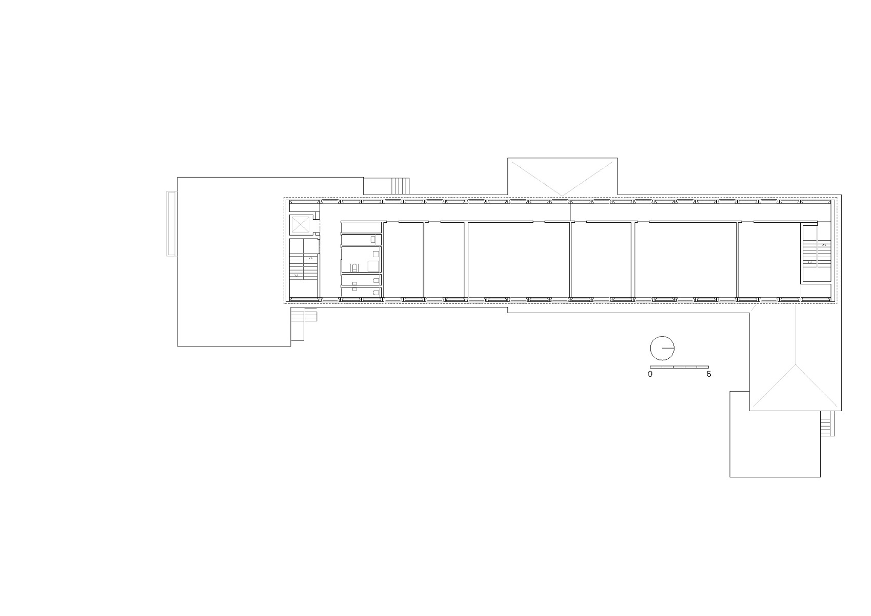
Die Stuttgarter Architekten vonM fügten dem Bestand ein zweites Geschoss hinzu. Konstruktiv besteht es aus einem kostengünstigen Systembau, der auf einer Art Stahltisch sitzt. Dessen Beine durchdringen den Altbau und enden in neu gegossenen Punktfundamenten. In dem neuen Obergeschoss reihen sich nun Büros entlang eines langen Flurs sowie flexibel nutzbare Räume, in denen getanzt, Yoga gemacht oder auf Spielkonsolen gezockt werden kann.

© Zooey Braun

Die Räume verbergen sich hinter einem Screen aus perforiertem, unregelmäßig gekantetem Metall, der das Licht bricht. Von außen wirkt er wie ein textiler Vorhang, der die Lochfassade der Aufstockung dezent durchschimmern lässt, den Aufbau aber optisch zurücknimmt. Prägend sind noch immer die sechsteiligen Fenster des Ursprungsbaus, wobei die monochrome graue Farbgebung alte und neu Gebäudeteile zusammenbindet.

© Zooey Braun
© Zooey Braun
© Zooey Braun

Das Herzstück des Hauses ist eine mittig im Erdgeschoss liegende neue Bühne, die von zwei Seiten bespielt werden kann. Je nach Größe des Publikums kann entweder ein kleiner oder ein großer Theatersaal entstehen. Mit schwarzem Gussasphaltboden, schwarz gestrichenen Akustikplatten an der Decke und Stühlen aus Stahl haben die Architekten Materialien gewählt, die robust und zugleich günstig sind – für ein Haus der Jugend die richtige Wahl.


Architektur: vonM
Bauherr: Stadt Pforzheim
Standort: Westliche Karl-Friedrich-Straße 77, 75172 Pforzheim (DE)


Fertigstellung: 2019
Bruttogrundfläche: 1453 m²
Baukosten: ca. 4 Mio EUR

https://detail-cdn.s3.eu-central-1.amazonaws.com/media/catalog/product/0/1/01-haus-der-jugend-pforzheim-vonm.jpg?width=437&height=582&store=de_de&image-type=image https://detail-cdn.s3.eu-central-1.amazonaws.com/media/catalog/product/0/2/02-haus-der-jugend-pforzheim-vonm.jpg?width=437&height=582&store=de_de&image-type=image https://detail-cdn.s3.eu-central-1.amazonaws.com/media/catalog/product/0/3/03-haus-der-jugend-pforzheim-vonm.jpg?width=437&height=582&store=de_de&image-type=image https://detail-cdn.s3.eu-central-1.amazonaws.com/media/catalog/product/0/4/04-haus-der-jugend-pforzheim-vonm.jpg?width=437&height=582&store=de_de&image-type=image https://detail-cdn.s3.eu-central-1.amazonaws.com/media/catalog/product/0/5/05-haus-der-jugend-pforzheim-vonm.jpg?width=437&height=582&store=de_de&image-type=image https://detail-cdn.s3.eu-central-1.amazonaws.com/media/catalog/product/0/6/06-haus-der-jugend-pforzheim-vonm.jpg?width=437&height=582&store=de_de&image-type=image https://detail-cdn.s3.eu-central-1.amazonaws.com/media/catalog/product/0/7/07-haus-der-jugend-pforzheim-vonm.jpg?width=437&height=582&store=de_de&image-type=image https://detail-cdn.s3.eu-central-1.amazonaws.com/media/catalog/product/0/8/08-haus-der-jugend-pforzheim-vonm.jpg?width=437&height=582&store=de_de&image-type=image https://detail-cdn.s3.eu-central-1.amazonaws.com/media/catalog/product/0/9/09-haus-der-jugend-pforzheim-vonm.jpg?width=437&height=582&store=de_de&image-type=image https://detail-cdn.s3.eu-central-1.amazonaws.com/media/catalog/product/1/0/10-haus-der-jugend-pforzheim-vonm.jpg?width=437&height=582&store=de_de&image-type=image https://detail-cdn.s3.eu-central-1.amazonaws.com/media/catalog/product/1/4/14-haus-der-jugend-pforzheim-vonm-grafik-lageplan.jpg?width=437&height=582&store=de_de&image-type=image https://detail-cdn.s3.eu-central-1.amazonaws.com/media/catalog/product/1/1/11-haus-der-jugend-pforzheim-vonm-grafik-grundrisse-eg-mit-moebel.jpg?width=437&height=582&store=de_de&image-type=image https://detail-cdn.s3.eu-central-1.amazonaws.com/media/catalog/product/1/5/15-haus-der-jugend-pforzheim-vonm-grafik-grundrisse-og.jpg?width=437&height=582&store=de_de&image-type=image https://detail-cdn.s3.eu-central-1.amazonaws.com/media/catalog/product/1/3/13-haus-der-jugend-pforzheim-vonm-grafik-schnitt-1.jpg?width=437&height=582&store=de_de&image-type=image https://detail-cdn.s3.eu-central-1.amazonaws.com/media/catalog/product/1/2/12-haus-der-jugend-pforzheim-vonm-grafik-schnitt-2.jpg?width=437&height=582&store=de_de&image-type=image

Diese Artikel könnten Sie auch interessieren

Copyright © 2024 DETAIL. Alle Rechte vorbehalten.