Lebendige Ortsmitte
Archiv der Zukunft in Franken von Peter Haimerl Architektur
Das neue Gebäude für das Archiv der Zukunft mit Baumskulptur in der Ortsmitte Lichtenfels. © Sebastian Kolm Architekturfotografie
Der Münchner Architekt Peter Haimerl ist durch überzeugende Konzepte für das Bauen im Bestand bekannt. Seine sensiblen Sanierungen von Gebäuden und die Revitalisierungen von verlassenen Ortskernen auf dem Land haben international für Aufsehen gesorgt. Das jüngste Projekt des Architekten und seines Teams ist ähnlich und doch anders. Denn im oberfränkischen Lichtenfels entstand nach fünf Jahren Planungs- und Bauzeit mit dem Archiv der Zukunft ein Kulturraum, der ein klares Signal auf dem Marktplatz setzt durch sein Programm mehr Leben in die oberfränkische Korbstadt bringen wird. Haimerl konzipierte das Gebäude als eine rundum verglaste Stahlkonstruktion, die einen historischen Bestandsbau ersetzt und dessen saniertes Kellergewölbe nutzt.


Blick durch die Glasfassade auf den Marktplatz von Lichtenfels. © Sebastian Kolm Architekturfotografie
Energie für den Stadtplatz
„Wir wollten den historischen Glanz der Stadt mit neuer Energie aufladen“, so Haimerl beim Rundgang vor Ort – der Bestandsbau sei für diesen Zweck nicht geeignet gewesen. Die Stadt Lichtenfels ist seit Jahrhunderten für ihre Weidenkörbe bekannt. Diese Tradition griffen die Architekten in einer 12 m hohen Skulptur aus zwei golden schimmernden Weidenbäumen auf. Sie entwickelten diese filigrane und doch tonnenschwere Stahlstruktur mit einem Wachstumsalgorithmus.
Was als 3D-Experiment anfing, wurde mit digitalen und physischen Modellen auf seine sichere Konstruktion getestet und schließlich mit Vierkantrohren und robotischer Schweißtechnik auf dem Stadtplatz errichtet. Durch die Beschichtung im Duplex Verfahren auf verzinktem Stahl erhalten die künstlichen Weiden ihren goldenen Glanz.


Die Stahlskulptur der Weidenbäume ist über 12 m hoch und wiegt 25 t. Sie wurde mithilfe eines Wachstumsalgorithmus entwickelt. © Sebastian Kolm Architekturfotografie
Filigraner Glaspavillon
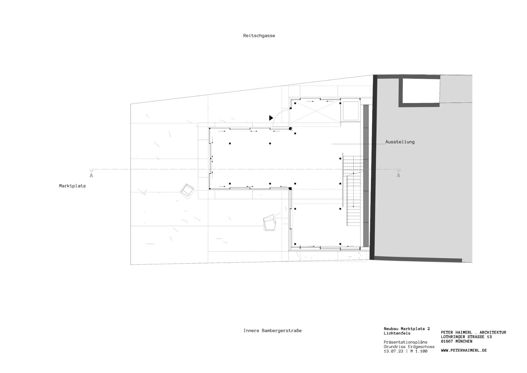
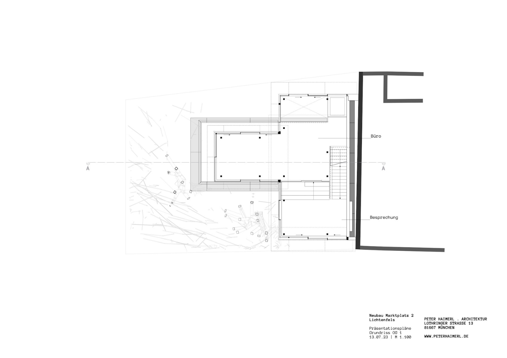
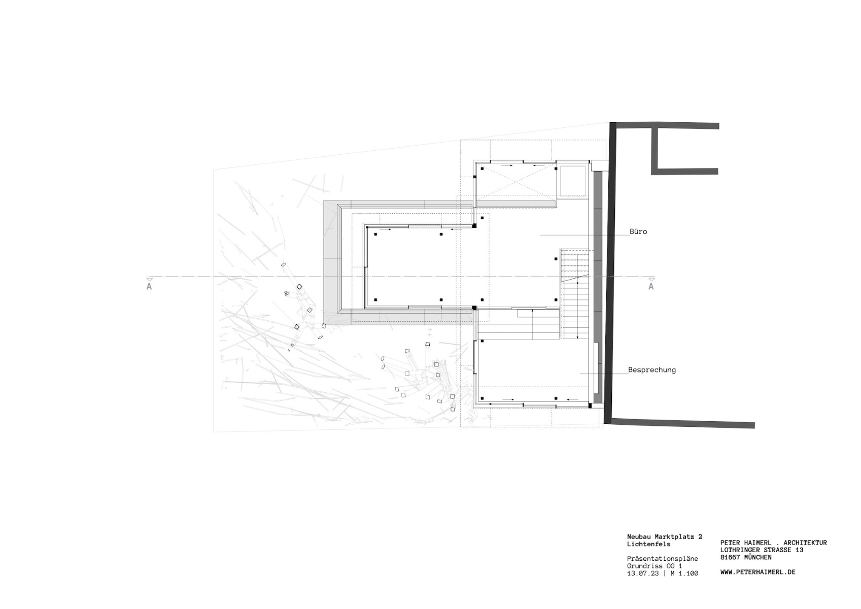
Hinter den Ästen der Skulptur – sie wiegt insgesamt 25 t und die Gesamtlänge ihrer Äste beträgt 1,8 km, verbirgt sich ein gläserner Pavillon, in dem das Archiv der Zukunft residiert. In den durchgängig verglasten Geschossen sind seine Büroräume untergebracht, zusätzlich gibt es Platz für Ausstellungen und Veranstaltungen. Denn die bürgernahe Plattform möchte ein Möglichkeitsraum für die Lichtenfelserinnen und Lichtenfelser sein, ein Ort für gute Zukunftsideen, der Inspiration und Impulse für einen positiven Wandel fördert.


Astgabel der Weidenskulptur aus Stahl, © Basti Arlt


Deckenpaneel aus geschäumtem Aluminium im Innenraum, © Basti Arlt
In dem neuen Gebäude am Marktplatz 2 soll über Innovationen informiert und diskutiert werden. Die Glasfassaden lassen sich vollständig zum Straßenraum öffnen – so gehen die Innenräume buchstäblich in den öffentlichen Stadtraum über. Deckenpaneele aus geschäumtem Aluminium sorgen für eine optimale Versorgung mit Wärme und Kühlung. Die Wände im Keller bestehen aus Bohrkernen, die während der Bauarbeiten zur Stabilisierung notwendig waren. Ihre markante Musterung aus Steinen und Erdschichten entstand durch die Drehbewegung, mit der die Bohrhülsen aus dem Erdreich gezogen wurden.


Veranstaltungsraum im sanierten Keller des Archivs der Zukunft. Die markante Wandstruktur besteht aus den Bohrkernen, die während der Sanierung notwendig waren. © Sebastian Kolm Architekturfotografie
Das Archiv der Zukunft in Lichtenfels gibt sich ebenso bodenständig wie technisch innovativ. Seine Architektur bezieht die Tradition mit ein, um auf die Zukunft zu verweisen. Jetzt muss noch Leben einziehen in das neue Haus – das Programm dazu gibt es bereits.
Mehr dazu in Detail 12.2023 und in unserer Datenbank Detail Inspiration. In zwei Edition Detail-Büchern dokumentieren wir weitere Projekte von Peter Haimerl Architektur – die Ortsmitte Blaibach und den Schedlberg.
Architektur: Peter Haimerl Architektur, München
Bauherr: R+G Asset Management, Lichtenfels
Standort: Marktplatz 2, DE–96215 Lichtenfels (DE)
Bauleitung: strukturdesign
Gutachter Windbeladung der Weiden: Guido Morgenthal
HLS Planung: ddk Dahmen
ELT Planung: Püls & Schuberth
Programm: archivderzukunft-lichtenfels.de
























