Bauen im Bestand
Viktorianisches Reihenhaus in London neu gedacht
© Stijn Bollaert
Lorem Ipsum: Zwischenüberschrift
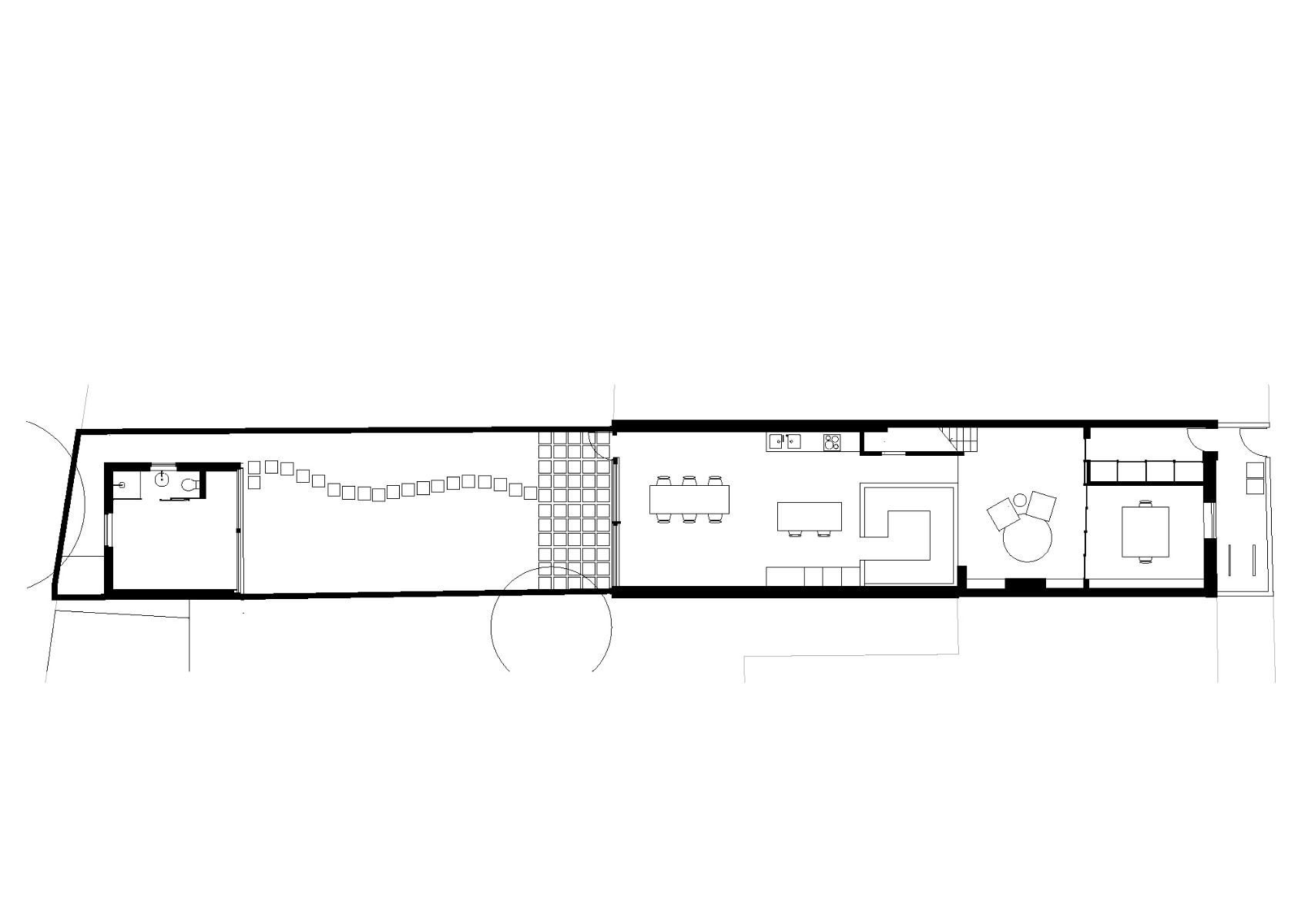
Als Prototyp für Nachverdichtung im städtischen Raum hat die Architektin Mariia Pashenko ein traditionelles Londoner Reihenhaus mit Garten in ein Terrassenhaus transformiert. Durch intelligente Eingriffe wurde das 130 Jahre alte Gebäude renoviert, erweitert und auf heutige Wohnbedürfnisse abgestimmt. Der grundlegend überformte und erlebnisreiche Wohnraum fügt sich bedacht in seine Umgebung ein.


© Stijn Bollaert
Lorem Ipsum: Zwischenüberschrift
Die ursprüngliche Wohnfläche des Hauses wurde durch den planerischen Eingriff mehr als verdoppelt, was die Beherbergung mehrerer Generationen einer Familie erlaubt. Um das Arbeiten von Zuhause aus zu ermöglichen, wurde das ehemalige, zur Straße hin gelegene Wohnzimmer, in ein Büro umgewandelt. Das dahinterliegende, tiefergelegte Atrium bildet das Herzstück des Gebäudes. Große Dachfenster lassen viel Tageslicht in das Gebäude und reduzieren den Bedarf an künstlichem Licht. Im Sommer schaffen die Fenster eine effektive natürliche Querlüftung, was eine Klimaanlage überflüssig macht.
Lorem Ipsum: Zwischenüberschrift
Als lichtdurchfluteter Raum ist das Atrium schwellenlos in Wohn- Küchen- und Essbereich unterteilt. Großflächige, bodentiefe Schiebefenster schaffen einen Blick auf die dicht bewachsene Terrasse sowie das dahinterliegende Gartenzimmer, das als Arbeits- und Rückzugsort dient. Die Seitenwände des Gartens werden als vertikale Erweiterung der horizontalen Fläche des Gartens behandelt und für die Anpflanzung von Kletterpflanzen genutzt.


© Stijn Bollaert
Lorem Ipsum: Zwischenüberschrift
Wellbleche aus Stahl in abgeschwächtem Off-White verkleiden die Fassade der neugebauten Bereiche und harmonieren mit der Aluminium-Farbe der Fensterrahmen und Türen. Die meisten der verbauten Materialien, wie etwa die Stahlträger oder das Metalldach wurden originalgetreu belassen und freigelegt. Inspiriert vom belgischen Brutalismus zieht sich so auch das unverputzte Blockmauerwerk durch das gesamte Gebäude.


© Stijn Bollaert


© Stijn Bollaert
Lorem Ipsum: Zwischenüberschrift
Die Fußbodenheizung funktioniert als effiziente Niedertemperaturheizung und sorgt für eine gleichmäßige Regulierung der Raumtemperatur. Zudem versorgen vier auf dem Dach montierte Photovoltaikmodule das Gebäude das gesamte Jahr über mit zusätzlicher Energie.
Architektur: Pashenko Works
Bauherr: Privat
Standort: London (GB)

































