Repurposed carcass
Chemsafe Office Building by Archisbang near Turin
Chemsafe Office Building near Turin, © Aldo Amoretti
In the small Piedmontese town of Parella, Archisbang has refashioned a half-finished dwelling house into an office building for the consulting company Chemsafe. In a similar approach in 2016, the architects had converted an old villa in nearby Ivrea into headquarters for the same client. Now Chemsafe had purchased the unfinished building shell in Parella at a bankruptcy auction.


The former residential building has now become an office building. © Aldo Amoretti
Materials and surfaces
The architects took the unfinishedness of the building as the kingpin of a concept in which raw materials and bare surfaces meet coloured elements and fittings. On the exterior, they sheathed the volume in metal mesh that ends flush with the projection of the overhanging roof and clad the walls in exposed insulation panels of cement-bonded fibreboard.
Galvanized steel reveals around the light-coloured wood of the windows and doors create a desired contrast between precise detail and raw materials, plus the extension now set into the space of the former covered terrace presents itself as a cube in reflective sheet metal.


On the outside, the building is wrapped in a metal mesh. © Aldo Amoretti
Interiors
Inside the building, the architects inserted new partition walls of white-painted vertical coring brick into the existing concrete skeleton construction, grafting them onto the concrete frame structure in purposely legible manner. Cement-bonded fibreboard panels put in an appearance again, this time partly cladding the walls and ceilings to improve room acoustics. Installation of the air intake and exhaust air ducts of the mechanical ventilation system in vertical fashion on the corridor walls is a rather curious detail. The electrical installations too have been laid openly.


© Aldo Amoretti


© Aldo Amoretti
Spatial organisation
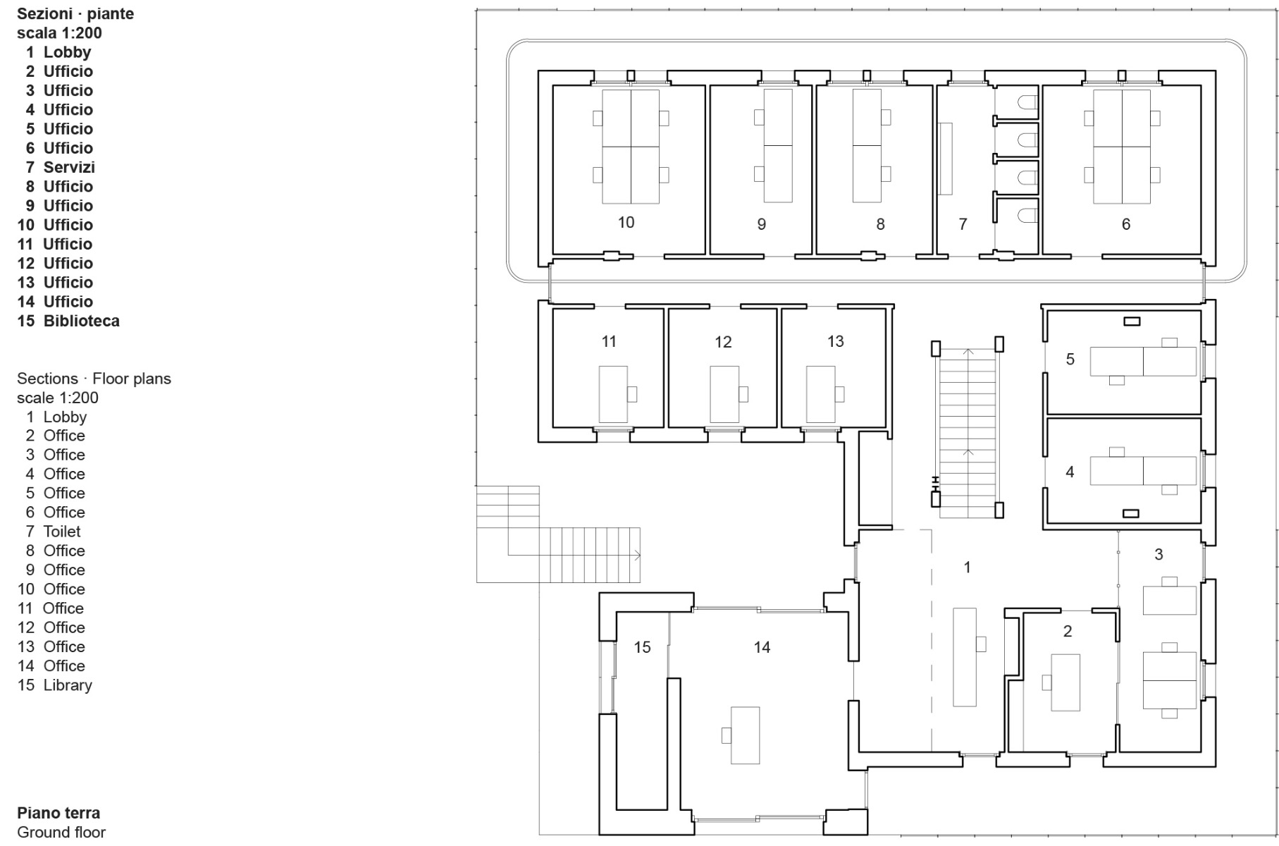
The reception area and offices are located on the middle storey of the three that the building has. An existing concrete staircase now painted yellow leads up to below the very flat hipped roof, where two more offices and the technical equipment room are to be found. A second and less massive flight of stairs in channelled sheet metal leads down to the basement, the location of the meeting rooms, the small staff canteen and the archive. The architects used many details to create a certain continuity between inside and out, such as contiguous concrete floors, tumble guards in rope netting and terrace doors in wood and glass that have also been deployed as office doors. A 50-m-long athletics track that winds its way from inside to around the exterior of the volume brings colour to the long office corridor.
Architecture: Archisbang
Client: Chemsafe
Location: Via Lugnacco, 4, 10010 Parella (IT)
Contractor: Perino Costruzioni




























