Rohbau umgewidmet
Chemsafe-Bürogebäude bei Turin von Archisbang
Chemsafe-Bürogebäude bei Turin, © Aldo Amoretti
In dem kleinen piemontesischen Ort Parella haben Archisbang ein halbfertiges Wohnhaus zum Bürogebäude für das Beratungsunternehmen Chemsafe umgebaut. Auf ganz ähnliche Weise hatten die Architekten schon 2016 eine Altbau-Villa im nahe gelegenen Ivrea zum Headquarter ihres Bauherrn umgestaltet. Das Haus in Parella hatte Chemsafe als unvollendeten Rohbau bei einer Insolvenzauktion erworben.


Aus dem ehemaligen Wohnhaus ist nun ein Bürogebäude entstanden. © Aldo Amoretti
Material und Oberfläche
Die Idee des Unfertigen, die ihm innewohnte, machten die Architekten zum Schlüssel ihres Konzepts: Rohe Materialien und blanke Oberflächen treffen auf farbige Elemente und Einbauten. Auf der Außenseite ist das Volumen in ein Metallgewebe gehüllt, das den Vorsprung des auskragenden Daches schließt, während die Wände mit einer freiliegenden Dämmung aus zementgebundenen Holzfaserplatten verkleidet sind.
Laibungen aus verzinktem Stahlblech rund um die hellen Holzfenster und -türen schaffen den gewünschten Kontrast zwischen präzisem Detail und Rohmaterial. Auch der Anbau, der die ehemalige, überdachte Terrasse einnimmt, gibt sich als reflektierender Blechkubus zu erkennen.


Auf der Außenseite ist das Gebäude in ein Metallgewebe gehüllt. © Aldo Amoretti
Innenräume
Im Gebäudeinneren fügten die Architekten neue Trennwände aus weiß gestrichenen Hochlochziegeln in die bestehende Betonskelettkonstruktion ein. Diese sind bewusst lesbar auf die bestehende Betonrahmenkonstruktion aufgepfropft. Auch hier sind die Wände und Decken teils mit zementgebundenen Holzfaserplatten verkleidet, um die Raumakustik zu verbessern. Ein etwas kurioses Detail sind die Zu- und Abluftkanäle der mechanischen Lüftung, die im Hausflur vertikal an den Wänden angebracht sind. Auch die Elektroinstallationen wurden offen verlegt.


© Aldo Amoretti


© Aldo Amoretti
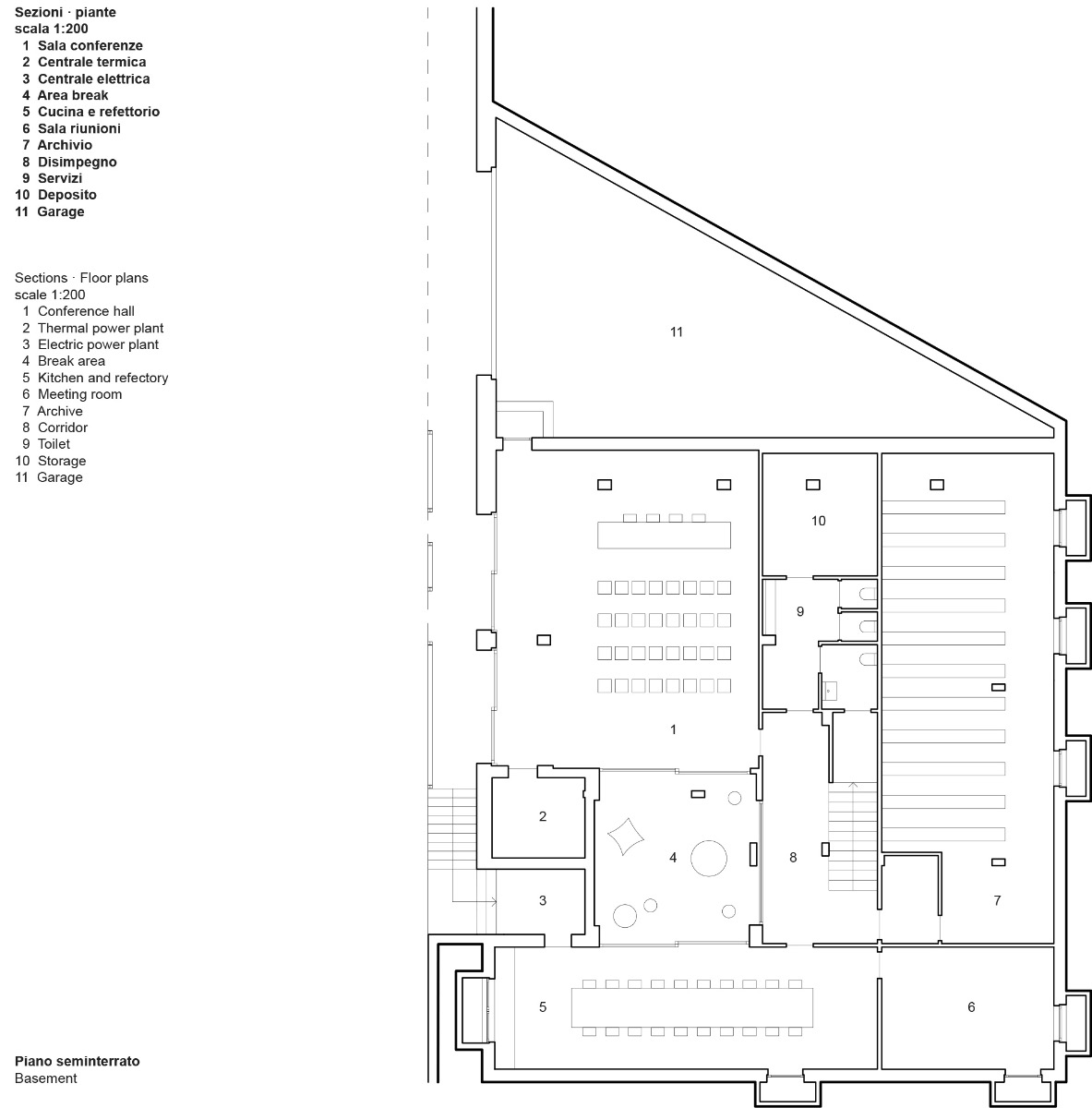
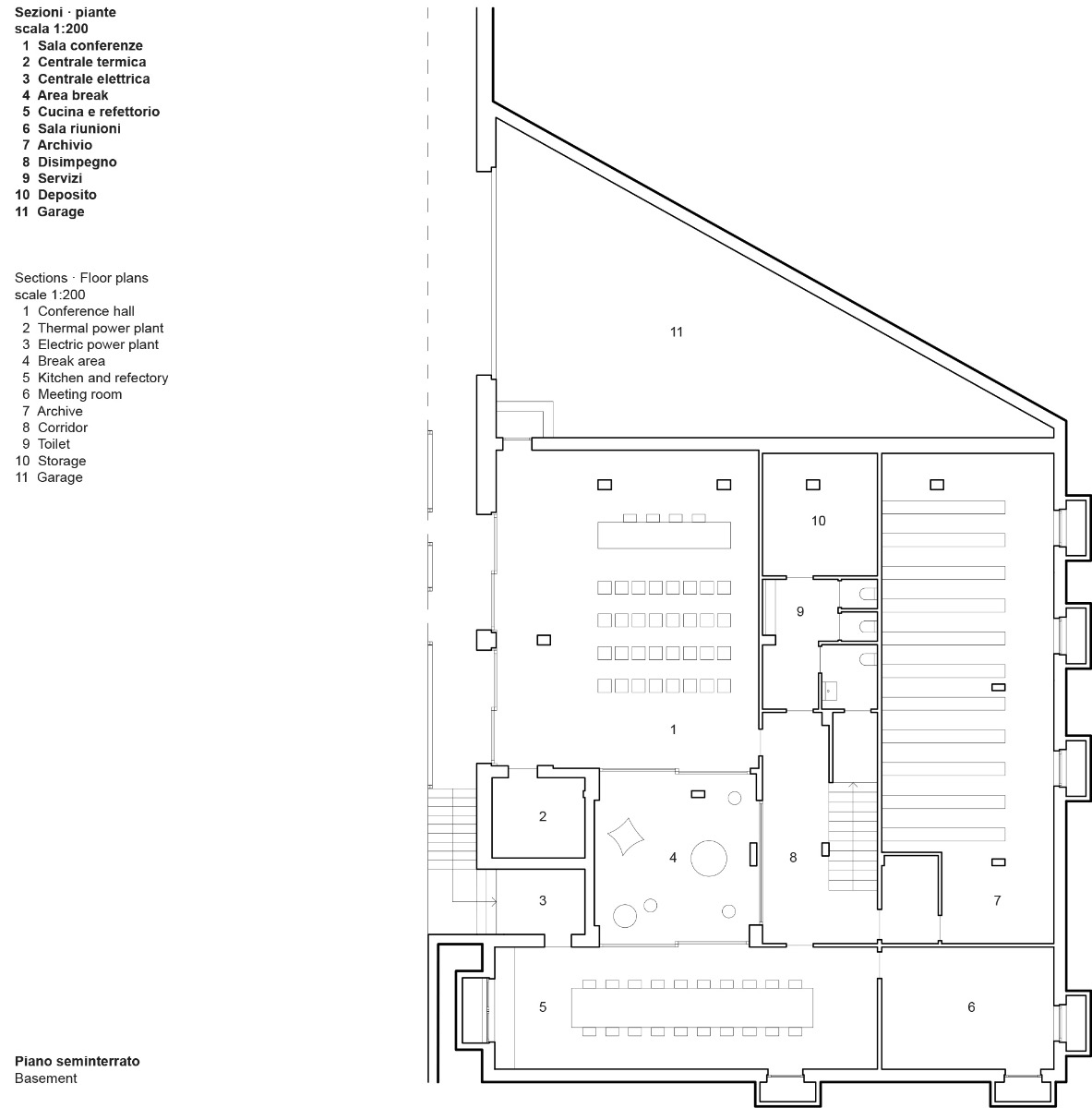
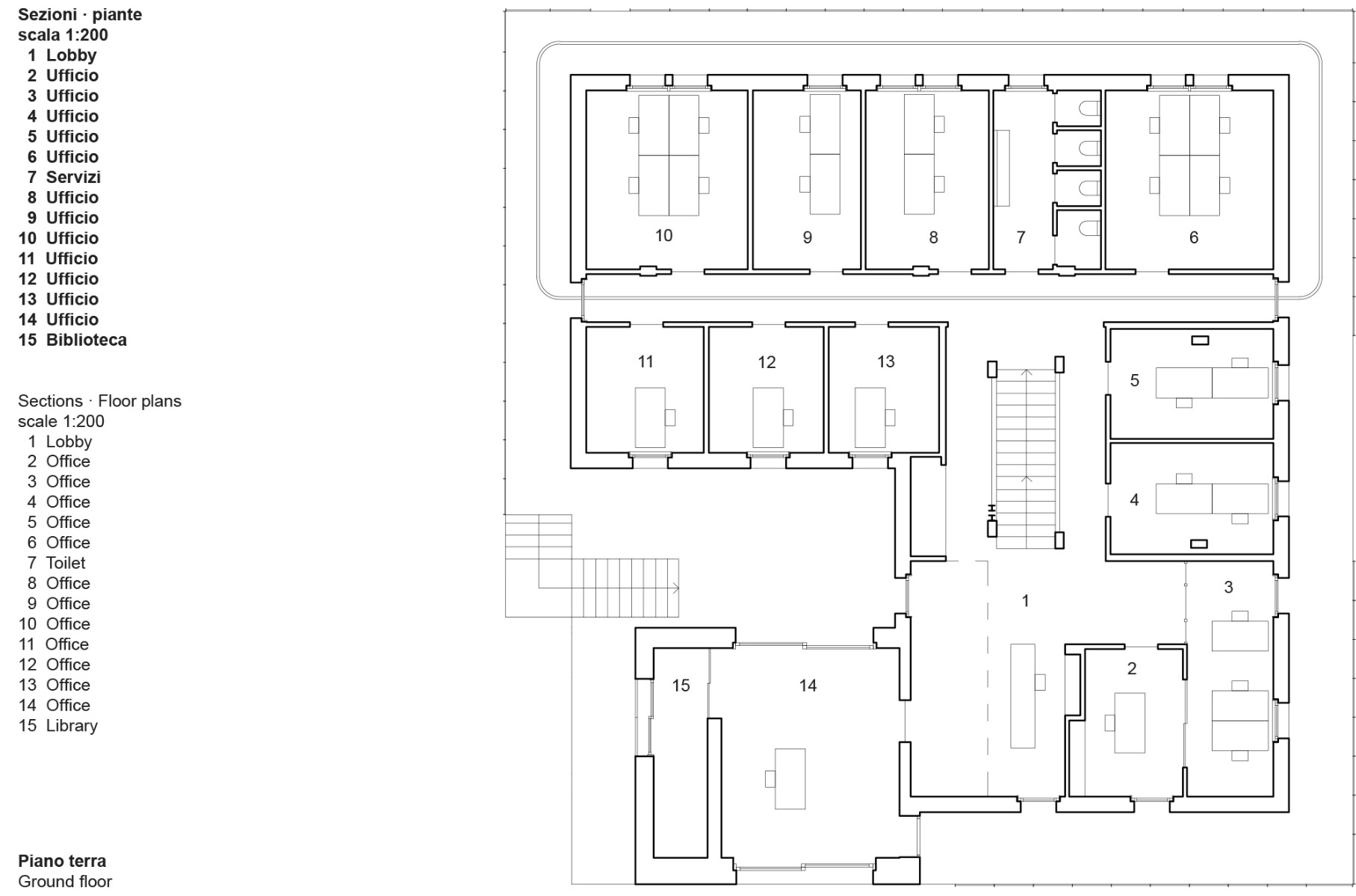
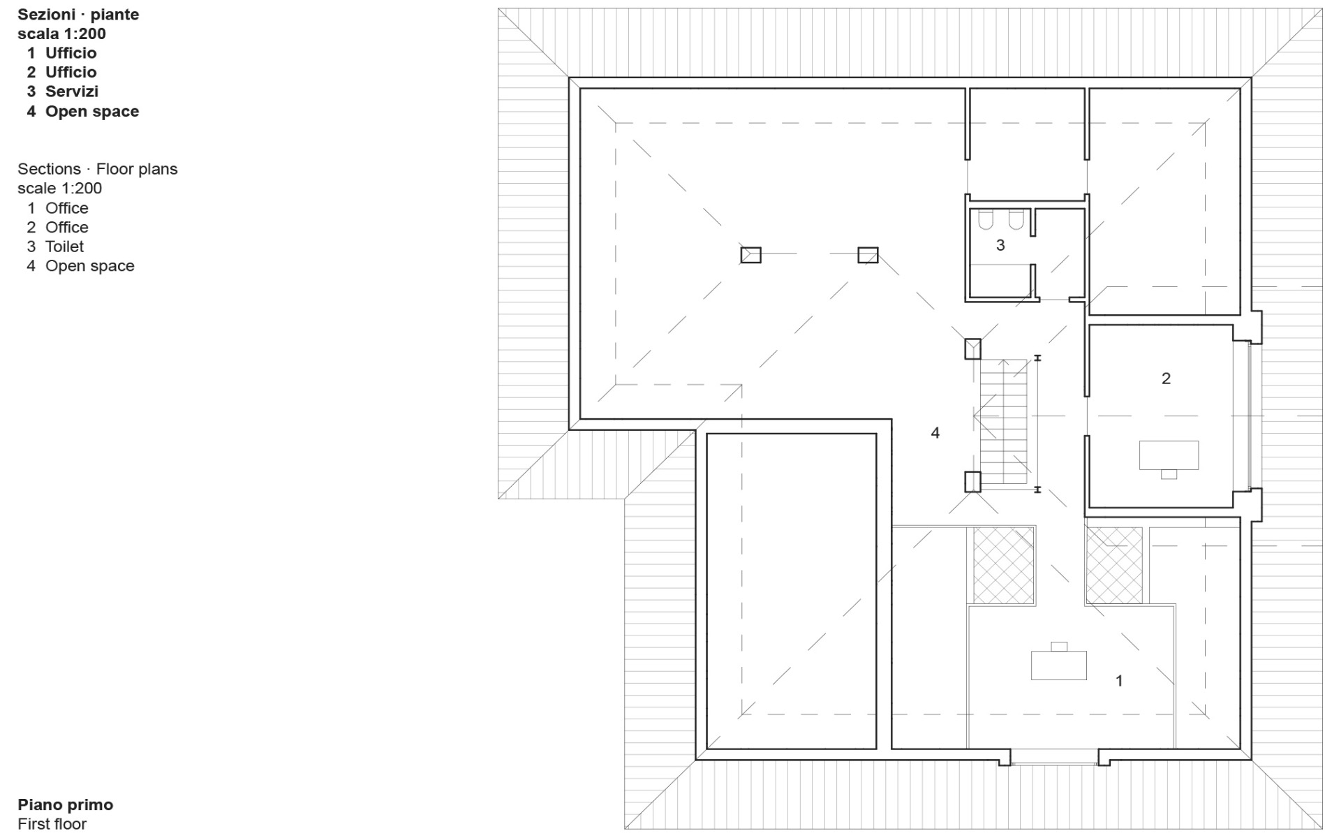
Raumorganisation
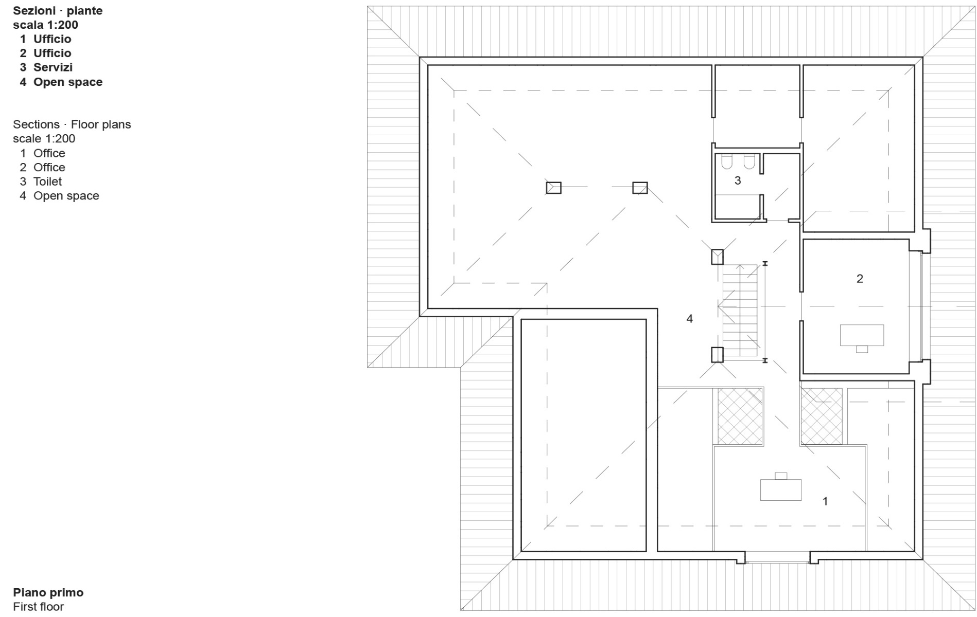
Der Empfang und die Büros liegen auf der mittleren der drei Ebenen. Eine schon bestehende, aber nun gelb gestrichene Betontreppe führt hinauf unter das sehr flache Walmdach, wo neben dem Technikraum noch weitere zwei Büros Platz fanden. Ein zweiter, deutlich filigranerer Treppenlauf aus gekantetem Riffelblech leitet hinunter ins Untergeschoss mit den Besprechungsräumen, der kleinen Mitarbeiterkantine und dem Archiv. Mit vielen Details schufen die Architekten eine gewisse Kontinuität zwischen Innen und Außen. Dazu zählt der durchgehende Betonfußboden, die Absturzsicherungen aus Seilnetz und die Terrassentüren aus Holz und Glas, die auch innen als Bürotüren zum Einsatz kamen. Eine 50 m lange Leichtathletikbahn windet sich von innen nach außen um das Haus und bringt Farbe in den langen Bürokorridor.
Architektur: Archisbang
Bauherr: Chemsafe
Standort: Via Lugnacco, 4, 10010 Parella (IT)
Bauunternehmen: Perino Costruzioni




























