World heritage
Archaeological Museum near Xi’an by Atelier Diameter
The main attraction of the museum: two bronze chariots from the grave of the first Chinese emperor. © Yang Chen
In direct proximity to the museum devoted to the world-famous Terracotta Army, a second, subterranean exhibition building has been created. Its main attraction: two bronze chariots from the grave of the first Chinese emperor.


© Yang Chen
The new building stands at – or rather, under – the foot of the mausoleum of Ying Zheng, progenitor of the Qin Dynasty and founder of the Chinese empire. He died in 210 BCE and was interred in an enormous, shallow burial mound which was one of the first Chinese cultural monuments to be added to the list of Unesco World Heritage Sites in 1987.
Two walls surround this mound; between them extends a huge drainage ditch that was dug centuries later. According to the architects, this spot was the only possible site for the museum, for no more Qin-era finds were to be expected here.


The new building stands at the foot of the mausoleum of Ying Zheng. © Trimont Image
Exposed concrete and directed lighting
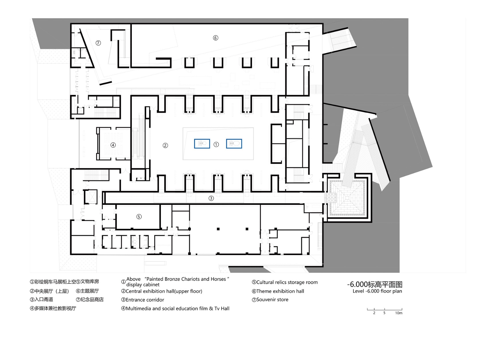
The new structure, which measures around 8000 m², can accommodate 30 000 visitors every day. For the most part, it lies beneath the ground. The way to and from the outdoor grounds was just as important to the architects as the exhibition path itself. A 200-m crossed ramp leads directly from the entrance down into the largest hall, which is home to the museum’s main attraction: two extraordinarily finely worked, half life-sized bronze chariots from the grave of Ying Zheng. These are followed by a lounge, a multimedia room, a second exhibition hall and the museum shop, where the path returns to the outdoors. When visitors take the second ramp up to the exit, their last view is of the first emperor’s mausoleum.


Theme exhibition hall, © Trimont Image
The architects deliberately decided to use exposed concrete as the predominant material in the museum. No ceramic cladding, no wood and no hints at imperial-age architecture will attempt to resurrect history, as is so often the case in China. Here, the exhibits and the history-laden surroundings speak for themselves.
Architecture, Landscape architecture, Structural engineering and building services engineering: ZSA – Atelier Diameter
Client: Emperor Qinshihuang's Mausoleum Site Museum
Location: Qin Shi Huang Di Ling Bo Wu Yuan Li Shan Yuan, Lintong, Xi’An (CN)
Lighting design: Ning Field Lighting Design
Exhibition architecture: Nanjing Baihui Decoration Engineering
General Contractor: Xi’an Qujiang Daming Palace Investment Group



























