Affordable cooperative living
La Borda in Barcelona by Lacol
© Institut Municipal de l'Habitatge i Rehabilitació de Barcelona
La Borda is Barcelona’s first cooperative housing building. Since residents moved into the 28 apartments in 2018, the building has won many international awards, including the Emerging Architect distinction of the Mies van der Rohe Award 2022.
“The architectural language of La Borda, with all the visible wood, is reminiscent of Scandinavia or the German-speaking realm, certainly not of Barcelona,” explains Carles Baiges as he unlocks the metal gate to the entrance hall. He is one of five members of the Lacol architects’ collective that not only planned La Borda, but are members and residents of the co-op association as well. As far back as 2012, Baiges worked with a group of neighbours to organize a citizens’ initiative aimed at creating affordable, collective living space. In the meantime, La Borda has become the most prominent reference point for the new cooperative movement in Catalonia.


© Frank Kaltenbach
“Catalonia has simply not had any models of what we wanted to create: an association with a socially driven, sustainable economy that is not based on profit, but rather on the good of the community.” The plot of land, which is part of a row of perimeter housing blocks, was deep enough to build a spacious access hall as high as seven storeys, illuminate the rooms and, above all, to promote communication among the residents’ community. The association holds a lease for the land and pays a small annual sum for it.
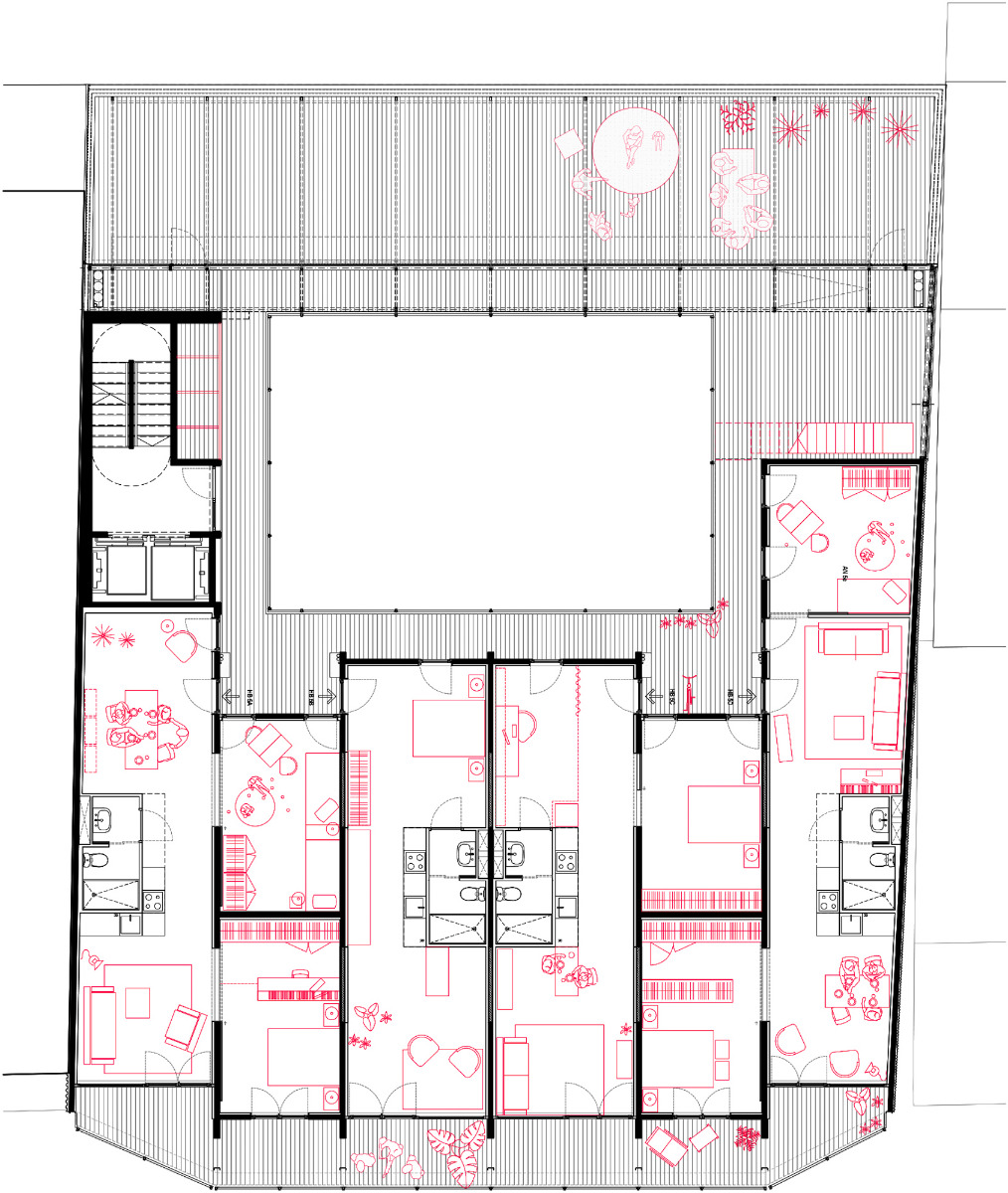
The south façade faces the inner courtyard, which will be redesigned as a district park in 2022. La Borda is one of Spain’s largest wooden buildings. The supporting structure and load-bearing apartment separation walls on the upper levels, as well as the stairway, are of cross-laminated timber.
The ground floor alone is of reinforced concrete with infills of concrete blocks. The flush-mounted facing for the exposed-concrete ceilings have been reused as flooring in the communal kitchen. Bicycles are parked in the hall or hung on the wall. The association chose not to have an underground garage not only for reasons of cost, but from ecological conviction as well.


© Frank Kaltenbach
Like a theatre, the hall is surrounded by galleries. On the north side, this communicative zone on the first upper level broadens into a two-storey communal platform that can be added to later on. From this platform, a steel staircase leads up to the guest apartments. The City of Barcelona does support cooperative apartments, but until now only living spaces, not communal areas. This is why these areas in La Borda have been developed sparingly. In the subsequent La Balma project, which stands in the Poblenou district, Lacol designed the communal areas to be significantly more compact due to a lack of space, but also a lack of funding.
The 28 apartments can be flexibly arranged into various sizes of 40, 60 or 75 m². The units on the fourth and fifth upper storeys of the north side have a horizontal window band facing the street instead of balconies. Nonetheless, they are pleasantly cool in the summertime. “The hall is a thermal buffer zone. It’s not heated, but most of the time it’s warm enough, and in the summer, the cool climate is ideal.”
Read more in Detail 3.2022 and in our databank Detail Inspiration.


© Lacol


© Frank Kaltenbach
Architecture: Lacol
Client: Cooperativa La Borda
Location: Carrer de la Constitució 85,89, 08014 Barcelona (ES)
Structural engineering: Miguel Nevado
Building services engineering: Arkenova

























