Holzskelettbau bringt Flexibilität
Koning Willem I College in 's-Hertogenbosch
© Stijn Poelstra
Lorem Ipsum: Zwischenüberschrift
Modular, rückbaubar und flexibel – der Holzskelettbau von Nieuwe Architecten im niederländischen 's-Hertogenbosch zeigt viele Qualitäten, die für den modernen Hochschulbetrieb wichtig sind. Er fungiert als neues Eingangsgebäude des Koning Willem I College und soll dem Hochschulkomplex, der zuvor von großen Parkplätzen umgeben war, mehr Sichtbarkeit an der Hauptstraße verleihen.


© Stijn Poelstra
Lorem Ipsum: Zwischenüberschrift
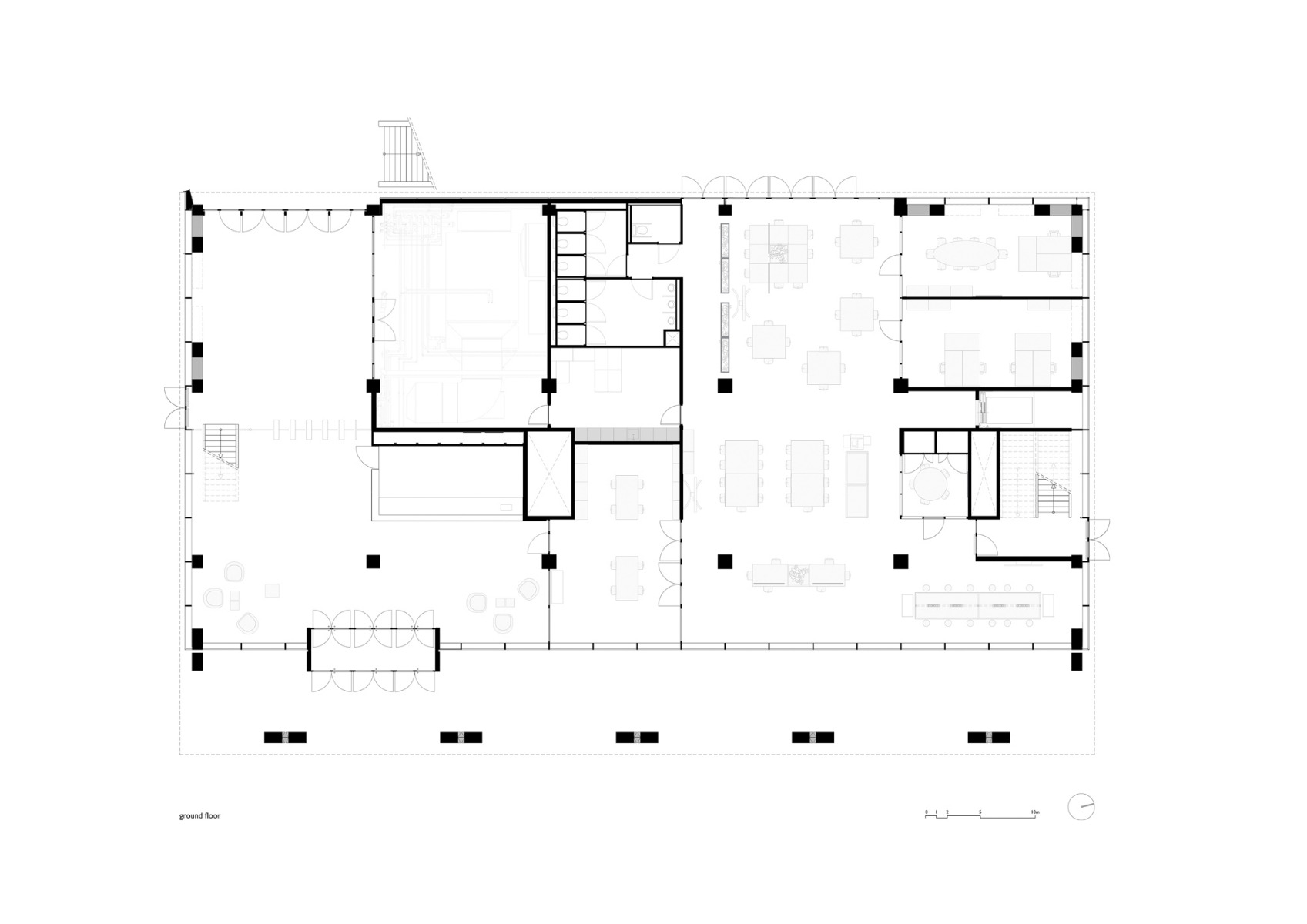
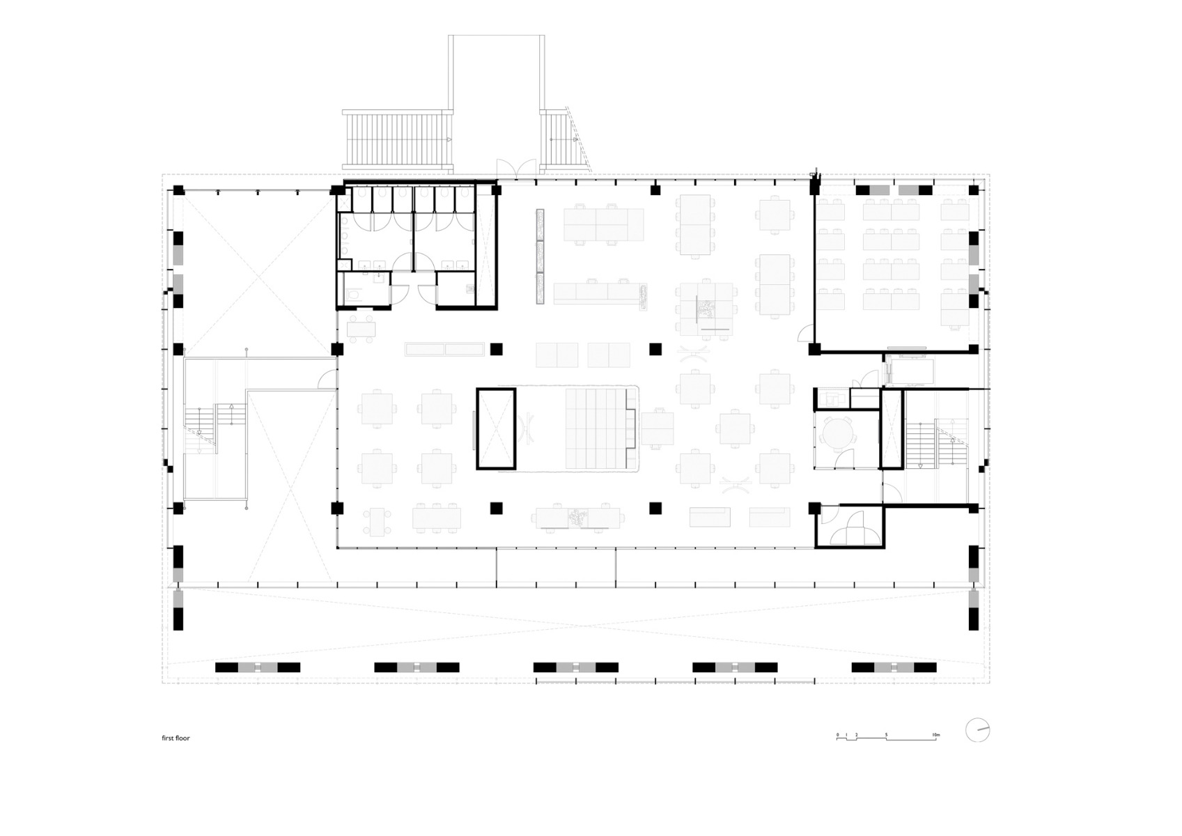
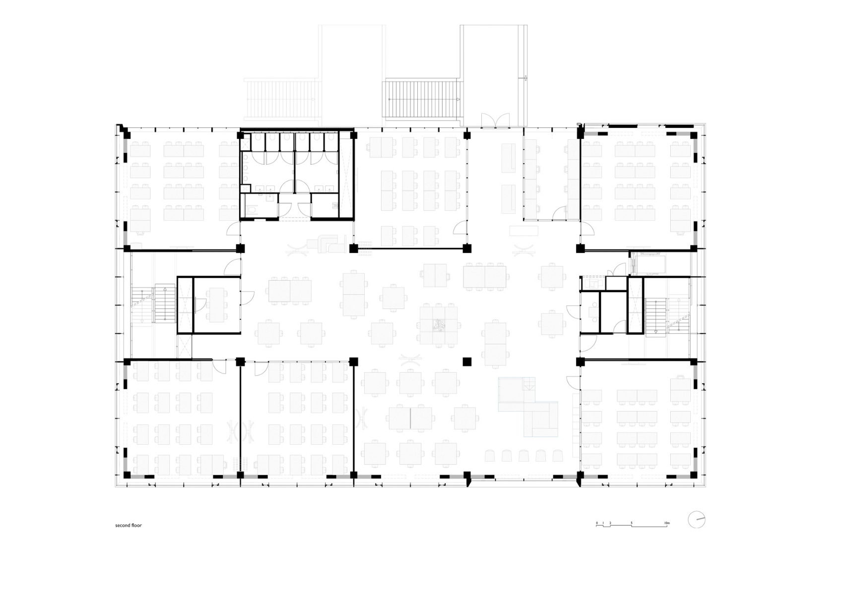
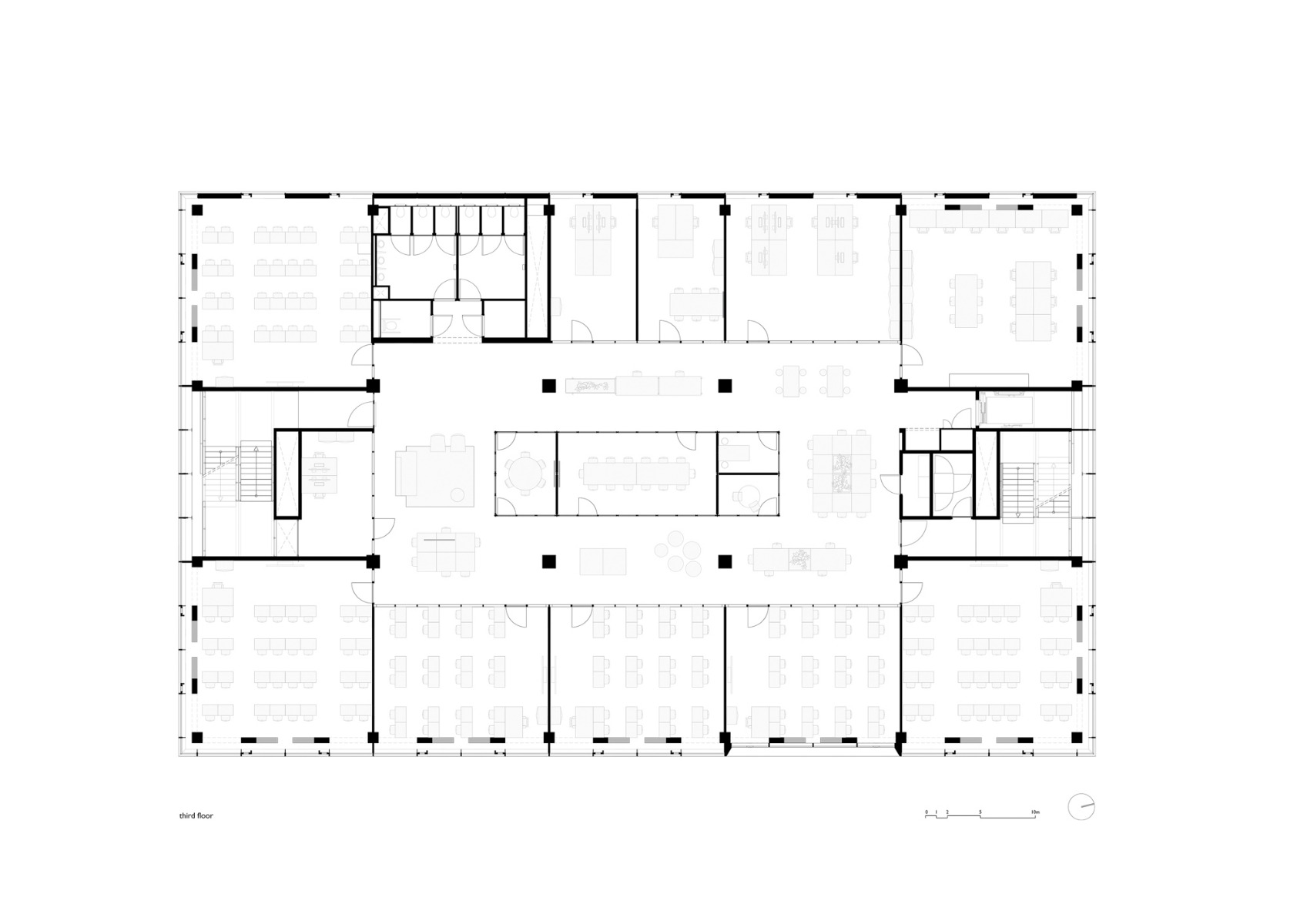
Weil in dem fünfgeschossigen Haus unter anderem Studierende des Fachbereichs Architektur, Bau und Möbeldesign unterrichtet werden, inszenierten die Architekten ihren Neubau zugleich als didaktisches Lehrwerkzeug: Hinter den Glasfassaden ist das mächtige Holztragwerk mit seinen aussteifenden Diagonalen ebenso sichtbar wie die in leuchtendem Blau gestrichenen Treppenläufe. Es basiert auf einem 8 x 8-m-Raster mit 4 m Geschosshöhe.
Lorem Ipsum: Zwischenüberschrift
Im Inneren sind die Leitungen sichtbar unter den Decken geführt, weshalb die Deckenträger vorab mit entsprechenden Bohrungen versehen mussten. Darauf aufliegende Stahlbeton-Hohlkörperdecken sorgen für thermische Speichermasse und den notwendigen Schallschutz. Konstruktion und technischer Ausbau sind so konzipiert, dass sich die Räume im inneren in einem 2-Meter-Raster flexibel mithilfe standardisierter Wandelemente aufteilen lassen.


© Stijn Poelstra
Lorem Ipsum: Zwischenüberschrift
Doch der didaktische Impetus der Architekten geht noch weiter: Die Klima- und Lüftungstechnik, die sonst üblicherweise in Dachaufbauten verschwindet, haben sie für jedermann/-frau sichtbar hinter Glas mitten im Erdgeschoss platziert. Bildschirme zeigen in Echtzeit die Leistung der Solaranlage auf dem Dach an. Auf geschlossenen Wänden sind Zeichnungen angebracht, die ihren Konstruktionsaufbau visualisieren. Mithilfe von QR-Codes auf Bauteilen und technischen Installationen können die Studierenden Informationen zu Materialien und Technikkomponenten abrufen.


© Stijn Poelstra
Lorem Ipsum: Zwischenüberschrift
Nach Angaben der Architekten handelt es sich bei ihrem Neubau um ein Nullenergiegebäude. Die Fußbodenheizung und die Kühldeckensegel in den Räumen werden von einer Luft/Wasser-Wärmepumpe versorgt, die ihren Strom wiederum von der PV-Anlage auf dem Dach bezieht. Auch an ein künftiges Fernwärmenetz ließe sich das Gebäude problemlos anschließen.
Architektur: Nieuwe Architecten
Bauherr: Koning Willem I College
Standort: Onderwijsboulevard 3, 's-Hertogenbosch (NL)
Tragwerksplanung: Pieters Bouwtechniek
Bauphysik, Brandschutz: Zri
TGA-Planung: Klictet Oisterwijk
Bauunternehmen: Heerkens van Bavel


































