Holz-Hybridbau in XXL
Edge Südkreuz Berlin von Tchoban Voss Architekten
© Ilya Ivanov
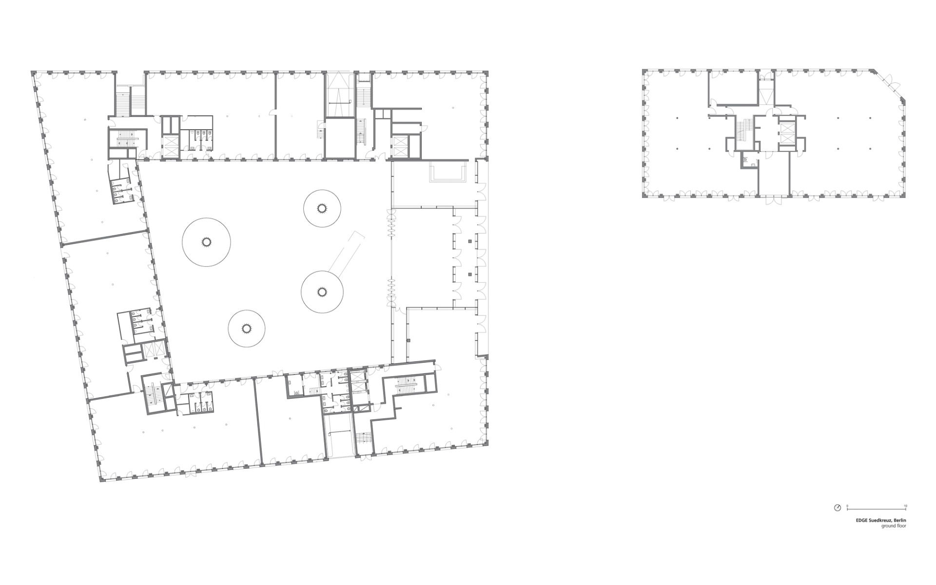
Am Berliner Bahnhof Südkreuz ist Deutschlands größtes Holz-Hybridgebäude fertiggestellt worden. Der größere der beiden Baukörper dient fortan als Deutschland-Zentrale von Vattenfall. 32 000 m² Bruttogrundfläche verteilt auf zwei je siebengeschossige Baukörper: Mit dem Edge Südkreuz stößt der vorgefertigte Holzbau in Deutschland in eine neue Dimension vor. Architektonisch interessant ist insbesondere das Carré getaufte, größere der beiden Gebäude.


© Ilya Ivanov
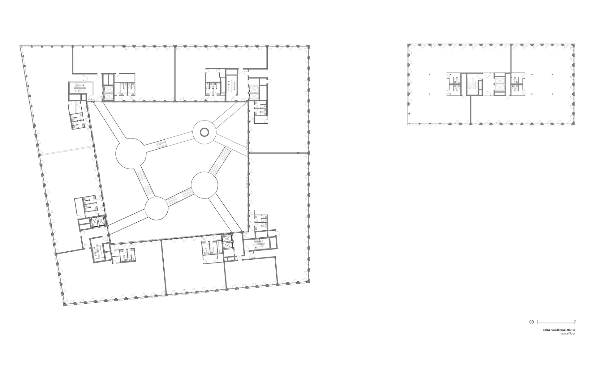
Nach dessen Betreten gelangt man in eine zweigeschossige, 7 m hohe Eingangslobby und von dort weiter in das Herzstück des Hauses – ein gebäudehohes, 26 m hohes Atrium mit Folienkissendach. Zentraler Blickfang sind dort vier in der Höhe abgestufte, holzverkleidete Baum- oder Pilzstützen, zwischen denen Stege und Treppenläufe in die Höhe führen.
Der größte der sogenannten „Trees“ ist 14,87 m hoch und trägt eine Aussichtsplattform mit 6,20 m Durchmesser – ein Ort zum Sehen und Staunen ebenso wie für den informellen Austausch.


© Ilya Ivanov
Umgeben ist das Atrium von vier streng gerasterten Büroflügeln und vier Erschließungskernen in den Innenecken des Gebäudes. Unterbrochen wird diese Struktur nur durch eine große Loggia im fünften Obergeschoss des Hauses. Sie bildet auch eine Zäsur im Fassadenbild mit geschosshohen Lochfenstern und der zweifarbigen Verkleidung aus Faserbetontafeln.


© Ilya Ivanov


© Ilya Ivanov
Nur das Fundament und das Untergeschoss des Hauses bestehen komplett aus Stahlbeton. Darüber kam eine Hybridkonstruktion des Anbieters Cree zum Einsatz. Sie ist eine Weiterentwicklung des Systems, das Hermann Kaufmann Architekten erstmals 2012 für den Verwaltungsbau LCT One im österreichischen Dornbirn verwendet hatten. In der Fassadenebene tragen Doppelstützen aus Holz die je 2,70 m breiten Deckenelemente. Diese setzen sich aus einer 10 cm dicken Betonplatte und 28 cm hohen Brettschichtholzträgern zusammen. Im Gebäudeinneren liegen die Decken auf Betonfertigteilbalken auf. Ein leicht wirkendes Tragwerk aus sich kreuzenden Fachwerkbindern aus Holz und Stahl überspannt das 1600 m² große Atrium und trägt die Folienkissen des Dachs.


© Ilya Ivanov
Nach Berechnungen des Planungsteams wurde im Gebäude das Holz von rund 1300 FSC-zertifizierten Fichten verbaut. Zur CO2-Einsparung infolge der Holzkonstruktion gehen die Angaben auseinander: Die Architekten beziffern diese auf bis zu 85 % (rund 0,15 t CO2 pro m² anstatt circa 0,75 t CO2 pro m² bei konventioneller Bauweise). Die Tragwerkslpaner von Buro Happold sprechen von mindestens 50 % CO2-Reduktion. Wie auch immer: Die ökologischen Vorteile sind erheblich – auch deswegen, weil die Tragkonstruktion nur rund ein Drittel eines konventionellen Stahlbetonbaus wiegt und die Fundamentplatte daher schlanker dimensioniert werden konnte.


© HG ESCH


© HG ESCH
Das gesamte innenarchitektonische Konzept sowie die Entwicklung der neuen Arbeitswelten für Vattenfall wurde vom Büro de Winder Architekten Berlin entwickelt und in der Umsetzung begleitet.
Architektur: Tchoban Voss Architekten (Leistungsphase 4 und gestalterische Oberleitung), granz + zecher architekten (Leistungsphase 5)
Bauherr: SXB S.à r.l. / EDGE
Standort: Hildegard-Knef-Platz 2- 3, 10829 Berlin (DE)
Tragwerksplanung: Happold Ingenieurbüro, BIT Büro für integrale Tragwerksplanung
Innenarchitektur: de Winder Architekten
TGA-Planung: Happold Ingenieurbüro
Generalunternehmen: ARGE SXB, Südkreuz Berlin ZECH Bau GmbH, CREE Deutschland GmbH, Rhomberg Systemholzbau GmbH vertreten durch ZECH Bau GmbH, Berlin


































