Wood-hybrid building in XXL
Edge Südkreuz Berlin by Tchoban Voss Architekten
© Ilya Ivanov
Germany’s largest wood-hybrid building complex has been completed near Berlin’s Südkreuz railway station. The bigger of the two structures will now serve as the German headquarters of Vattenfall. An area measuring 32 000 m² distributed over two seven-storey buildings brings prefabricated wooden buildings in Germany into a new dimension.


© Ilya Ivanov
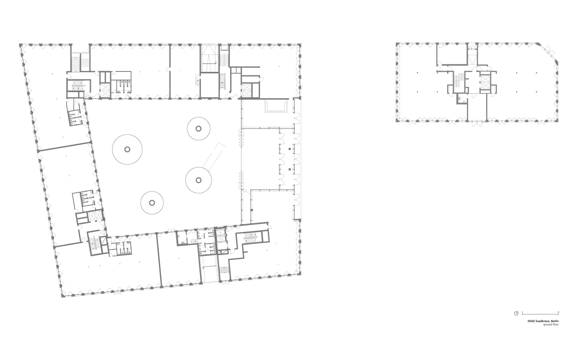
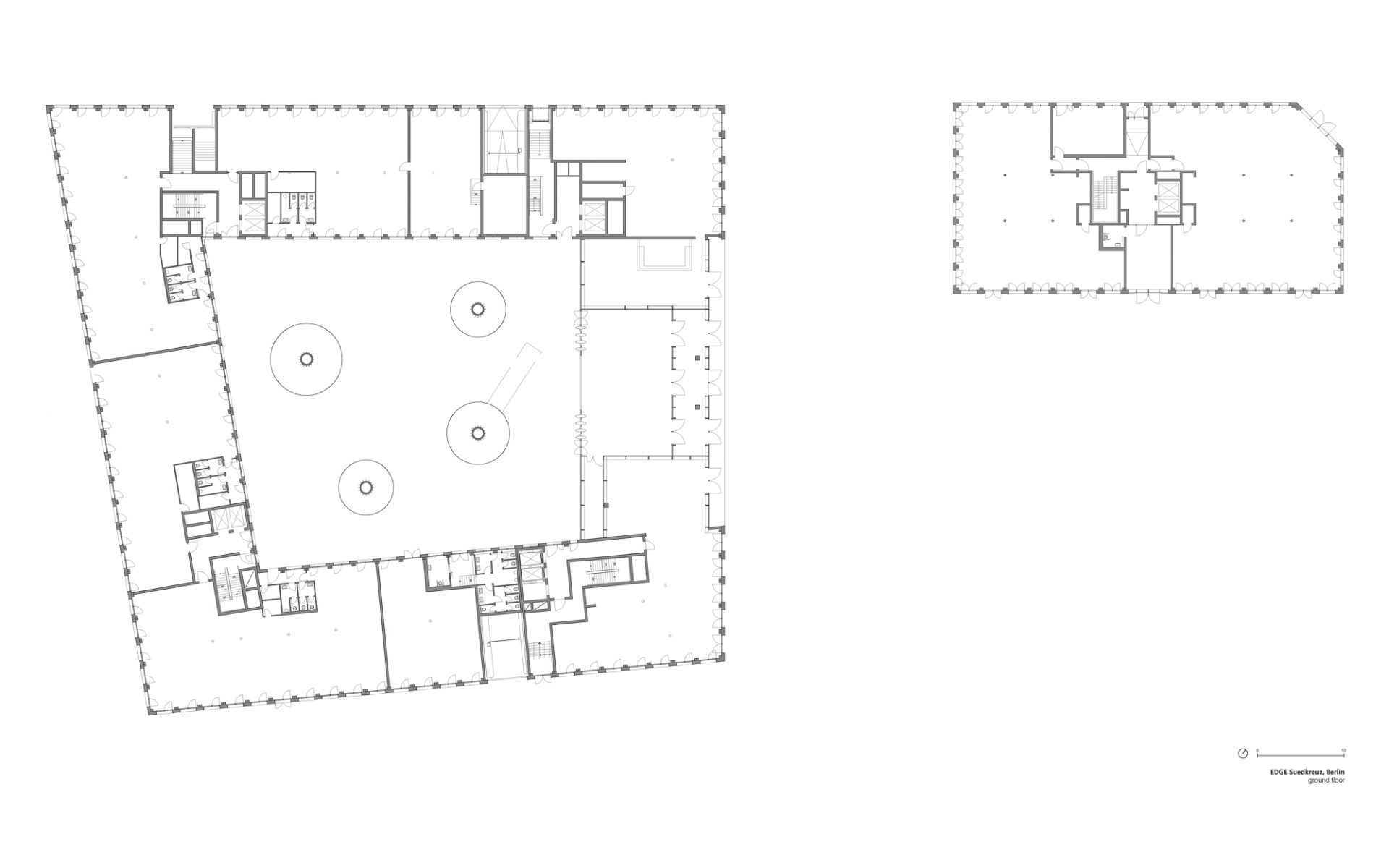
In architectural terms, the larger of the two buildings, called the Carré, is particularly interesting. Upon entering, visitors step into a two-storey, 7-m-high entrance lobby. From there, they continue into the heart of the structure – a building-high, 26 m atrium with a foil-cushion roof.
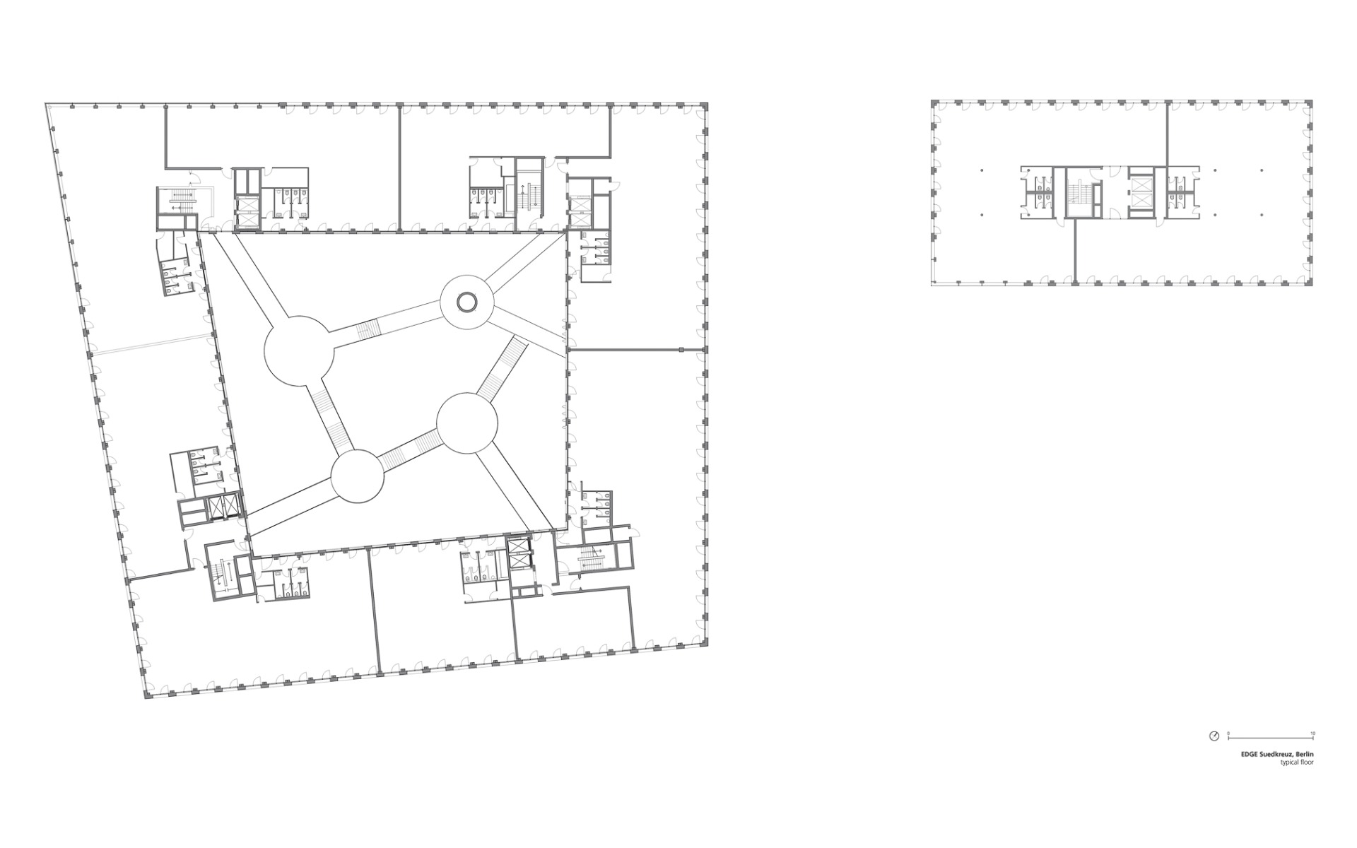
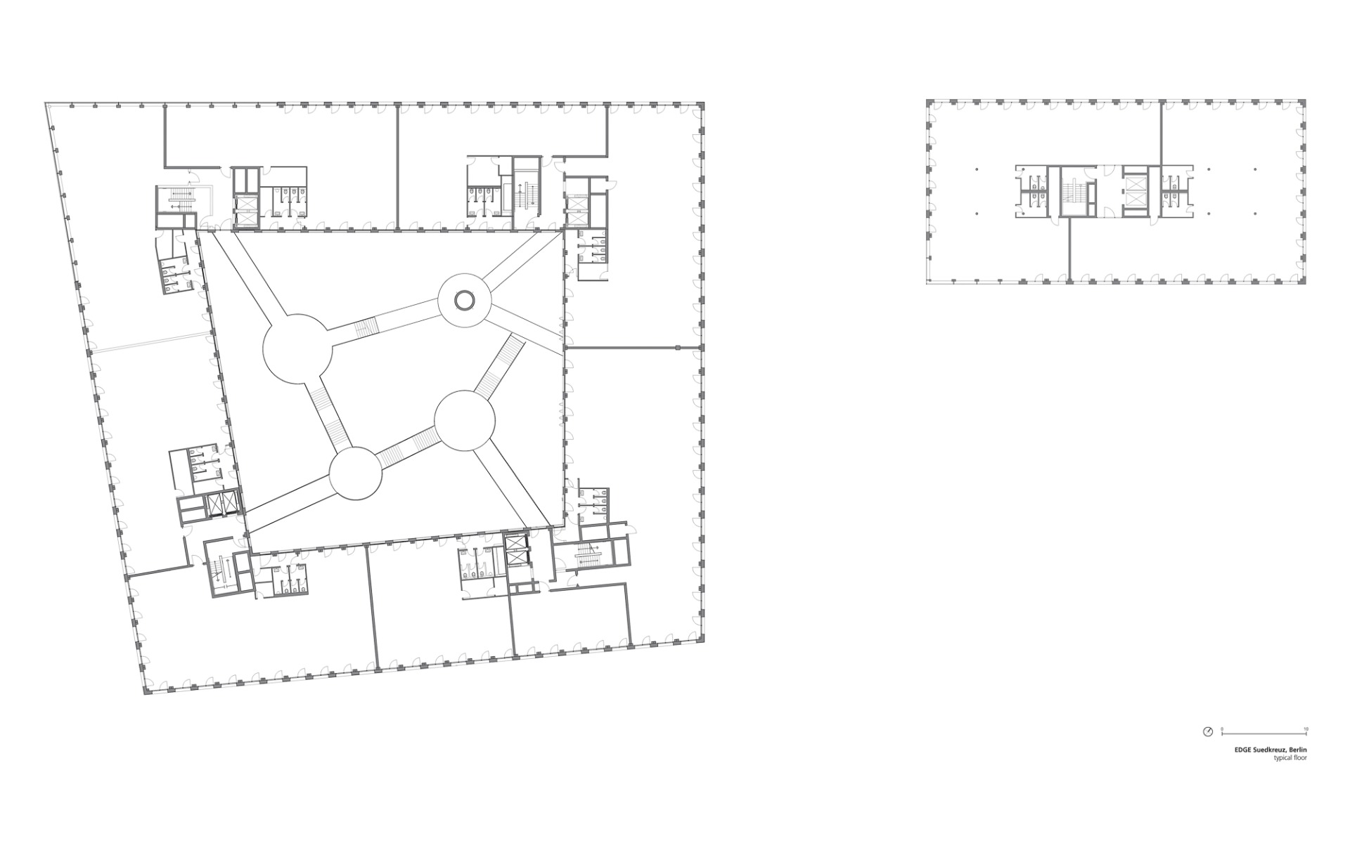
In this space, the real eye-catchers are four wood-clad supports of various heights that resemble trees or mushrooms. Between these, catwalks and stairways lead upwards. The largest of the “trees” is 14,87 m tall and holds an observation deck measuring 6,20 m in diameter – a place not only to look and marvel, but to enjoy informal conversations as well.


© Ilya Ivanov
The atrium is surrounded by four office wings in a strict grid and four access cores in the inner corners of the building. This structure is interrupted by a single large loggia on the fifth upper level. Its floor-to-ceiling punched windows and two-tone covering of fibre-concrete panels also break up the facade.


© Ilya Ivanov


© Ilya Ivanov
Only the foundation and basement of the building consist entirely of reinforced concrete. Above this, a hybrid construction from the supplier Cree has been used. It represents a further development of the system used by Hermann Kaufmann Architekten for the LCT One office building in the Austrian city of Dornbirn in 2012. On the facade level, double columns of wood support the ceiling elements, each of which is 2,70 m wide. These are composed of a 10-cm-thick concrete slab and 28-cm-high glulam supports. Inside the building, the ceilings rest on prefabricated concrete joists. A seemingly light supporting structure of criss-crossing trussed rafters of wood and steel spans the atrium, which measures 1600 m², and bears the foil cushions of the roof.


© Ilya Ivanov
According to the planners’ calculations, the building uses the wood from around 1300 FSC-certified spruce trees. When it comes to carbon savings from the wooden construction, however, the data differ. The architects estimate savings as high as 85 % (about 0.15 t of CO2 per m² instead of ca. 0,75 t of CO2 per m² from conventional building techniques). The structural engineers from Buro Happold claim a CO2 reduction of at least 50 %. Discrepancies aside, the ecological benefits are significant, especially because the supporting structure has only one-third the weight of a conventional reinforced-concrete construction, enabling slimmer dimensions for the foundation slab.


© HG ESCH


© HG ESCH
The entire interior design concept as well as the development of the new office worlds for Vattenfall was developed and accompanied in the implementation by de Winder Architekten Berlin.
Architecture: Tchoban Voss Architekten (Service phase 4 and design overall management), granz + zecher architekten (Service phase 5)
Client: SXB S.à r.l. / EDGE
Locations: Hildegard-Knef-Platz 2- 3, 10829 Berlin (DE)
Structural engineering: Happold Ingenieurbüro, BIT Büro für integrale Tragwerksplanung
Interior design: de Winder Architekten
Building services engineering: Happold Ingenieurbüro
General contractor: ARGE SXB, Südkreuz Berlin ZECH Bau GmbH, CREE Deutschland GmbH, Rhomberg Systemholzbau GmbHrepresented by ZECH Bau GmbH, Berlin


































